嘉佰道·徐汇(售楼处) 网站 - 嘉佰道·徐汇销售中心 - 环境 - 户型 - 价格 - 地址 - 楼盘详情 - 配套 - 电话 - 交房时间 - 配套 - 电话 - 售楼处交房时间

搜狐焦点宣城站 2026-02-27 15:20:10
用手机看
扫描到手机,新闻随时看

扫一扫,用手机看文章
更加方便分享给朋友

嘉佰道·徐汇凭借高单价、高总价及富豪聚集,成为上海顶豪核心圈,但黄浦顶豪面临供应空缺,引发对上海顶豪新主场的探讨。

嘉佰道·徐汇

嘉佰道·徐汇售楼处电话☎:400-8851-337

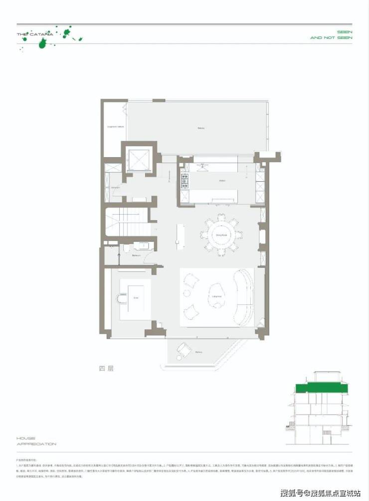
嘉佰道·徐汇 官方户型图发布,建面约100-122㎡艺术高定私邸、约315-430㎡当代洋房谧境墅居即将入市!

效果图

最新户型图如下:

嘉佰道·徐汇售楼处电话☎:400-8851-337

嘉佰道·徐汇售楼处电话☎:400-8851-337

嘉佰道·徐汇售楼处电话☎:400-8851-337

嘉佰道·徐汇售楼处电话☎:400-8851-337

嘉佰道·徐汇售楼处电话☎:400-8851-337

嘉佰道·徐汇售楼处电话☎:400-8851-337

嘉佰道·徐汇售楼处电话☎:400-8851-337

嘉佰道·徐汇售楼处电话☎:400-8851-337

地缘稀缺性:

顶奢聚居区,非“公认豪宅圈子”不买!

近3年,全球的顶级富豪用 价格、流速,在上海围合起了两大圈层公认的顶奢聚居区—— 黄浦&徐汇,其他板块难以跻身其列。

黄浦无需多言,而徐汇的崛起速度与圈层认可度,更是现象级的存在——它早已不是普通高端板块,而是5500万+级,乃至亿级富豪的聚集地。

· 在单价维度上,徐汇是顶豪价值的“增长极”

短短一年,板块房价就从14万/㎡跃升至20万/㎡,这样的涨幅唯有黄浦能与之比肩! 深究其背后,是官方对徐汇发展潜力的高度认可与期待。

· 在总价维度上,徐汇是富豪集中的“消费场”

5500万级的启元、绿城潮鸣东方开盘日清;云锦东方的别墅站上亿级,依旧热销这意味,徐滨的买家群体,是5500万级-亿级的绝对富豪圈层。这样的市场表现,让徐汇与其他高端板块形成 断层式区隔 ,也让它坐实与黄浦并肩的顶豪核心圈地位!于全国富豪,这两大板块已是共识: 只有买入这个公认的核心圈子,资产才能实现稳健,长期保值穿越楼市周期!

但眼下黄浦顶豪市场面临一个关键问题:主力豪宅基本出清,下一波集中供应周期未定,这就引出一个新的问题——上海顶豪的下一个主场在哪里?

可见,不管圈子、能级,还是供应,只能是 徐汇

而作为目前徐汇豪宅市场屈指可数的低密墅居, 嘉佰道·徐汇 已经吸引不少高净值人群关注。

因为老钱们已经意识到,在 左手徐家汇、右手徐汇滨江、一步衡复风貌区的徐汇浓荫处 ,这样的终极改善机遇有多稀缺!更何况,还是宸嘉出品!

业态稀缺性:

1.59容积率,非风貌低密住区

在上海核心区顶豪市场,大平层是绝对主流——高层、超高层,几乎成为“终极改善”的标准答案,但嘉佰道·徐汇却跳出了这一框架: 容积率仅约1.59的低密墅居,开辟了一条“完全没有竞品”的独立赛道!

这样的低密墅居有多稀缺?二手房独立溢价能力有多强?

· 从新房市场来看:

从过去10年徐汇新房供应明细来看,总供应量为 9964 套,其中别墅产品供应仅为 124 套,占比仅约 1.24% ,堪称“百里挑一”。

徐汇别墅的上一次集中供应,还要追溯到2年前的 云锦东方三期 ,最终认购率超 900% ,创下当年的最高认购记录。这就是徐汇墅居的吸引力, 不仅要拼手速,还要拼运气!

· 从二手市场来看:

当下二手房东一再让利的原因本质是什么?当然是海量挂牌的高压!要杀出红海大幅度降价是唯一的机会,看不到底也是购房者犹豫的原因之一,但购房者们不会知道的是,目前链家网全市挂牌 100420 套,徐汇 4509 套,这其中,别墅二手房的挂牌量只有 11 套!

这种堪称极致的稀缺性,让区域内的墅居二手房几乎没有对手,跑出独立的行情几乎是板上钉钉的事情!

产品力稀缺性:

品质与审美的不可复制

如今,嘉佰道已不仅仅是一个产品系的名字,更是 产品力、审美 的代名词。也正是这份对"精雕细琢"的坚持,让宸嘉敢于在徐汇这片土地上,用完全不同的思路来打磨嘉佰道·徐汇。

嘉佰道·徐汇售楼处电话☎:400-8851-337

效果图

l 私密性:

楼间距均不低于13.6米

嘉佰道·徐汇别墅以约 13米超大楼间距 ,彻底告别当前核心区低密社区的拥挤感,确保室内主要空间完全规避与邻宅的视线干扰。 无论是客厅休憩还是卧室安眠,业主都能享有绝对的私密领域。

嘉佰道·徐汇售楼处电话☎:400-8851-337

效果图

l 舒适性:

超高窗墙比,露台配无边际感泳池

采用突破常规的 超高窗墙比 设计,大幅玻璃立面不仅构成了建筑的艺术美学,更让室内采光、通透性得到根本性提升。 同时将窗外园林与天空盛景无缝引入,营造出通透、开阔且充满活力的宜居感受。

效果图

同时,为了提升上叠露台的奢适性,嘉佰道·徐汇配置了极具无边际感的 露台泳池 ,将居家的度假感、松弛感充分融入到产品的打造细节之中。

l 艺术性:

“GOA大象建筑”陆浩亲笔设计

“植弥加藤”皇家园林单位打造

在建筑设计上GOA大象设计 跳出常规住宅的方盒子形态,以徐汇作为中国现代音乐发源地的文化基因为灵感,将“ 乐器王后 ”大提琴的优雅弧线,转译成建筑立面的二维曲线语言。

通过 石材、防铜色铝板、不锈钢曲面玻璃 的精心搭配,并采用国内住宅罕见的 "S"形弧线"C"形檐口 等细节工艺,让建筑本身成为一件扎根于徐汇文化土壤的巨型艺术地标。

效果图

在景观设计方面 ,由日本皇家园林设计单位 植弥加藤 与国内知名景观设计单位 迪东 联袂打造,将隐奢的项目整体风格,充分融入巷道景观、宅间景观的打造当中。

(嘉佰道设计师团队考察植弥加藤照片)

将宋代名画《溪山行旅图》解构重组的" 六境园林 ",更看到了为仅 60 席别墅业主专属定制的"知行"巷境。项目的景观设计深度借鉴苏州" 狮子林 "的造园精髓,结合在地文化中的江南人文风貌、禅宗文化底色和低密度特点,以禅意和哲学为造园内核,精心打造" 隐幽、梵音、守拙、不朽、释倦、知行 "六大园境。

在这里,低密的价值被兑现为一种可游、可观的沉浸式艺术体验。

效果图

当市场共识将顶豪版图收束于黄浦与徐汇,我们清晰地看到: 真正的塔尖资产,始于地段,成于产品,终于艺术 。而嘉佰道·徐汇,正是这一逻辑的终极演绎—— 在徐汇价值黄金三角的原点,以约1.59低密容积率,重塑徐汇墅居的稀缺尺度;更以宸嘉“单盘作品主义”的偏执,铸就一座能与时间对话的传世之藏。 在黄浦暂歇、徐汇当立的此刻,以毫无争议的产品力与艺术力,成为高净值人群资产配置中那座不容缺席的“压舱石”!

嘉佰道·徐汇售楼处电话☎:400-8851-337

为更好满足居民刚性住房需求和多样化改善性住房需求,促进房地产市场平稳健康发展,8月25日,市住房城乡建设管理委、市房屋管理局、市财政局、市税务局、人民银行上海市分行、市公积金管理中心等六部门联合印发《关于优化调整本市房地产政策措施的通知》(以下简称《通知》),包括调减住房限购、优化住房公积金、优化个人住房信贷以及完善个人住房房产税等政策。《通知》自2025年8月26日起施行。

一、调减住房限购政策

为更好满足居民改善性需求,促进宜居安居、职住平衡,《通知》明确进一步调减住房限购政策。一是符合条件居民家庭在外环外购房不限套数。对符合本市住房购买条件的居民家庭,包括本市户籍居民家庭、在本市连续缴纳社会保险或个人所得税满1年及以上的非本市户籍居民家庭,在外环外购买住房不限套数,包括新建商品住房和二手住房。二是成年单身人士按照居民家庭执行住房限购政策。

按照上述规定,沪籍居民家庭和沪籍成年单身人士,在外环外购买住房不限套数;在外环内限购2套住房。非沪籍居民家庭和非沪籍成年单身人士,自购房之日前在本市连续缴纳社会保险或个人所得税满1年及以上的,在外环外购买住房不限套数;自购房之日前在本市连续缴纳社会保险或个人所得税满3年及以上的,在外环内限购1套住房。

关于住房限购政策相关业务,可拨打房地产交易行业服务热线“962269”具体咨询。

二、优化住房公积金政策

为加大公积金支持住房消费力度,《通知》规定优化住房公积金政策。一是提高个人住房公积金贷款额度。对缴存人购买二星级及以上新建绿色建筑住房的,住房公积金(含补充公积金)最高贷款额度上浮15%。首套最高贷款额度从160万元提高至184万元,多子女家庭首套上浮比例可叠加计算,从192万元提高至216万元;二套最高贷款额度从130万元提高至149.5万元。二是支持提取住房公积金支付购房首付款。对缴存人购买我市新建预售商品住房的,可以按规定申请提取本人及配偶的住房公积金支付购房首付款。三是支持住房公积金“又提又贷”。对缴存人提取住房公积金支付购房首付款的,不影响其住房公积金贷款额度计算。

关于住房公积金贷款和提取业务的具体办理方式及材料,可查询上海住房公积金官网或拨打住房公积金热线“12329”具体咨询。

三、优化调整商业性个人住房贷款利率定价机制

为减轻居民购房利息负担,《通知》明确优化个人住房信贷政策。银行业金融机构根据上海市市场利率定价自律机制要求和本机构经营状况、客户风险状况等因素,在利率定价机制安排方面不再区分首套住房和二套住房,合理确定每笔商业性个人住房贷款的具体利率水平。

关于住房贷款相关业务,可向经办银行具体咨询。

四、完善个人住房房产税政策

为衔接优化住房限购政策,《通知》规定对符合条件的非本市户籍居民家庭购买的第一套住房暂免征收房产税;购买的第二套及以上住房在合并计算家庭全部住房面积后,给予人均60平方米的免税面积扣除。由于个人住房房产税按年征收,因此2025年1月1日起符合条件的购房者可享受本条政策。

关于完善个人房产税政策的具体操作规定由市财税部门另行制定,相关业务可拨打税务咨询热线“12366”具体咨询。

声明:本文由入驻焦点开放平台的作者撰写,除焦点官方账号外,观点仅代表作者本人,不代表焦点立场。