首页:上海【保利珺园】售楼部地址-配套→产品特色→项目概况@保利珺园2026最新优惠-容积率-售楼处→区位交通
扫描到手机,新闻随时看
扫一扫,用手机看文章
更加方便分享给朋友
上海【保利珺园】
售楼处电话:400-9696-224(预约热线)
官方售楼处电话:400-9696-224(预约热线)
营销中心电话:400-9696-224(预约热线)
欢迎致电售楼处电话,专业一对一热情服务,让您用专业眼光去买房。
报名等销售电话确认后,请再前往现场
楼盘项目全面介绍,本电话为开发商提供线上售楼电话,楼盘项目全面介绍(包含楼盘简介,房价,价格,楼盘地址,户型图,交通规划,备案价,项目配套,楼盘详情,售楼处电话,最新消息,最新详情,周边配套,最新进展等详情咨询)
2026年,上海豪宅市场迎来久违15年的1.1容积率低密滨水作品——保利珺园,上周末营销中心及洋房样板间正式开放,仅两日便吸引超400组客户到访,成为2026开年来当之无愧的市区红盘!


联排户型图如下:
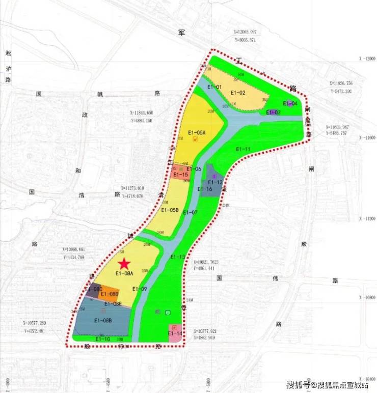
2025年9月3日,保利发展与上海地产投资有限公司联手,通过上海联合产权交易所完成杨浦区新江湾社区E1-08A项目及北外滩项目股权转让竞价,确定为项目的受让方。

E1-08A地块位于新江湾城北侧,直线距新江湾城站约1.2公里,地块容积率仅约1.1,限高约20米,预计将是洋房和联排的组合。其土地面积约5.71万㎡,建筑面积约6.28万㎡,出让总价为37亿元,折合楼板价约5.89万/㎡,住宅套数下限为455套。
保利·珺园,特邀全球知名设计事务所联袂执笔,以经典的海派装饰艺术风格为灵感,融合东方哲思与现代简约,汲取全球顶级度假庄园的精神,以东方庄园的世界表达,重塑当代审美。
项目深度汲取国际顶级酒店的美学精髓,同时融合上海经典建筑中的海派元素,以“仪式感、纯粹性、细节感”为核心,打造兼具国际风范与本地底蕴的建筑格调。
在仪式感上,借鉴经典建筑的阵列柱廊、穹顶等符号;
在立面上,甄选古铜不锈钢、超白玻璃、天然奢石等高端材质,构成高级质感与历久弥新的外观。
保利·珺园的社区景观以“两环二轴”为核心规划,打造了约1000米的超级体验环与约420米的园区漫步轴线。
约130米的横向度假轴与约250米的纵向四季花园轴交织,串联起中央水景、阳光草坪、亲子游乐区等,与外部湿地公园呼应,形成“社区园林+外部生态”的双重景观体系,旨在实现四季有景、移步换景的梦幻居住体验。
上海【保利珺园】
售楼处电话:400-9696-224(预约热线)
官方售楼处电话:400-9696-224(预约热线)
营销中心电话:400-9696-224(预约热线)
欢迎致电售楼处电话,专业一对一热情服务,让您用专业眼光去买房。
报名等销售电话确认后,请再前往现场
景观设计萃取全球顶级度假灵感,打造了包括花园、谧林、松下会客厅、阅读花园、童梦山谷、叠映水庭在内的六大主题场景,集仪式归家、社交会客、静谧阅读、亲子游乐、艺术观景于一体。

项目在社区配套上再次创新,规划了面积可观的珺CLUB,覆盖运动、社交、艺术与休闲等16大功能区,并融汇4大领创功能,打造上海鲜有的“X+1”复合型艺术生活空间,旨在重构庄园生活方式。
·上海首个社区内配置专业中西琴房:规格对标高端私人艺术会所,打造兼具中式古琴与西式钢琴的专属空间,满足高阶家庭的艺术培养与圈层社交需求。
·上海首个社区内引入专业冷疗舱设备:接轨国际顶流健康管理标准,此前该设备多见于高端私人健康会所、职业运动员康复中心与顶奢度假酒店。
·上海首个社区内打造高端水疗空间:秉承度假即是疗愈的理念,汲取顶级度假酒店水疗中心灵感,打造私人化高端水疗体验。
·领创全景平行客厅:打造一个集私宴、花园休憩、品茗、娱乐于一体的多功能私享空间,成为家庭客厅的重要延伸。
更具创新性的是“X+1”的空间设置理念,打破单一功能边界:健身房叠加高压氧舱、冷疗舱等;泳池搭配专业理疗池;阅读室延伸家教区与儿童成长区。每一种功能都追求1+1>2的效果,以超前创新重新定义高端生活的奢适尺度。
上海【保利珺园】
售楼处电话:400-9696-224(预约热线)
官方售楼处电话:400-9696-224(预约热线)
营销中心电话:400-9696-224(预约热线)
欢迎致电售楼处电话,专业一对一热情服务,让您用专业眼光去买房。
报名等销售电话确认后,请再前往现场
保利·珺园的户型在得房率与空间感上具备优势。产品覆盖建筑面积约105-285㎡的全周期改善业态,包括洋房、叠墅、联排。
·建面约105㎡三房户型:
高功能集成与优渥采光的首改之选
通过约30㎡的LDKB一体化方厅设计,将客厅、餐厅、厨房与阳台融合为开阔的家庭核心区,促进了家人间的紧密互动。
南向双阳台结合南北双270°转角飘窗的设计,极大限度地引入了自然光线,提升了室内的通透与明亮感。
在有限面积内实现的高得房率与周全功能,使其成为追求品质生活的首改家庭的优选。
·建面约127㎡四房户型:
附赠空间丰富、灵活可变的多功能居家
此户型拥有约6m面宽的连贯阳台,提供了广阔的观景与休闲平台。
卧室采用双270°环幕窗设计,赋予了居住者IMAX级别的景观视野。
在收纳方面,规划了远超同面积户型的独立储藏空间,轻松容纳行李箱、婴儿车、换季被褥等大件物品。
其最大的特点在于空间的灵活性,可轻松隔出“N+1”房,完美适配二孩家庭、需要独立书房或健身房的多元化生活场景。
·建面约140㎡户型:
一步到位的尺度感与强大的功能延伸性
该户型拥有约13.3m的南向采光面,确保主要空间均能沐浴阳光,通透感卓越。
约6.6m的客厅超大面宽,营造出从容大气的待客与起居氛围,尺度感明显优于市场同类产品。
北侧专门预留了可改造的家政空间,赋予了户型随着家庭成长而“可生长”的潜力,是兼具当前气场与未来可能性的藏品级户型。
在墅质洋房之外,保利·珺园还将推出建面约161-190㎡的叠墅产品,以及建面约200-285㎡的滨水联排产品。这些低密产品的样板间即将对外开放,更多关于空间营造与生活场景的细节静待揭晓。
上海【保利珺园】
售楼处电话:400-9696-224(预约热线)
官方售楼处电话:400-9696-224(预约热线)
营销中心电话:400-9696-224(预约热线)
欢迎致电售楼处电话,专业一对一热情服务,让您用专业眼光去买房。
报名等销售电话确认后,请再前往现场
六大体系化革新,定义高端生活完整解决方案
保利·珺园超越了单一硬件堆砌,通过六大维度的体系化革新,构建了一套完整的高端生活解决方案。这标志着豪宅开发正从“产品力竞赛”迈向“系统化创新”的新阶段。
全球甄选的革新:严格遵循豪宅精装标准,全屋集成嘉格纳/博世厨电、杜拉维特洁具、汉斯格雅花洒等一线品牌,从源头奠定品质基石。
个性定制的革新:深入细节的专属感营造,提供包括豪宅金属线(挂画系统)、门牌、门把手及背景墙岩板等在内的深度定制选项,在去年保利首创可定制引领市场潮流之后,再次迭新,让家成为独特的个人印记。

空间叙事的革新:彻底打破传统布局桎梏,0过道浪费,超高利用率,打造无过道浪费的LDKG超级厅堂,让家庭互动与社交成为空间的核心叙事。
她享主义的革新:注重女性居住体验,在上海首创“女神4件套”的基础上再度革新,升级为“女神6件套”!
于主卫配置科勒美妆龙头、美妆镜柜、双补光照明、专属美妆冰箱基础上升级奥普美容舱浴霸及进口胭粉奢石台面,构成周全的她享主义系统。

预见需求的革新:以前瞻性思维规划生活场景,无论是从上海首创符合人体工程学的厨房高低台到全屋多功能收纳系统,还是保利智慧家智能系统、客厅音响交付、竖向插座等多个人性化细节,都系统化解决未来居住中的各类需求,想客户所想并将解决方案放进了各种生活场景里。
高定审美的革新:审美表达贯穿始终,甄选全球稀有奢石与高级材质,并融萃国际审美视野的图形元素与弧形线条设计,于细节处呈现经得起时间凝视的艺术质感。
① 新规匠心,空间价值跃升
通过科学结构优化实现高附赠,使用效率显著提升,让每一寸空间皆具实用价值与生活温度。
② 光景梯厅,归家即享仪式感
打造光景梯厅,构建“公共—半私密—私密”三级归家动线,每一步皆沐浴阳光,私密性与尊崇感并存。
③ 内外双玄关,礼序与收纳兼得
外玄关预留艺术展示与灵活收纳模块,内玄关配置多功能条板收纳系统,双重设计兼顾归家礼序、实用功能与美学表达,细节处彰显生活品位。
④ LDK大方厅,零浪费社交主场
巧妙消除传统过道空间,实现“零浪费”高效动线;阔绰尺度轻松容纳家庭聚会、亲友宴请等多元生活场景。
⑤边套享南北双270°环幕飘窗,景光共融
南北双侧创新转角飘窗设计,270°环幕视野最大化引入自然采光与清风,将四季景致化作家中流动画卷。
新江湾题材一箩
南北两大副中心
新江湾城的北翼,上海9大主城副中心之一的吴淞创新城,正在经历“北转型”科创产业大升级。新江湾城的南翼,另一个主城副中心江湾五角场,作为“金色中环发展带”,串起上海北部核心商务区,正从传统都市商圈向产学研复合城区变迁。
如大弓一般伸展的杨浦区,正在推动落实“三区联动”,也就是创新空间、产业空间、生活空间融合。作为杨浦区的核心发展引擎——江湾五角场的辐射生活带,新江湾城顺其自然坐享周边产业区、校区发展所带来的溢出机遇。

上海【保利珺园】
售楼处电话:400-9696-224(预约热线)
官方售楼处电话:400-9696-224(预约热线)
营销中心电话:400-9696-224(预约热线)
欢迎致电售楼处电话,专业一对一热情服务,让您用专业眼光去买房。
报名等销售电话确认后,请再前往现场
中环北扩
2025年,新江湾城板块迎来军工路、长江西路快速化改造工程的持续推进。军工路快速路是“中环北扩”规划(军工路—长江路—真北路快速通道)重要成员。它沿着杨浦、宝山两区滨江地带行走,线路全长约7.5公里,它是上海北部高速联通中、外环线的主要干道之一,战略地位向来很重。该路段2025年内建设完工。

它将加速新江湾城与中心城区联系,同时串起黄浦江下游多条越江通道,减轻中环北段、逸仙路高架、南北高架等快速路的拥堵压力,功能非常丰富,意义非常重大。
长江西路快速路已被列入2025重大工程预备项目,所谓预备项目,是指项目现阶段手续暂未齐全,待齐全后预备近期实施的项目。换句话说,中环向北扩展的总体目标,2025年有望全面启动。

20号线
除了10号线、18号线直接穿越新江湾城外,一条新轨交又要来了, 20号线被称为“北上海副中心联络线”。全长约30公里,共21个站点。它不仅串联起了真如、五角场两大主城副中心,并且将桃浦智创城、大宁商圈、新江湾、曲阳(大柏树)、杨浦滨江中北段和浦东外高桥一线连接。这条新地铁将为新江湾城的东西两翼点开通勤出行新地图。

产业中心
“夹”在中间的新江湾城,区内坐拥抖音、哔哩哔哩、叠纸、美国耐克、德国汉高等头部企业,精英人才汇聚。北部以湾谷科技园为核心,形成“2+4+N”产业矩阵——电子通信、生命健康为主导,智能科技、绿色低碳等为优势产业。新江湾城作为生态型花园国际社区,不但要接住南北两翼齐飞的泼天“城运”,顺势还要承接周边不断溢出的庞大职住需求。
大型生态湿地
新江湾区域内绿化覆盖率高达60%,已经形成 "湿地-公园-绿廊" 三级生态体系。占地7.35公顷的新江湾城湿地公园,是上海中心城区最大一块天然湿地,负氧离子浓度达2000个/立方厘米以上,堪称超大型城市绿肺。
杨浦大学城
新江湾区域内有复旦、同济、财大等10多所著名高校,100多家科研院所,以及复旦附中、交大附中等重点高中。早在1996,该区域第一个高科技园区“五角场高新技术产业园”正式建立,从此杨浦开始走上产学研一体化道路,比如建设国家创新型试点城区,将杨浦园构建为张江示范区的重要组成部分等。杨浦还打出了一个大大的标语:至2030年,形成“大学的城市、城市的大学”。

15分钟社区生活圈
新江湾城街道聚焦居民、企业员工生活、工作上的需求,推行“15分钟社区生活圈”,建立“3+8+N”服务体系(3个核心生活圈+8个分中心),覆盖全年龄人群需求。

经过逾20年的建设,新江湾城已成为一个以中高端住宅为主的知识型、生态型花园社区。
项目直线距离10号线新江湾城站约1.1公里,无需换乘可直达五角场、南京东路、豫园等各大商圈。

自驾方面,项目经由淞沪路-黄兴路及逸仙高架路可连通内环,日常通勤动线流畅。

商业方面,板块内有悠方购物公园,可满足日常生活需求。五角场则包含万达广场、百联又一城、合生汇等一站式购物中心。
此外项目南侧直线距离约500米,上海交大附中杨浦实验学校将于2027年9月落成启用。

上海【保利珺园】
售楼处电话:400-9696-224(预约热线)
官方售楼处电话:400-9696-224(预约热线)
营销中心电话:400-9696-224(预约热线)
欢迎致电售楼处电话,专业一对一热情服务,让您用专业眼光去买房。
报名等销售电话确认后,请再前往现场
声明:本文由入驻焦点开放平台的作者撰写,除焦点官方账号外,观点仅代表作者本人,不代表焦点立场。
