越秀外滩樾售楼处发布-(项目优缺点全解析,值不值得买?)_越秀外滩樾@首页楼盘详情-最新价格-户型/容积率/小区环境
扫描到手机,新闻随时看
扫一扫,用手机看文章
更加方便分享给朋友
══上海虹口「越秀·外滩樾」══
越秀·外滩樾售楼处电话:400-8778-334
虹口越秀·外滩樾售楼处电话☎:400-877-8334【线上预约看房】越秀·外滩樾售楼中心电话/地址:400-8778-334【官方售楼中心已认证√√】最新进展:在售建面约238-338㎡海派风貌别墅,总价4500-8000万/套,均价约18万/㎡。项目位于虹口北外滩核心区,距外滩1公里,近地铁4/10/19号线海伦路站,主打48席低密院墅与历史风貌保护建筑!
温馨提示:如有问题欢迎来电咨询,专业一对一热情服务,让您用专业眼光去买房,附线上官方预约通道【享】内部专属优惠折扣!
北外滩传承私邸&越秀·外滩樾丨238㎡~338㎡海派风貌院墅,均价20万总价4000万起,预约参观可直接认购!
虹口北外滩低密风貌别墅
由越秀地产+临港集团联合打造
越秀临港虹口156街坊风貌别墅
【越秀·外滩樾】纯别墅社区
虹口越秀·外滩樾售楼处电话☎:400-877-8334【线上预约看房】
风貌之上世界堂前
建面约238㎡—338㎡
总价约4000-9000万
海派院墅三里外滩
立传别墅从你开启传承展厅已开放
70年产权住宅容积率:约1.3
MODELROOMRESERVATION
预约看实房
虹口越秀·外滩樾售楼处电话☎:400-877-8334【线上预约看房】
虹口越秀·外滩樾售楼处电话☎:400-877-8334【线上预约看房】
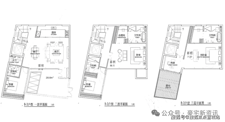
户型图如下:
(过程稿仅供参考,最终以实际为准)
236.25㎡A户型:

239.13㎡B户型:

239.13㎡B户型:

C户型:

291.42㎡D户型

虹口越秀·外滩樾售楼处电话☎:400-877-8334【线上预约看房】
【传奇的1.5公里启航外滩百年世界史】
项目所在地北外滩,是百年前上海的发源地。作为上海开埠后第一座码头的诞生地,北外滩率先“开眼看世界”,海纳万国文化风潮,众多此后影响中国的创举在此诞生,是上海最早的“十里洋场”。
虹口越秀·外滩樾售楼处电话☎:400-877-8334【线上预约看房】
【世界的1.5公里再立世界上海新传】
傲立“一江一河”交汇处(直线距离黄浦江约1km),未来将打造成为彰显上海城市核心竞争力的黄金水岸和具有国际影响力的世界级城市会客厅,出入之间,相逢城市高阶未来。
虹口越秀·外滩樾售楼处电话☎:400-877-8334【线上预约看房】
【上海新封面】黄金三角顶序规划
北外滩,与外滩、陆家嘴并称为上海的“黄金三角”。将以2座陆家嘴的商务体量规划,新天地2.0生活圈打造,成为上海跃升世界舞台的“中心发力”新引擎。
【经济中心】全球化核心腹地
北外滩总开发面积约840万方,自陆家嘴之后上海最大开发区域,未来将聚焦资产管理、金融科技、绿色航运等上游产业,打造“运作全球的总部城”。
虹口越秀·外滩樾售楼处电话☎:400-877-8334【线上预约看房】
【极核中心】顶奢商业新地标
约1.5KM内拥享北外滩商圈、外滩商圈、陆家嘴商圈,华贸奢侈品品牌之家、白玉兰广场等潮奢集萃,未来上海顶奢商业新地标,举步间繁华尽拥。
虹口越秀·外滩樾售楼处电话☎:400-877-8334【线上预约看房】
一城中轴半壁越秀:打造广州地标IFC、城建大厦、维多利广场、越秀金融大厦、财富广场、市长大厦、广州环贸中心(ICC)等诸多重量级作品。
全球地标打造者:广州国际金融中心(IFC)高约440.75米,建成之时为全球10大超高层建筑之一,获得国际建筑界奥斯卡“英国菜伯金奖”。(此外,中国仅北京“鸟巢”和上海世博会英国馆荣获该奖项。)
豪宅基因始终传承:打造“广州第一富人区”二沙岛,屹立广州顶豪之列,整个二沙岛9个项目,有7个项目都是越秀开发,其中越秀宏城花园单价25万-40万/㎡,总价1-6亿,一房难求。
风貌之上世界堂前
建面约238㎡—338㎡
总价约4500-9000万
海派院墅三里外滩立传别墅
70年产权住宅容积率:约1.3
从你开启传承
虹口越秀·外滩樾售楼处电话☎:400-877-8334【线上预约看房】越秀·外滩樾售楼中心电话/地址:400-8778-334【官方售楼中心已认证√√】最新进展:在售建面约238-338㎡海派风貌别墅,总价4500-8000万/套,均价约18万/㎡。项目位于虹口北外滩核心区,距外滩1公里,近地铁4/10/19号线海伦路站,主打48席低密院墅与历史风貌保护建筑!
温馨提示:如有问题欢迎来电咨询,专业一对一热情服务,让您用专业眼光去买房,附线上官方预约通道【享】内部专属优惠折扣!
声明:本文由入驻焦点开放平台的作者撰写,除焦点官方账号外,观点仅代表作者本人,不代表焦点立场。
