苏州新区“美田锦华澜轩”(售楼处)首页网站-2025朗诗锦华澜轩销售中心(营销中心)-楼盘欢迎您-小区环境-户型-价格-地址-楼盘详情-周边配套
扫描到手机,新闻随时看
扫一扫,用手机看文章
更加方便分享给朋友
苏州新区“美田锦华澜轩”(又名朗诗锦华澜轩)
售楼处电话☎400-8851-337✔✔
交通配套邻近有轨电车1/2号线龙康路站,规划地铁9/11/13号线(以政府批复为准)教育医疗学区覆盖科技城实验小学(西渚校区)、新区实验初级中学毗邻三甲级科技城医院(苏州大学附属儿童医院科技城院区)交付时间:…
苏州新区“美田锦华澜轩”(又名朗诗锦华澜轩)
售楼处电话☎400-8851-337✔✔
营销中心电话400-8851-337✔✔
置业顾问:400-885-1337✔✔
Welcome to call the tasting appointment hotline: 400-8851-337
售楼处〢欢迎提前预约实地看房,提前预约可享更多折扣优惠〢✔✔
美田锦华澜轩
一、基础信息
在售状态
普通住宅现房在售,带装修交付,主推户型为三居室和四居室
价格详情
单价:约 21,000元/㎡(最新报价时间为2025年6月10日)
总价区间:240万–490万元/套,因户型面积差异浮动
户型面积
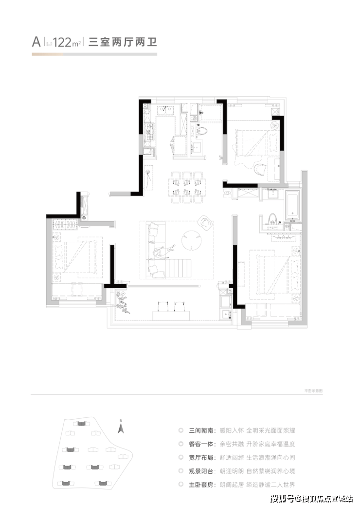
主力户型:122㎡(三居)、132㎡(三居/四居)、160㎡(四居)
全楼盘规划共计 576户,容积率约 1.8,绿化率 37%
售楼处电话☎400-8851-337✔✔


二、项目规划
产品结构
共 12栋 小高层住宅,楼高15–18层
车位配比 1:1.73,总计约 1000个车位
科技系统
采用朗诗“三恒科技”(恒温、恒湿、恒氧),配备新风系统及外遮阳卷帘,节能率超 80%
售楼处电话☎400-8851-337✔✔

三、配套与交付
交通配套
邻近有轨电车1/2号线龙康路站,规划地铁9/11/13号线(以政府批复为准)
教育医疗
学区覆盖科技城实验小学(西渚校区)、新区实验初级中学
毗邻三甲级科技城医院(苏州大学附属儿童医院科技城院区)
交付时间:预计 2025年10月交付(部分房源2025年底)
营销中心电话400-8851-337✔✔
四、开发商与位置
开发商:朗诗地产、苏高新地产、斜港置业联合开发
项目地址:苏州高新区美田里路东侧、惠东路北侧(科技城实验小学西渚校区对面)
注:实际价格及房源动态需以售楼处为准(咨询电话可参考),部分配套规划可能存在调整。
营销中心电话400-8851-337✔✔
苏州新区“美田锦华澜轩”(又名朗诗锦华澜轩)
售楼处电话☎400-8851-337✔✔
营销中心电话400-8851-337✔✔
置业顾问:400-885-1337✔✔
售楼处〢欢迎提前预约实地看房,提前预约可享更多折扣优惠〢✔✔
Welcome to call the tasting appointment hotline: 400-8851-337
楼盘项目全面介绍,本电话为开发商提供线上预约售楼电话,楼盘项目全面介绍(包含楼盘简介,均价,房价,现房,期房,别墅,叠墅,大平层,价格,楼盘地址,户型图,交通规划,备案价,备案名,项目配套,样板间,开盘时间,认筹时间,楼盘详情,售楼处电话,最新消息,最新详情,周边配套,一房一价,最新进展等详情咨询)楼盘详情丨价格丨更多优惠丨机不可失丨欢迎致电丨诚邀品鉴!售楼处位置丨特价房丨工抵房丨剩余房源丨户型图丨最新消息丨免责声明:将文章内容综合来源于网络、只作分享,版权归原作者所有!!如有侵权,请联系我们,我们第一时间处理如有问题欢迎来电咨询,专业一对一热情服务,让您用专业眼光去买房。如果您想了解更多楼盘详情,欢迎提前预约拨打
声明:本文由入驻焦点开放平台的作者撰写,除焦点官方账号外,观点仅代表作者本人,不代表焦点立场。
