首页-2025中企·云启春申售楼处电话|中企·云启春申户型图|中企·云启春申项目售楼处电话地址
扫描到手机,新闻随时看
扫一扫,用手机看文章
更加方便分享给朋友
上海-中企·云启春申售楼处电话☎:400-8558-334(预约热线)✔✔✔
如有问题欢迎来电咨询,专业一对一热情服务,让您用专业眼光去买房。
中企·云启春申售楼处电话☎:400-8558-334【售楼热线】✔✔✔中企·云启春申营销中心热线☎400-8558-334售楼处地址☎400-8558-334
基础信息:项目别名莘汇名苑,地处闵行莘庄商务区的秀涟路 77 弄,开发商为上海鸿钻房地产开发有限公司,隶属于国企中企置地。项目总建筑面积约 65095.33㎡,占地面积 20930.10㎡,容积率 2.0,绿化率约 35%。总楼栋数 8 栋,不同楼栋总高有差异,其中 1 号楼 10 层、2 号楼 17 层、5 - 7 号楼 18 层,规划可售户数共 388 户,首批曾推出 296 户。项目规划车位数 518 个,车位配比 1:1.2,采用人车分流设计保障社区通行安全。
建筑与景观:建筑采用现代简约风格,外立面以米白色真石漆搭配深灰色金属线条,还点缀金色框线,搭配大面积玻璃幕墙,选用的是东方雨虹专供的耐候型真石漆,耐用性更强。社区景观由贝尔高林团队设计,以中央绿化景观带作为室外会客厅,通过两轴连接搭配四进入户景观礼序,同时种植香樟、银杏等多种树种,既保障底层房源采光,又能保护业主私密性。
户型与交付:主力户型为建面约 96㎡三房两厅两卫和 127㎡四房两厅两卫,梯户比为 1 梯 2 户。96㎡户型层高 2.95 米,采用 LDK 一体化设计与全明格局,南北向房间均带飘窗;127㎡户型层高 3.1 米,三卧室朝南,配有独立玄关收纳空间与阔气阳台,且全屋飘窗。项目得房率最高约 82%,交付标准分毛坯和精装,其中 1、6、7 号楼为毛坯交付,2、5 号楼为精装交付,精装标准 3000 元 / 平,预计 2026 年 6 月交房。
价格与物业:参考均价 7.91 万 / 平方米,96㎡户型总价区间在 640 - 840 万,127㎡户型总价约 1060 - 1100 万。物业服务由古北物业提供,物业费为 6 元 / 平方米 / 月。
交通配套:距离地铁 12 号线七莘路站步行约 1200 米,该站点后续还有向西延伸的规划。周边 1 公里内有 22 个公交站,最近的秀涟路秀文路站仅 68 米。自驾方面处于外环高架和嘉闵高架之间,依托七莘路、顾戴路两条快速路,出行较为便捷。
生活配套:商业上,周边有莘庄维璟印象城、万科七宝国际等多个商业广场,项目自身还规划约 2000㎡社区商业,将引入便利店等便民业态。教育上,3 公里内涵盖 51 所幼儿园、14 所小学和 22 所中学,包括七宝外国语小学、七宝中学等优质学校。医疗上,3 公里内有 6 所一级及以上医院,像复旦大学附属闵行医院、上海蓝十字脑科医院等可满足就医需求。
社区内部配套:规划有 300 米环形跑道,还有约 800㎡的儿童游乐区、约 500㎡的健身广场,同时配备老年活动中心、社区服务中心等设施,能适配不同年龄段业主的休闲运动需求。
上海-中企·云启春申售楼处电话☎:400-8558-334(预约热线)✔✔✔
如有问题欢迎来电咨询,专业一对一热情服务,让您用专业眼光去买房。
作为四大城市副中心之一的莘庄,东北方是漕河泾开发区,西北方是大虹桥商务区,西南方有松江工业区和G60科创走廊,正南方有闵行经济开发区,紫竹科技园区,同时莘庄本身也拥有莘庄工业区和莘庄商务区,能够享受众多商业和产业的红利。
规划中的“春申湖四岛”距离本项目步行仅400米,将建设包括演艺中心、音乐厅、综合剧场、美术馆和图书馆等高级文化场馆。这一标志性设施不仅能提升闵行区整体文化气质,也将是莘庄商务区居住氛围和文化能级的又一大重要提升。
上海-中企·云启春申售楼处电话☎:400-8558-334(预约热线)✔✔✔
如有问题欢迎来电咨询,专业一对一热情服务,让您用专业眼光去买房。
拥有换乘之王称号的12号线七莘路地铁站,除了13号线以外其他地铁线路都可以换乘,快速通达徐家汇。
已经公示的嘉闵线,未来联通大虹桥枢纽,高铁飞机出行更便捷,并与12号线七莘路站都有站点连接,预计2027年正式通行运营。
(信息来源:上海市嘉定区人民政府官网《事关嘉闵线、嘉闵联络线、中运量公交、自动驾驶出租车!回应→》)
项目距维璟印象城约920m,维璟印象城商业面积12万方,各类的餐饮、健身、购物等共251家,屋顶设有空中花园,还有适合周末遛娃的天台儿童乐园和儿童探索中心。距闵行凯德龙之梦约2.2km,集休闲娱乐、亲子教育一体,楼顶还设有室外篮球场;距离仲盛世界商城约2.8km。
✧项目北侧约1公里是政府规划幼儿园,民办则有莘松晓苗幼儿园和启英幼儿园。
✧上海top1的私立小学,七宝外国语小学,距离本案仅约2.6km。
✧初中有闵行王牌之称的莘松中学,目前联合莘城学校、明星学校、康城学校、师培附中、君莲学校、马桥万科实验中学等6所学校成立了莘松中学教育集团。
上海-中企·云启春申售楼处电话☎:400-8558-334(预约热线)✔✔✔
如有问题欢迎来电咨询,专业一对一热情服务,让您用专业眼光去买房。
✧位于项目南侧约2.5km的闵行中心医院,是片区唯一一家大型综合性医院。
✧项目5公里范围内有儿科排名第一的儿科三甲类医院复旦大学儿科医院和脑科专科三甲医院蓝十字脑科医院。
✧规划两所重点医疗医院,闵行龙华医院中医院、上海市口腔病防治院闵行院区。
小区的内部景观规划兼顾了日常观景及健康生活的需求,由中央绿化景观带作为室外会客厅,通过两轴连接,配上四进的入户景观礼序,打造出集艺术,趣味,生态为一体的品质生活场景。
采用现代简约建筑风格,整体建筑线条简洁大气。
立面点缀金色的框线,极简优雅但又不失格调,符合小区所在莘庄商务区稀缺核心住宅的定位。
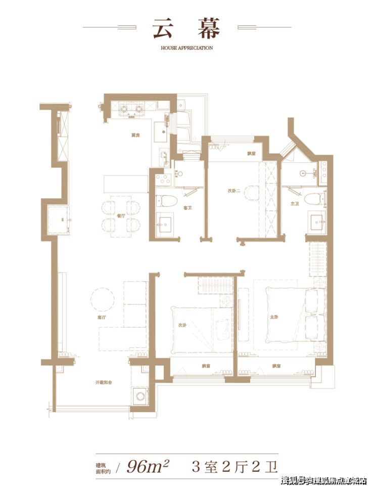
约96㎡三房两厅两卫

上海-中企·云启春申售楼处电话☎:400-8558-334(预约热线)✔✔✔
如有问题欢迎来电咨询,专业一对一热情服务,让您用专业眼光去买房。

✧活动区域LDK一体化设计
✧S型分户墙,多变布局搭配
✧大进深阳台,可变换的随心区域
✧全明格局,户型方正,南北向房间全飘窗
约127㎡四房两厅两卫

✧改善型户型,全明设计,全屋飘窗
✧C型厨房,空间划分明确,动线清晰
✧三卧室朝南,尽享阳光
✧主卧独立衣帽间、卫生间、尽享尊贵
✧独立玄关收纳空间
✧阔气阳台,与餐客厅形成南北通透
上海古北物业管理有限公司是上海古北(集团)有限公司投资的国有全资子公司,隶属于上海地产(集团)有限公司、中华企业股份有限公司,国家一级资质物业,是海派高品质物管代表,作为上海专业物业管理先锋,古北物业荣获2023年度上海市物业服务企业综合百强排名第 8名 、服务质量领先TOP20企业第1名、物业管理数量规模TOP 20企业第9名 、公众类物业管理TOP 10企业第9名 、轨道交通收入领先TOP 10企业第2名 。从十大服务细节输出,有效地提升业主生活品质, 更会带来全新的管家式尊崇服务体验。
上海-中企·云启春申售楼处电话☎:400-8558-334(预约热线)✔✔✔
如有问题欢迎来电咨询,专业一对一热情服务,让您用专业眼光去买房。
中企·云启春申售楼处电话☎:400-8558-334【售楼热线】✔✔✔中企·云启春申营销中心热线☎400-8558-334售楼处地址☎400-8558-334
声明:本文由入驻焦点开放平台的作者撰写,除焦点官方账号外,观点仅代表作者本人,不代表焦点立场。
