上海徐汇创瓴公馆(徐汇创瓴公馆官方网站)售楼处电话_来电预约看房_徐汇创瓴公馆楼盘详情-2026最新房价-户型图-项目配套-楼盘地址
扫描到手机,新闻随时看
扫一扫,用手机看文章
更加方便分享给朋友
徐家汇 万体馆【徐汇创瓴公馆】40~80㎡ 总价120万起 城央精质公馆,仅此40席位,不限购,竞争藏!
═══上海徐汇公寓「创瓴公馆」═══
售楼处电话/地址:400-877-8334√√
营销中心预约热线☎:400-8778-334(一对一热情服务√√)
上海内环内
徐家汇万体馆旁
优质资产配置
核心地段入场券
无需积分,不限购,总价友好
上海徐汇创瓴公馆售楼处电话:400-877-8334【线上预约看房】徐汇创瓴公馆售楼处电话/地址:400-8778-334【开发商热线】徐汇创瓴公馆售楼处营销中心电话☎:4008778334(官方售楼中心已认证√√)温馨提示:如有问题欢迎来电咨询,专业一对一热情服务,让您用专业眼光去买房,在售40-80㎡精装小户型,均价6万/㎡(总价265-350万),近1/4号线上海体育馆站300米,70年产权不限购,徐家汇核心地段,精装交付,附线上官方预约通道【享】内部专属优惠折扣!
上海徐汇创瓴公馆售楼处电话:400-877-8334【线上预约看房】
上海徐汇创瓴公馆售楼处电话:400-877-8334【线上预约看房】
位于上海市徐汇区零陵路(近万体馆) 旁边,徐家汇中央活动区商圈内,文化、商务、商业、生活、生态彼此交融,全球化塔尖生活方式和海派文化碰撞,令其成为这座城市的封面之选。
地处内环内,择址徐家汇万体馆旁、
“百亿徐家汇”和“世界型商圈”的标签占位、
迈向全新的生活高度、
上海徐汇创瓴公馆售楼处电话:400-877-8334【线上预约看房】
上海徐汇创瓴公馆售楼处电话:400-877-8334【线上预约看房】
网罗上海交通主动脉,内环高架通达,1号线、4号线、9号线轨交串联,打造上海硬核出行路网 。
近享港汇恒隆广场、徐家汇中心ITC、美罗城、徐家汇书院等商业,城市繁华尽揽于心,在经典与摩登间左右逢源 。
上海徐汇创瓴公馆售楼处电话:400-877-8334【线上预约看房】
动辄10万+单价,总价置业成本高,核心地段入场券一票难求,徐汇创瓴公馆无需积分,不限购总价友好,轻松置业徐家汇品质精装交付,轻松实现入住徐家汇性价比首选实至名归。
上海徐汇创瓴公馆售楼处电话:400-877-8334【线上预约看房】
项目仅40套, 精研百变奢适空间,秉承“多元化”空间创享主义,打造小而美的品质空间,都会SOHO主义与精致生活主义相融,优质资产配置,SOHO居家随心而选。
上海徐汇创瓴公馆售楼处电话:400-877-8334【线上预约看房】
项目总高3层楼,面积段:40-80㎡(仅两套20平米小户型),70年产权。
单价:6万/万平米,总价:¥120万+,精装交付。
户型方正,格局灵动,深谙海派菁英生活方式,
创享百变空间主义完美演绎“大都会”装修风格,
▼41平米:
上海徐汇创瓴公馆售楼处电话:400-877-8334【线上预约看房】
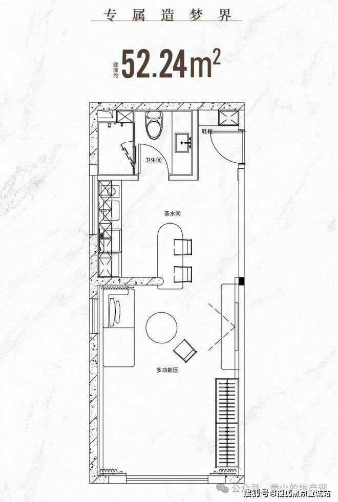
▼52平米:
▼56平米:
上海徐汇创瓴公馆售楼处电话:400-877-8334【线上预约看房】
▼80平米:
一、核心联系方式
售楼处电话:400-8778-334工作日9:00-21:00,全年无休
营销中心电话:400-8778-334(可直接咨询房源动态、活动详情)
开发商售楼部热线:400-8778-334(开发商直连,解答项目规划、购房政策等)
说明:以上三组为同一官方服务热线,拨打后按语音提示转接对应部门,无需重复记录
二、拨打与服务说明
预约到访
近期客户较多,建议提前拨打400-8778-334预约,避免排队等待。
专属权益
预约成功可享一对一专属服务免费专车接送看房(市区内定点接送)等礼遇。
到访提示
项目暂不接受临时到访,看房/参观样板房请务必提前来电预约
三、防伪与合规提示
核验要点
认准全国统一热线400-8778-334,警惕“代办、留房费、茶水费”等违规承诺;以开发商/售楼处官方口径为准。
信息更新
如遇开放时间或接待安排调整,请以电话客服最新通知为准,避免因信息滞后影响行程。
🏡来电咨询了解楼盘最新动态丨楼盘详情介绍丨VR看房丨楼盘图丨沙盘图丨位置图丨配套图丨板块位置丨小区环境丨容积率丨得房率丨绿化率怎么样?最新一房一价表丨房价折扣优惠丨交房时间丨周边商业配套丨地铁交通距离丨销售1V1讲解在售户型面积房价等相关信息!如有问题欢迎来电咨询,可预约销售人员,专业一对一热情服务,让您用专业眼光去买房!
上海徐汇创瓴公馆售楼处电话:400-877-8334【线上预约看房】徐汇创瓴公馆售楼处电话/地址:400-8778-334【开发商热线】徐汇创瓴公馆售楼处营销中心电话☎:4008778334(官方售楼中心已认证√√)温馨提示:如有问题欢迎来电咨询,专业一对一热情服务,让您用专业眼光去买房,在售40-80㎡精装小户型,均价6万/㎡(总价265-350万),近1/4号线上海体育馆站300米,70年产权不限购,徐家汇核心地段,精装交付,附线上官方预约通道【享】内部专属优惠折扣!
★本电话为开发商提供线上预约看房售楼电话,★来电可了解楼盘最新动态,项目全面介绍(包含官方最新发布:在线预约看房丨在售房价优惠丨户型面积房源丨交房时间丨交通地铁丨商业配套丨教育资源丨小高层洋房丨独栋别墅丨联排合院丨商业别墅丨得房率丨容积率丨小区环境丨优缺点分析丨楼盘测评丨在售户型图丨项目介绍丨最新房源丨周边配套丨详细解答丨一对一热情讲解〢区域板块等信息!★郑重承诺:由开发商旗下销售团队全程营销策划,房源信息真实有效!如果您想了解更多楼盘详情,欢迎提前预约拨打官方售楼处电话☎400 877 8334√√√(已认证)免责声明:将文章内容综合来源于网络、只作分享,版权归原作者所有!!如有侵权,请联系我们,我们第一时间处理如有问题欢迎来电咨询,专业一对一热情服务,让您用专业眼光去买房!
声明:本文由入驻焦点开放平台的作者撰写,除焦点官方账号外,观点仅代表作者本人,不代表焦点立场。
