中鹰·黑森林(售楼处) 首页 - 中鹰·黑森林销售中心 -中鹰·黑森林价格 - 地址 - 楼盘详情 - 配套 - 电话 - 交房时间 - 配套 - 电话 - 交房时间
扫描到手机,新闻随时看
扫一扫,用手机看文章
更加方便分享给朋友
不可再生的城市绿肺
说到如今的地产开发,大家都会说到一个词,那就是---高周转
从拿地到上市最快十个月就能完成,而中鹰用十多年,只是打造了上海一个内中环项目,在大家看来进度无疑是极其缓慢的。
而说到中鹰黑森林,大家都知道好,可到底好在哪里?都说细节体现用心,用心才出品质,那么一起来看看“魔鬼”细节。其实最初的黑森林并不是如此,开发初期整个设计为美式豪宅风格。
但在一次一次的颠覆中,最初小区内的硬地坪、喷泉、走廊全部敲掉,河流水景填实,全部种上11000棵成年香樟树,自造12万方森林海。
森林宽度达到130米,1公里长,体量足有4个半淮海公园大小,整个绿化率达到100%。整个社区都是绿色森林,树海环抱,连底层都挑空6~9米,种植绿色,让每户人家都能“开窗见树”,让房子生长在森林之上。
绿色森林能调节微气候,降低噪音(一条40米宽的森林带可降低噪音10~15分贝)、阻隔尘埃(每公顷森林每年能吸附50~80吨粉尘),调节温度与湿度,净化空气,使人平静、舒服,并能杀灭众多病菌,实现人与自然和谐相处。在夏天,小区内温度甚至可以比外部低8℃左右。
你不曾见过的样板房
中鹰黑森林的所有样板房从来不需要穿鞋套参观,都按照实际拎包入住标准打造,网络水电全通;墙纸、地板、涂料等装修品牌及材料均与交付标准一样,选用进口环保品牌,确保绿色无污染无甲醛。
「中鹰黑森林」的大平层都由欧洲顶级设计师执掌,并提供了北欧风范的奢华装修标准。全部个性化定制哦!你的房子户型你做主,前所未有的体验!
✅一生只搬一家,上海的世外桃源
✅拥有12万原生态森林
✅始终走在低碳住宅的前沿
✅领先世界卫生组织定义的健康科技住宅
六恒环保健康科技住宅 100%绿化率
一、基本信息:
开发商:上海中鹰置业有限公司
物业公司:上海中鹰黑森林物业有限公司
占地面积:约9.5万㎡
建筑面积:约27万㎡
产权年限:70年
楼栋数:16幢(本次销售房源分布在二、三期高层住宅)
总户数:1264(本次保留房源20套左右)
得房率:本次销售房源得房率为76-80%
总车位配比:1:1.2
绿化率:40%
均价:16w/㎡
能源费:15.8元/㎡/月【含中央能源费(毛细管冷暖系统、新风系统、地源热泵),中央净水、热水系统(热水免费供应),物业费等】
梯户比:2T2H
交付标准:高定奢装
交房时间:现房交付
生活配套:
商业:乐购,家乐福,巴黎春天,虎城嘉年,华等商业中心
银行:工商银行,建设银行,光大银行,交通银行
医院:万里中医院,天佑医院,同济大学附属医院。
教育配套:
童的梦双语幼儿园、晋元高级中学附属小学、初中,晋元高级中学。
交通配套:
交通状况:5分钟上内环,3分钟上中环
轨道交通:7号线(新村路站),11号线(上海西站)
二、主推房:
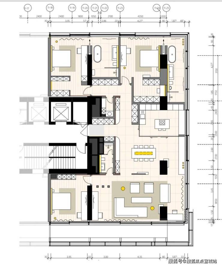
1002 3房 250平 南北通透 4014万
1⃣️客厅面宽8.5米,全落地窗设计沪上少有;
2⃣️中区楼层:中区的视野越过树梢,千米无遮挡,采光和通风效果特别好,客厅直面中央景观绿地,视野开阔 媲美纽约中央公园;
3⃣️主卧面宽8.5米,全落地窗观视野无遮挡 观自然水域 视野开中鹰黑森林项目
三、户型图和楼栋位置:
250平3房户型图
312平3房户型图:
实拍视野南向:
实拍视野北向:
四、室内视频(18层样板间带露台)
声明:本文由入驻焦点开放平台的作者撰写,除焦点官方账号外,观点仅代表作者本人,不代表焦点立场。
