桐安里首页网站-桐安里售楼处电话-桐安里楼盘详情-交房时间-地址-最新房价户型图-小区环境-楼盘详情
扫描到手机,新闻随时看
扫一扫,用手机看文章
更加方便分享给朋友
上海-桐安里售楼处电话☎:400-8558-334(预约热线)✔✔✔
如有问题欢迎来电咨询,专业一对一热情服务,让您用专业眼光去买房。
桐安里售楼处电话☎:400-8558-334【售楼热线】✔✔✔桐安里营销中心热线☎400-8558-334售楼处地址☎400-8558-334

基本信息:
项目位置:杨浦区惠民路 777 弄(平凉街道 19 街坊)。
开发商:招商蛇口与江苏海鸿集团。
总占地面积:约 1.27 万平方米。
总建筑面积:约 1.7 万平方米。
容积率:1.35。
产品类型:联排别墅、叠加别墅。
产品数量:70 席,其中 62 套联排,8 套叠加。
产权年限:70 年。
交付时间:预计 2026 年 12 月底。
户型信息:
主力户型:建面约 185-305㎡联排别墅,建面约 185㎡叠加别墅。
户型特点:联排别墅地上 3 层,赠送地下室(约 130-185㎡)、花园(约 50-150㎡)及露台,空间利用率高达 150%;叠加别墅上叠配备约 40㎡全景露台,下叠拥有约 60㎡南向庭院。
装修标准:联排毛坯交付,叠加精装交付。
价格信息:联排别墅总价约 3200 万 - 6400 万,叠加别墅总价约 2800 万起。
配套信息:
交通配套:双轨交汇,直线距离 18 号线平凉路站约 400 米、直线距离 12 号线江浦公园站约 500 米,周边有多条隧道通达浦东,周家嘴路地下的北横通道连接浦西中心城区。
商业配套:自带约 2000㎡高端会所及 1500㎡“桐安里坊” 商业街,3 公里内覆盖百联滨江购物中心、北外滩来福士等五大商业体。
教育配套:对口打虎山路第一小学,周边有复旦大学附属中学等。
医疗配套:周边有新华医院、长海医院等三甲医院。
上海-桐安里售楼处电话☎:400-8558-334(预约热线)✔✔✔
如有问题欢迎来电咨询,专业一对一热情服务,让您用专业眼光去买房。
桐安里售楼处电话☎:400-8558-334【售楼热线】✔✔✔桐安里营销中心热线☎400-8558-334售楼处地址☎400-8558-334

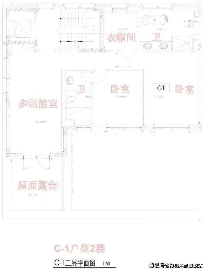
01
户型图如下
(户型图源自网络,仅供参考,最终以实际为准)
C-1户型
上海-桐安里售楼处电话☎:400-8558-334(预约热线)✔✔✔
如有问题欢迎来电咨询,专业一对一热情服务,让您用专业眼光去买房。
桐安里售楼处电话☎:400-8558-334【售楼热线】✔✔✔桐安里营销中心热线☎400-8558-334售楼处地址☎400-8558-334

02
项目情况
2023年11月,招商&海门国资委拿下平凉社区01B4-04地块(平凉街道19街坊)历史风貌保护项目。
从位置上看,平凉社区01B4-04地块(平凉街道19街坊)距离18号线平凉路站直线约400米,与地铁12/18号线江浦公园站直线距离约500。地块西面靠近首创天阅滨江项目,南侧靠近房地联动价21万的瑞安·翠湖滨江项目;可以说地理位置十分优越。
该地块建设用地面积12666.4平方米,规划用途为二类住宅组团用地,容积率1.35,地上计容建筑面积为17099.64平方米。
本次公示设计方案如下
根据此次方案公示图,项目地下建筑面积为25900平方米,共建有约15幢联排别墅,地块东南侧为3层的公租房,总户数约70套不到,主要以四联排为主。项目机动车入口设在南北两侧的惠民路和济宁路上。
项目涉及风貌保护,因此在出让阶段就有明确的要求
上海-桐安里售楼处电话☎:400-8558-334(预约热线)✔✔✔
如有问题欢迎来电咨询,专业一对一热情服务,让您用专业眼光去买房。
桐安里售楼处电话☎:400-8558-334【售楼热线】✔✔✔桐安里营销中心热线☎400-8558-334售楼处地址☎400-8558-334

时间之外,历史之间
内环滨江新复古主义当代精致风貌墅
招商蛇口于上海打造的第二座风貌作品、城市更新的里程碑级作品,择址杨浦内环滨江CAZ中央活动区,将里弄风貌与公馆规制创新融合,还原since1930黄金时代的人文历史底蕴与优雅风潮,撰写当代精致风貌墅的史诗。
『招商蛇口三子辉映敬献上海历史风貌作品』
百年招商局旗下地产旗舰品牌——招商蛇口,入沪21载,积累了深厚的城市更新经验。从上海第一个里弄风貌别墅区、上海城市更新里程碑级作品——弘安里,到杨浦/静安/虹口三子交相辉映,以雄厚实力成为首个在沪开发三大精致风貌墅的地产开发商。
江苏海鸿投资控股集团有限公司,总资产588.9亿元,企业主体信用等级为AA+。集团公司主营房地产开发、园区开发、物业服务、商业管理、科技金融、托育养老核心业务板块,致力打造成为长三角地区综合性国有企业品牌公司。
03
区域位置
『时代先驱招商与杨浦滨江的百年渊源』
1872年,李鸿章开设的轮船招商局旧址码头位于现在的杨浦滨江毛麻仓库附近;
1873年,招商局增盖仓库7座,定名为招商局北栈,现为公平路轮渡站,距离本项目地块约1.3公里。
『杨浦繁荣始于此,百年上海兴盛由此展开』
过去的八埭头是杨浦的“南京路”是老上海的十里洋场,杨浦最早的商业区;1912年后八埭头已经形成了以通北路为纵向、平凉路为横向的一楼商铺街市,百货、南货、绸布等商店以及当铺、茶馆等先后开设。
『上海“十四五”规划杨浦滨江跃升全球卓越城市会客厅』
在上海“十四五”规划中,杨浦滨江作为重点规划区域,不仅承载着世界级科创中心的使命,更成为丰富人文历史内涵的世界级会客厅。未来将推动数字经济与实体经济深度融合、整体转型,打造“一带、一区、一圈”数字经济地标
『“一江一河”战略,杨浦滨江成为杨浦核心地段的潜力板块』
杨浦滨江全长约15.5公里滨水岸线,约2倍于黄浦滨江;规划开发体量约796万方,约2.6倍于前滩,约5倍于陆家嘴。从规划到能级,“滨江3.0”时代,正奔涌而来。
『荟萃高端科创人才形成全球创新型产业聚集地』
美团上海科技中心、哗哩哗哩新世代产业园,抖音集团上海滨江中心、中国节能·上海首座等企业集群;汇聚复旦、同济等10所高校、100多家科研院所、7家国家级大学科技园力争到2025年集聚3000家以上创新型企业,产业规模超过3000亿元。
『内环滨江,黄浦江黄金中线』
杨浦滨江,内环CAZ最难得大规划整体开发滨江区域。在上海“一江一河2035规划”中,杨浦内环滨江是45公里滨江带中重点规划的“科创研发”板块。同时,根据《杨浦滨江南段控制性详细规划》,杨浦滨江南段,规划八埭头、大桥东两大功能核心,未来将打造成“世界创新要素的交汇枢纽、历史未来交融的魅力水岸、卓越人才安居的海派社区”。
『艺术人文打卡地潮领滨江』
作为上海2035总规划的“中央活动区”,杨浦滨江注重经济发展,更注重“人的体验”。烟草公司机修仓库,蜕变成葱郁空中花园“绿之丘”;百年编织“毛麻仓库”,化身灵动艺术场域;“长江口二号”古船博物馆,成为无数人的打卡胜地。
上海-桐安里售楼处电话☎:400-8558-334(预约热线)✔✔✔
如有问题欢迎来电咨询,专业一对一热情服务,让您用专业眼光去买房。
桐安里售楼处电话☎:400-8558-334【售楼热线】✔✔✔桐安里营销中心热线☎400-8558-334售楼处地址☎400-8558-334

『立体交通枢纽,直抵城市核心区』
地铁交通:距离18号线平凉路站直线距离约400M、12号线江浦公园站直线距离约500M,通过换乘可实现6站抵达陆家嘴、5站抵达外滩、3站直达北外滩。
自驾交通:多条隧道通达浦东,自驾快速抵达陆家嘴、外滩;周家嘴路地下在建的北横通道,连接长宁区、普陀区、静安区、虹口区、杨浦区的城市快速路,通车在即。
『醇熟商业林立,近享百万方商业』
百联滨江购物中心、东方渔人码头国际中心、LCM置汇旭辉广场、北外滩来福士等,醇熟商圈范围,繁华在此汇集。
『一江五园在侧,与自然和谐共生』
杨浦滨江沿岸,平凉公园、江浦公园、杨浦公园、波阳公园、复兴岛公园,享受都芯自然佳境。
『六大医疗资源,健康生活全护航』
复旦大学附属妇产科医院(三甲)、上海交通大学附属新华医院(三甲)、上海市第一康复医院、杨浦区中医院、杨浦区中心医院、上海市浦东新区公利医院,近享无忧医疗配套。
市政配套信息,包含交通,商业和医疗等数据,均来源于售楼处网站,仅供参考,不排除因政府规划、政策规定及出卖人未能控制的原因而发生变化,本资料旨在提供相关信息,不代表着出卖人对此作出要约或承诺。
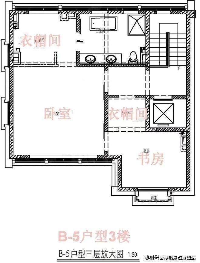
05
户型图如下
项目地址:杨浦区惠民路777弄
总户数:70户可售商品房
建筑层数:1-4层
产品类型:里弄风貌别墅
交付标准:联排毛坯+叠加装修
产权年限:70年
容积率:约1.35
『风貌还原』再现原地块百年前建筑风貌
对街道风貌品质进行焕新,借鉴英商电车厂的装饰元素,打造唯美十字路口——经典海派建筑形态。沿街立面参考了原地块建筑风貌,在传统的基础上重塑上宅下铺的风貌形态,与周边街道场景相呼应,结合当代审美,重塑摩登时尚的街道舞台。
『创新立面』将里弄风貌与传统建筑规制巧妙融合
通过壁柱、⼋角窗、⻔楼等不同材料和细节进行组合,打造现代风貌新样本,延续原有多样化建筑立面;传承传统海派建筑黄金比例形制,在开间、层⾼、窗墙比等不同维度⾰新设计,更加满⾜现代⼈⽣活需求,采光效果更佳。
『海上花园』文艺巷弄里的优雅秘境
自然掩映的诗意归家路,移步换景赏四季更替之美;专属定制石库门精神徽章、艺术奢石点缀,以大师审美定义生活的品位;莫奈花房与时光花园,在绿境中与老友新邻笑谈人生,构建巷弄繁花里。
上海-桐安里售楼处电话☎:400-8558-334(预约热线)✔✔✔
如有问题欢迎来电咨询,专业一对一热情服务,让您用专业眼光去买房。
桐安里售楼处电话☎:400-8558-334【售楼热线】✔✔✔桐安里营销中心热线☎400-8558-334售楼处地址☎400-8558-334

声明:本文由入驻焦点开放平台的作者撰写,除焦点官方账号外,观点仅代表作者本人,不代表焦点立场。
