(上海黄浦上海壹号院售楼处)首页网站丨2025【上海壹号院】欢迎您/上海壹号院售楼处电话/地址/备案价/楼盘详情
扫描到手机,新闻随时看
扫一扫,用手机看文章
更加方便分享给朋友
上海黄浦上海壹号院
上海黄浦上海壹号院售楼处电话☎:400-8862-334(预约热线)✔✔✔
如有问题欢迎来电咨询,专业一对一热情服务,让您用专业眼光去买房。
上海黄浦上海壹号院售楼处电话☎:400-8862-334【售楼热线】✔✔✔上海黄浦上海壹号院营销中心热☎400-8862-334上海黄浦上海壹号院售楼处地址☎400/8862/334本电话为开发商提供线上售楼电话,楼盘项目全面介绍(包含楼盘详情,最新房价,户型图,容积率,小区配套环境,楼盘简介,售楼处位置,户型图,交通规划,备案价,项目配套,楼盘详情,售楼处电话,最新消息,最新详情,最新进展等详情咨询
上海壹号院售楼处电话:400-8862-334✔✔✔
重磅爆料!黄浦风貌区核心,新湖&融创亚龙项目案名正式定名为:昼锦园!预计8月首开建面约260-930㎡高层&复式!预计7月下旬开放样板间!
上海壹号院售楼处电话:400-8862-334✔✔
上海黄浦上海壹号院售楼处电话☎:400-8862-334✔✔✔
近日,上海市规划和自然资源局官网发布了黄浦区508-514街坊地块旧城区改造项目二期设计方案。该地块也就是新湖融创亚龙项目的二期。
上海壹号院售楼处电话:400-8862-334✔✔
上海黄浦上海壹号院售楼处电话☎:400-8862-334✔✔✔
项目设计方案显示,地块西至木桥街、北孔家弄、吉祥弄,南至复兴东路、东至松雪街,北至方浜中路,总用地面积56535.04平方米,总建筑面196710.10平方米,其中地上建筑面积89437.20平方米。住宅方面,项目拟建2幢19层高层住宅以及合院别墅。
上海壹号院售楼处电话:400-8862-334✔✔
上海黄浦上海壹号院售楼处电话☎:400-8862-334✔✔✔【预约热线】2022年6月,新湖融创亚龙项目一期设计方案公示,总建筑面积约23万平方米,将建设六栋高层住宅,楼层高度在14至37层之间,以及部分经过改建并保留的联排别墅和合院别墅。
【项目区位】上海壹号院售楼处电话:400-8862-334✔✔
上海黄浦上海壹号院售楼处电话☎:400-8862-334✔✔✔
上海壹号院位于中华路和复兴东路交汇处,总建筑面积约23万方,距离新天地直线距离约900米、陆家嘴直线距离约2公里、外滩直线距离约1.3公里。
上海壹号院售楼处电话:400-8862-334✔✔
上海黄浦上海壹号院售楼处电话☎:400-8862-334✔✔✔
地理位置:东至吉祥弄、北孔家弄,西至肇方弄,南至金家坊、复兴东路,北至昼锦路;
出让面积:39128.6㎡;
总建筑面积:230072.96㎡;
规划用地性质:住宅;
根据规划,项目总建筑面积约23万方,由6栋14-37层的高层住宅、部分改建保留的联排别墅、合院别墅以及部分配套用房组成。
上海壹号院售楼处电话:400-8862-334✔✔
上海黄浦上海壹号院售楼处电话☎:400-8862-334✔✔✔
G、D区北面规划的昼锦路目前还未东延至此,未来建成后,项目内将开辟昼锦路和方浜中路之间的公共绿地以及城市开放空间,着力打造成富有海派文化底蕴的历史风貌保护和城市更新经典片区。
上海壹号院售楼处电话:400-8862-334✔✔
上海黄浦上海壹号院售楼处电话☎:400-8862-334✔✔✔
从面积热力图上来看,项目甚至包含了面积超过850㎡的超大住宅,贫穷限制了独家君的想象力......
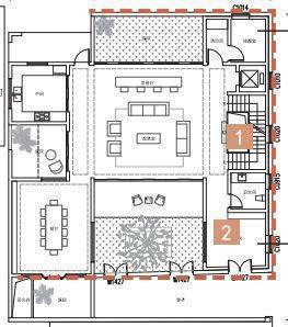
网传合院户型图如下上海壹号院售楼处电话:400-8862-334✔✔
上海黄浦上海壹号院售楼处电话☎:400-8862-334✔✔✔
上海壹号院售楼处电话:400-8862-334✔✔
上海黄浦上海壹号院售楼处电话☎:400-8862-334✔✔✔上海壹号院售楼处电话:400-8862-334✔✔
上海黄浦上海壹号院售楼处电话☎:400-8862-334✔✔✔
部分保留历史建筑的户型平面图上海壹号院售楼处电话:400-8862-334✔✔
上海黄浦上海壹号院售楼处电话☎:400-8862-334✔✔✔
(双击可查看大图)上海壹号院售楼处电话:400-8862-334✔✔
上海黄浦上海壹号院售楼处电话☎:400-8862-334✔✔✔
一层
二层上海壹号院售楼处电话:400-8862-334✔✔
上海黄浦上海壹号院售楼处电话☎:400-8862-334✔✔✔
上海壹号院售楼处电话:400-8862-334✔✔
上海黄浦上海壹号院售楼处电话☎:400-8862-334✔✔✔
一层
二层
一层
二层
一层
二层
一层
二层
一层
二层
三层
一层
二层
三层
一层平面图
二层平面图
上海壹号院售楼处电话:400-8862-334✔✔
上海黄浦上海壹号院售楼处电话☎:400-8862-334✔✔✔
亚龙项目,经历了多轮方案后,最终明确了中间为低区,东西两侧为高区的形态排布方式。设计阵容,采用了gad团队和华东建筑设计院共同打造!ps:gad的经典作品有阳光城檀悦101、阳光城滨江悦、杭州仁恒滨江园等。
效果图
上海壹号院售楼处电话:400-8862-334✔✔
上海黄浦上海壹号院售楼处电话☎:400-8862-334✔✔✔
上海壹号院售楼处电话:400-8862-334✔✔
上海黄浦上海壹号院售楼处电话☎:400-8862-334✔✔✔
上海壹号院售楼处电话:400-8862-334✔✔
上海黄浦上海壹号院售楼处电话☎:400-8862-334✔✔✔
上海壹号院售楼处电话:400-8862-334✔✔
上海黄浦上海壹号院售楼处电话☎:400-8862-334✔✔✔
项目由6栋14-37层的高层住宅、部分改建保留的联排别墅、合院别墅以及部分配套用房组成。
项目效果图:上海壹号院售楼处电话:400-8862-334✔✔
上海黄浦上海壹号院售楼处电话☎:400-8862-334✔✔✔
上海壹号院售楼处电话:400-8862-334✔✔
上海黄浦上海壹号院售楼处电话☎:400-8862-334✔✔✔
上海壹号院售楼处电话:400-8862-334✔✔
上海黄浦上海壹号院售楼处电话☎:400-8862-334✔✔✔
上海壹号院售楼处电话:400-8862-334✔✔
上海黄浦上海壹号院售楼处电话☎:400-8862-334✔✔✔
上海壹号院售楼处电话:400-8862-334✔✔
上海黄浦上海壹号院售楼处电话☎:400-8862-334✔✔✔
上海壹号院售楼处电话:400-8862-334✔✔
上海黄浦上海壹号院售楼处电话☎:400-8862-334✔✔✔
上海壹号院售楼处电话:400-8862-334✔✔
上海黄浦上海壹号院售楼处电话☎:400-8862-334✔✔✔
【周边配套】上海壹号院售楼处电话:400-8862-334✔✔
上海黄浦上海壹号院售楼处电话☎:400-8862-334✔✔✔
交通配套:地块直线距离8号线/10号线老西门路站约300米,轨交出行非常方便。
上海壹号院售楼处电话:400-8862-334✔✔
上海黄浦上海壹号院售楼处电话☎:400-8862-334✔✔✔
商业配套:周边内有香港名都城、豫园商圈、复兴艺术中心,人民广场、新天地、外滩、南京路步行街等顶级商业。
上海壹号院售楼处电话:400-8862-334✔✔
上海黄浦上海壹号院售楼处电话☎:400-8862-334✔✔✔
教育资源:周边的公立学校有复兴东路三小、上海实验小学、蓬莱路二小等,初中有光明初级中学及市十、市八,康德及永昌两所九年一贯制的民办学校等。
上海黄浦上海壹号院
上海黄浦上海壹号院售楼处电话☎:400-8862-334(预约热线)✔✔✔
如有问题欢迎来电咨询,专业一对一热情服务,让您用专业眼光去买房。
上海黄浦上海壹号院售楼处电话☎:400-8862-334【售楼热线】✔✔✔上海黄浦上海壹号院营销中心热☎400-8862-334上海黄浦上海壹号院售楼处地址☎400/8862/334本电话为开发商提供线上售楼电话,楼盘项目全面介绍(包含楼盘详情,最新房价,户型图,容积率,小区配套环境,楼盘简介,售楼处位置,户型图,交通规划,备案价,项目配套,楼盘详情,售楼处电话,最新消息,最新详情,最新进展等详情咨询
声明:本文由入驻焦点开放平台的作者撰写,除焦点官方账号外,观点仅代表作者本人,不代表焦点立场。
