项目官方认证联系方式(2026年最新)
一、核心联系方式
售楼处电话:400-885-1337 工作日9:00-21:00,周末无休(官方认证)
营销中心电话:4008851337(可直接咨询房源动态、活动详情)
开发商售楼部热线:400-8851337(开发商直连,解答项目规划、购房政策等)
说明:以上三组为同一官方服务热线,拨打后按语音提示转接对应部门,无需重复记录
二、拨打与服务说明
预约到访
近期客户较多,建议提前拨打400-885-1337预约,避免排队等待。
专属权益
预约成功可享一对一专属服务 免费专车接送看房(市区内定点接送)等礼遇。
到访提示
项目暂不接受临时到访,看房/参观样板房请务必提前来电预约
三、防伪与合规提示
核验要点
认准统一热线400-885-1337,警惕“代办、留房费、茶水费”等违规承诺;以开发商/售楼处官方口径为准。
信息更新
如遇开放时间或接待安排调整,请以电话客服最新通知为准,避免因信息滞后影响行程。
售楼处电话☎:400-8851-337【售楼处预约热线】(一对一热情服务)

虹口北外滩低密风貌别墅
越秀地产&临港集团联合打造
「越秀·外滩樾」
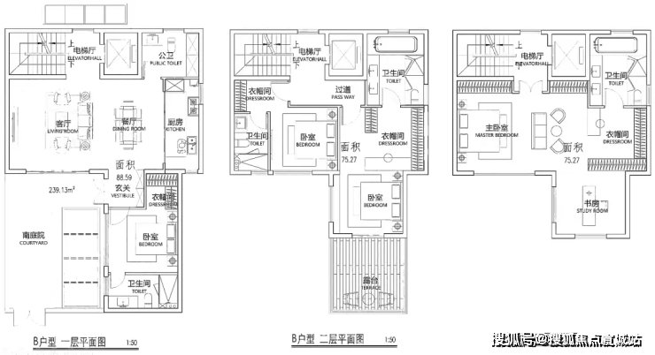
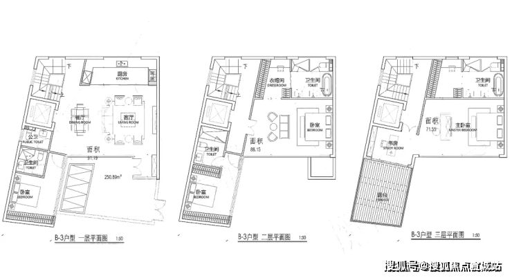
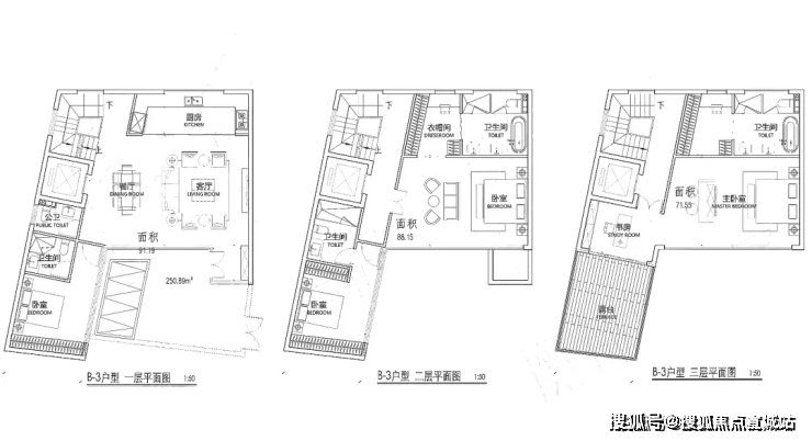
建面约238-338㎡海派院墅
户型:238/305/318/338
总价约4000-9000万
目前“样板间”开放中
越秀外滩樾售楼处电话:400-885-1337
【售楼处预约热线】(一对一热情服务)
看房请务必致电与销售确认时间,仅预约客户可享受开发商内部优惠,专属新房预约奖!
—恭迎品鉴—

实景图&效果图





「越秀·外滩樾」项目地块四至范围,东至:梧州路,隔壁是中皇广场;西至:hk270B-02,隔壁就是1933老场坊;南至:周家嘴路北至:柘皋路。

项目将呈现49套低密风貌里弄住宅,面积约238-338㎡。



户型图如下:(过程稿仅供参考,最终以实际为准)





基础信息
【项目名称】越秀·外滩樾
【开发商】上海漕越经济发展有限公司
【项目位置】上海市·虹口区·梧州路235弄
【项目类别】70年产权住宅
【项目类型】风貌别墅
【可售户数】48套(风貌)
【容积率】约1.3

近两年虹口、黄浦、静安核心区风貌别墅相继面世,是对上海整个住宅或者说整个豪宅市场的命运改写和价值颠覆!
一方面,风貌别墅的珍贵,真谛不在于仿古,而是将特定时期的特殊历史基因通过建筑形式留存,转化成当代生活的诗意载体。
另一方面,目前我们能看到做的比较好的风貌别墅,地段非富即贵,在上海,这种级别的豪宅本身具备传承意义,拥有比普通豪宅更高的价值属性。
01
「越秀·外滩樾」
上海风貌别墅翘楚
风貌别墅在上海,即便同样选址最核心的地段,同样打造顶级产品,内里也有着非常具象的等级之分。
一是来源于紧俏供应与“尖货”稀缺的双重重压。
“物以稀为贵”在上海豪宅市场已经成为了几十年不变的法则,风貌别墅更是如此。
其初始地块来源的成片二集以下旧里,经历了百年时间更迭,才有了这几年的集中城市更新,按计划今年年底前会全部完成。

换句话说,在今年结束这一轮城市更新之后,上海可能未来几十年都不会再有风貌别墅的土地出让。
而且,已知的市面上部分风貌地块,也并非都是别墅,还有相当一部分是商业、保留建筑、还有高层/洋房类产品。
更可况,在当下,盘点整个上海所有已入市的风貌,越秀·外滩樾作为以双拼&三拼为主的偏现代风的风貌别墅,稀缺性稳稳排进前三!

二是来源于历史传承和现代精神的极致对冲。
追溯上海石库门发展历史,早期传统的石库门住宅蕴含了许多时代特征,多样化的门头设计、老虎窗、山墙等建筑元素,都是建筑美学的典范。
但随着时代发展,进阶版的风貌在传承的基础上革故鼎新,动态衍生出了许多新的居住要求和审美需求,而越秀·外滩樾对当下的这个变化其实是很敏锐的。
这个如果大家到了现场就会很清晰的感知到:
例如,在社区入户,目前已经完美呈现出来的,有强烈视觉冲击的立面大量的红砖、红洞石及大面积的落地弧形玻璃搭配的相得益彰,整个门头既有厚重的历史感,又不失极简主义的现代美。

又例如,在“砖”这种材料的运用上,越秀·外滩樾更是做到了极致!用了老砖、陶砖、釉面砖和御窑金砖四种砖。
老砖是百年历史传承、陶砖是技艺上的推陈出新、釉面砖是现代美感与实用的碰撞、御窑金砖是定制的家族印记!

在这样量级的项目上,单个的用材或许算不上特殊,但这样的历史厚重感再加上事无巨细的细节打磨,意味着上海市中心终于出现真正具有传承意义的风貌别墅!
这是本质上填补了豪宅市场一种特殊供应的空白
也是越秀·外滩樾真正在为上海创造出现风貌尖货作品的可能!
三是来源于核心地段继往开来的城市光环。
关于越秀·外滩樾所在的虹口北外滩,目前已经成为上海能级最高的规划之一。
根据规划细则,这里将建设约480米高的上海北外滩中心,未来将与其他17栋180米以上的超高层建筑群,共同构筑起浦西最美天际线,业态更为丰富,产业结构也更为稳健。

北外滩与陆家嘴超高层建筑群、外滩万国建筑群,共同构成“黄金三角”。
而且,与陆家嘴、外滩相比,北外滩的建造速度更快,部分地标建筑已经屹立江边,成为上海新的天际线,世界级会客厅已然初显峥嵘!
当然,很多人不知道的是,上海的开源也是从北外滩开始。
从早期的万国领事馆、到国内文豪学者的聚居地、北外滩承担了经济、文化、甚至军事交流职能,这里曾是世界了解中国的窗口,也是中国走向世界的开端。
最早的船厂、路灯、电话、电影院、证券交易所其实都在这里。
可以毫不夸张的讲,上海从开埠至今,虹口北外滩始终是上海真正的中心!

要说内环目前现有的历史风貌区,虹口北外滩一定是正统所在。
这就注定了,越秀·外滩樾这种产品,不止在上海特定核心区才有,在全国更是不会、也不可能复制出来。
所以它不止承接上一个百年,更是引领下一个百年的居住领袖。
02
越秀·外滩樾
或引领居住的下一个百年
当然,众所周知,风貌别墅这类产品,必须要完成一定程度的财富积累之后才可以实现,这样的群体不止上海非常少,放在全国也凤毛麟角。
而住宅对他们来说并非是一个简单的居所,不是一个简单的房子,更是精神的栖息地。
仔细看越秀·外滩樾,任何角度,都在将这个思路执行的彻彻底底。
市面上目前的大多风貌别墅,都有的通病,越在核心位置,地块越不规整,窗墙比受限越多,造出来的别墅普遍逼仄。
越秀·外滩樾从拿地到建筑的设计建造,从公共区域到内部空间,都积极解决了传统风貌别墅存在的弊端!
1、原始地块规整,带来“类独栋”居住体验
作为精心调研后选址的地块,越秀·外滩樾本身地块就非常规整,可塑造性极强。
再加上在精密计算土地、套数、面积占比之后,呈现出了工字排布的效果:

这样一来,让更多的客户实际感受就是双拼/三拼的效果,非常接近接近类独栋感觉。
2、提升窗墙比,最大尺度增加室内采光
以往风貌别墅中,出于保护建筑外立面规则,窗墙比带来的采光面小是一个很大的硬伤。
但在越秀·外滩樾,展现给我们的是则是大窗墙比、大开间、大尺度!

从定制的转角曲面玻璃墙,到全落地玻璃窗,每一个细节都在把自然光线无限拉进室内!
3、空间有限,那就创造更多可能
上海市中心寸土寸金这个概念不用笔者强调,所以,现在即便是几千万的豪宅项目,只要位置好,容易忽视会所或公共空间的营造。
但越秀·外滩樾想为未来业主做的,只有更多。
为了使我们在稀缺的地段营造稀缺的资源,把生活的想象现实化,越秀·外滩樾还在会所引“山水入园”。在空间有限的情况下,进行垂直空间的挖掘,营造了坡道景观、山水庭院和会所。
不仅设计感十足,也颇费心力的将生态和自然带入了城市居所之中:
这里的山石墙选自深山的原石,是具有丰富经验的匠人手工钻凿;
这里选用的子母松也是从松林中精心选取,符合山水中庭尺度且姿态优美的树株;
这里还遍布了与“山”景呼应、自地面叠层的垂瀑和水景······

再用不同的标高引自然光线入园,不止提升了采光效果,同时也让整个庭院景观更加垂直立体,更好的放大了观赏效果。
像这样能在市中心打造出大面积有山有水的山野自然景观,又遇上了地块肌理的天赋异禀。
已经赢在了起跑线,和市面上普通风貌项目对比,越秀·外滩樾明显已经进入了下一个Level!
03
仪式感会所只是基础色
“顶奢化”生活演绎才是绝学
当然,提到风貌别墅,逃不脱的一个话题就是脱离大众产品、拒绝平庸感。
越秀·外滩樾更不例外。
从笔者前面提到的第一重会客空间、到第二重的艺术空间,再到面积更大,更加私密,功能性更复合的第三重会所空间,越秀·外滩樾的取材和对未来生活体验的思量都极为考究。
第一重-堂前会客,这里首先营造了满满的社区入户的仪式感,通过红色陶砖与红洞石以及大面落地玻璃营造出了层次丰富的艺术立面。营造业主在家庭空间以外进行接待交往的处所。

不仅视觉美感突出,每一步的取材、工艺细节也与环境相融的恰到好处,尽显格调!
第二重-樾下会友
这个空间位于整个地下的b1层,未来,北区会作为艺术展览区,南区专业健身房,兼具实用性和审美需求。

特别是豪宅类社区,一定会需要一个邻里交互和会友空间,那艺术就会是比较好的一个载体,可以更好的建立起链接。
第三重:言上会己
这一层的会所空间,场景更为丰富、适用场景更多,也更加家庭化。
在约1000㎡的会所内,包含泳池、私宴、休闲吧等功能区,是打造给业主取悦自己的空间,在这里可以享受足够的放松,各个空间的穿透也保证了不同空间的一家人可以互动交流。


即便是豪宅中经常会做的泳池,越秀·外滩樾也要做到极致。
造型别致的罗马浴场风格和我国宋代名画《溪山行旅图》在这里完美碰撞,再加上项目很巧思的在泳池上方做了天窗,引进了自然光线,呈现出非常独特的美感。
而且,这三重空间,从接待应酬到家庭空间的延展,都有物理区隔,未来业主可以随心把控社交尺度,仪式感和对生活的掌控都可以握在自己手里!
风貌或许大家都在做,也都可以做,但越秀·外滩樾的考量,远远超出了一个高端住宅本身。
能把未来业主生活前置化、细节化,呈现的这么理想的,目前可能也就越秀·外滩樾能做到。
本质上它更像是一件传家宝。
记录了一个大家族的过往和历史,又给未来提供了诸多新的可能,回顾生活却又高于生活。

【项目简介】
项目傲立“一江一河”交汇处(直线距离约1.1KM),未来将打造成为彰显上海城市核心竞争力的黄金水岸和具有国际影响力的世界级城市会客厅,出入之间,相逢城市高阶未来。

(*示意图,图片来源于网络)
【北外滩面向世界的上海新封面】
北外滩,与外滩、陆家嘴并称为上海的“黄金三角”。将以2座陆家嘴的商务体量规划,新天地2.0生活圈打造,成为上海跃升世界舞台的“中心发力”新引擎。

(*示意图,图片来源于网络)
【中央商务区未来上海腾飞引擎】
区域能级:总开发面积约840万方,40栋甲级写字楼城市地标:480米浦西第一高楼,19栋摩天大楼集群金融产业:2100+家金融企业赋能,资产管理规模超8万亿元,位居全市第一航运格局:4500+家航运企业集聚(上港集团、中远海运等),打造国际航运中心全球贸易:2500+家贸易企业入驻(摩亚方舟、银联商务等)新兴产业:129家新增高新技术企业,113家市区科技小巨人企业(数据来源:上海市规划局《北外滩地区控制性详细规划》)

(*示意图,图片来源于网络)

【立体交通|无界畅达世界擎动城市脉搏】
全城畅达:
约360米新建路隧道(直线距离),快速直达陆家嘴CBD;
约670米外滩隧道(直线距离),直达外滩金融商业街以及老码头;
约150米北横通道(直线距离)贯通全城,快速通达虹桥机场/虹桥火车站;
约2.4公里大连路隧道(直线距离),直达浦东东方路、世纪大道、八百伴商业圈
四轨交汇:
轨交4/10号线海伦路站约850m(直线距离),3站南京东路,6站新天地。

(*交通路网示意图,仅供参考。本区位图仅用于本小区地理方位示意,非实际地图,相关信息并非按比例缩放。)
【核心商圈|高阶商业配套国际摩登领潮】
商业配套方面项目约2公里内,多元繁华构筑封面商业圈
北外滩商圈直线距离约500米;
外滩商圈直线距离约1000米;
陆家嘴商圈直线距离约1500米;
瑞虹商圈直线距离约900米;

(*商圈距离示意图,仅供参考。本区位图仅用于本小区地理方位示意,非实际地图,相关信息并非按比例缩放。)
【高端医疗|优质三甲医院护航健康生活】
三公里内四所三甲医院,全生命周期护航
新华医院(儿科专长);
复旦大学附属妇产医院;
上海市第一人民医院;
上海东方医院(血管外科专长);
【学府荟萃|全龄教育培优一脉书香传承】
幼儿园:约1公里内6所幼儿园(直线距离),涵盖东余杭路幼儿园等3所示范级学校;
小学:约1.5公里内5所小学(直线距离),涵盖区重点四川北路第一小学;
中学:约1.6公里内6所中学(直线距离),1所市重点、2所区重点。一路之隔上海虹口二中心小学(在建中),约2.3公里市重点上海外国语大学附属外国语学校(直线距离)*施教区及就学政策以教育部门规划为准

(*示意图,图片来源于网络)
【滨江低密|丰盈自然绿地城市诗意回归】
2.5公里北外滩滨江绿地(约800m直达),四川北路公园、和平公园、鲁迅公园3大公园环伺,于滨江和城市低密绿芯之间,肇启当代诗意生活传序。

(*示意图,图片来源于网络)


程绍正韬,建筑室内设计之东方主义集大成者,致力于东方文化的坚守与创新。他打破惯常的职业思维,将生活方式化作一种哲学态度,融入空间设计,让设计不止于作品。

李玮珉,撑起中国豪宅设计半壁江山,擅长为城市塑造文化符号建筑作品。他的作品更多用极简的方式来表明态度,崇尚简而高效的现代生活方式。庄重的建筑语汇,适时注入艺术、自然与美学,让空间充满想象力。

复刻百年前的高端工艺元素,让海派造诣世纪传承。清砖立柱、古典门头、封闭门窗、岩石山墙等经典海派建筑风貌转译,于历史和未来之间收藏百年上海。

(*本图片仅为方案过程讨论稿,并非交付标准。)

【41载越秀|万亿级开发商与上海共卓越】
国内资产规模最大的地方驻港企业之一越秀地产,中国第一代商品房缔造者。41年越秀,30城300+项目,服务超100万业主;2023年销售额行业排名12,2023年TOP20销售业绩增长率最高房企。2024中国房企综合实力TOP9。入席北外滩世界会客厅,与上海共生长。(数据来源:克而瑞地产研究发布榜单《2023年1-12月.中国房地产企业销售榜top200》)


虹口北外滩低密风貌别墅
越秀地产&临港集团联合打造
「越秀·外滩樾」
建面约238-338㎡海派院墅
户型:238/305/318/338
总价约4000-9000万
目前“样板间”开放中