上海杨浦信达上海院子(售楼处)网站-2026信达上海院子 营销中心(售楼处中心)欢迎您-周边环境-户型-价格-地址-楼盘详情-户型配套-售楼电话-交房时间
扫描到手机,新闻随时看
扫一扫,用手机看文章
更加方便分享给朋友
上海杨浦信达上海院子 项目官方认证联系方式(2026年最新)
一、核心联系方式
售楼处电话:400/8862/334工作日9:00-21:00,周末无休
营销中心电话:400-8862-334(可直接咨询房源动态、活动详情)
开发商售楼部热线:400-8862-334(开发商直连,解答项目规划、购房政策等)
说明:以上三组为同一官方服务热线,拨打后按语音提示转接对应部门,无需重复记录
二、拨打与服务说明
预约到访
近期客户较多,建议提前拨打400/8862/334预约,避免排队等待。
专属权益
预约成功可享一对一专属服务免费专车接送看房(市区内定点接送)等礼遇。
到访提示
项目暂不接受临时到访,看房/参观样板房请务必提前来电预约
三、防伪与合规提示
核验要点
认准统一热线400/8862/334,警惕“代办、留房费、茶水费”等违规承诺;以开发商/售楼处官方口径为准。
信息更新
如遇开放时间或接待安排调整,请以电话客服最新通知为准,避免因信息滞后影响行程。
售楼处电话:400/8862/334【售楼处预约热线】(一对一热情服务)
看房请务必提前致电销售确认时间,只有预约客户才能享受开发商提供的内部优惠以及专属的老客户推荐奖励!我们提供专业的一对一热情服务,助您以专业视角挑选理想的房产
杨浦·新江湾·国际社区
【信达泰禾·上海院子】
地上面积989.55㎡地下面积663.52㎡
联排别墅仅有两套售价8915万
70年产权毛坯现房线上预约

上海杨浦信达上海院子售楼处电话:400--8862-334(预约看房热线)
【信达上海院子官方售楼处咨询热线】400/8862/334(24小时服务,人工客服8:00-22:00)
项目基本信息

新江湾是上海传统豪宅区,毗邻五角场城市副中心,拥有9.45平方公里的原生湿地以及约15万㎡的新江湾湿地公园生态稀缺资源。【信达泰禾·上海院子】位于新江湾城核心位置,家门口就是10号线殷高东路站,步行可达。
【上海院子】独特的院落式社区打造,融合了“院子系”特点、福州三坊七巷和上海弄堂形制,规划了“三街九坊十八巷”。且以“大门、坊门、院门、宅门”四进系统层层递进。项目精益求精,如吊顶天花雕刻的是龙纹和祥云的图案,寓意吉祥安康。


每个长盛不衰的家族,皆有优良的家风相传。每个中国人的家风,总离不开一座院墅。一方土地,一方围合,一方生活,世代家风传承。【泰禾信达上海院子】——经过多年沉淀和过硬的口碑,已经成为新中式豪宅的代表作。
上海杨浦信达上海院子售楼处电话:400--8862-334(预约看房热线)
【信达上海院子官方售楼处咨询热线】400/8862/334(24小时服务,人工客服8:00-22:00)

【上海院子】为业主提供了社区活动中心,自带约3600平方会所,面宽约75米室内外双泳池、健身房、spa房,咖啡吧、vip室等...足不出户让业主享受7星级高级定制服务。


VIP影院▼

上海杨浦信达上海院子售楼处电话:400--8862-334(预约看房热线)
【信达上海院子官方售楼处咨询热线】400/8862/334(24小时服务,人工客服8:00-22:00)
健身中心,瑜伽中心▼

室内恒温泳池▼
VIP会客厅,幼托中心等▼

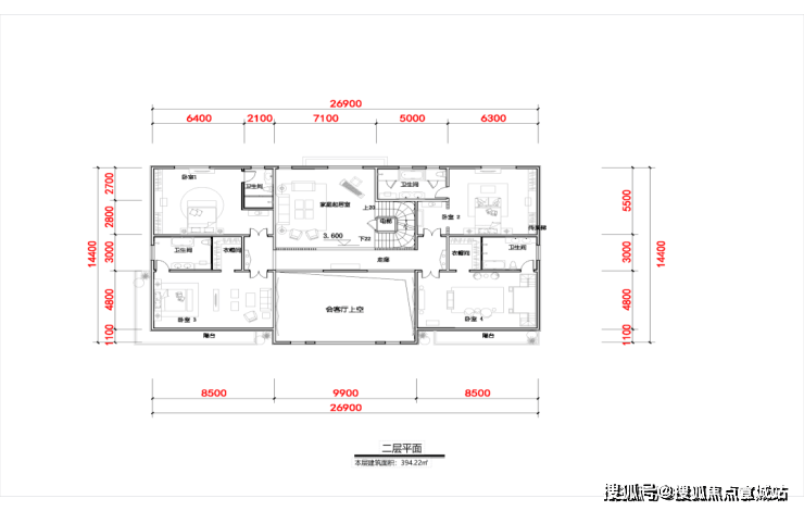
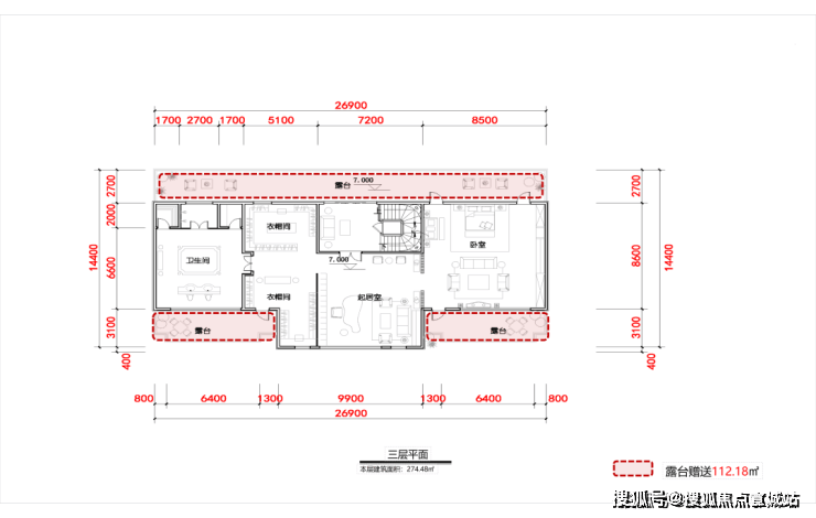
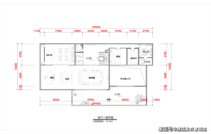
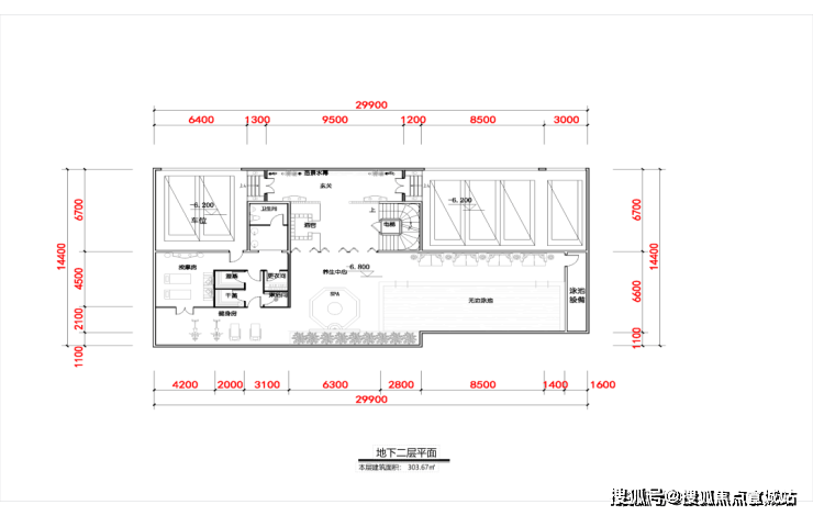
在售房源户型图
【信达泰禾·上海院子】
每个长盛不衰的家族,皆有优良的家风相传。
每个中国人的家风,总离不开一座院墅。
一方土地,一方围合,一方生活,世代家风传承。
共2套联排别墅,一手毛坯现房
地上面积989.55㎡,地下面积663.52㎡
在售房源户型图▼


上海杨浦信达上海院子售楼处电话:400--8862-334(预约看房热线)
【信达上海院子官方售楼处咨询热线】400/8862/334(24小时服务,人工客服8:00-22:00)




装修建议示意图▼


上海杨浦信达上海院子售楼处电话:400--8862-334(预约看房热线)
【信达上海院子官方售楼处咨询热线】400/8862/334(24小时服务,人工客服8:00-22:00)




上海杨浦信达上海院子售楼处电话:400--8862-334(预约看房热线)
【信达上海院子官方售楼处咨询热线】400/8862/334(24小时服务,人工客服8:00-22:00)
项目区位配套
根据杨浦区2035规划,新江湾城、五角场属于杨浦西部核心区,产业导向明确,产业发展条件成熟,是杨浦重点发展的区域。
作为新江湾城重磅亮相的新盘,项目在享受区域发展红利的同时,周边也有着完善配套,生活便利!
图片来源于网络
上海杨浦信达上海院子售楼处电话:400--8862-334(预约看房热线)
【信达上海院子官方售楼处咨询热线】400/8862/334(24小时服务,人工客服8:00-22:00)
新江湾是上海传统豪宅区,毗邻五角场城市副中心,拥有9.45平方公里的原生湿地以及约15万方的新江湾湿地公园生态稀缺资源。
图片来源于网络
交通配套方面:家门口就是10号线殷高东路站。一线(10号线)、一桥(杨浦大桥)、两环(中环&内环)、两隧(翔殷路&军工路隧道)构成立体交通网络。
位置示意图

【商业配套方面】:步行可快速到达约90万方的铁狮门的商业圈,车行可快速到达五角场商圈。
图片来源于网络
上海杨浦信达上海院子售楼处电话:400--8862-334(预约看房热线)
【信达上海院子官方售楼处咨询热线】400/8862/334(24小时服务,人工客服8:00-22:00)【教育资源方面】:周边有中福会幼儿园、延吉幼儿园(区重点)、同济第一附中(市重点)等。同时距上海音乐学院实验中小学(市重点)距离仅约800米。
图片来源于网络

医疗资源方面:周边有3家三甲医院,上海肺科医院、东方肝胆外科医院、上海长海医院,共同保障家人健康。

杨浦·新江湾·国际社区
【信达泰禾·上海院子】
地上面积989.55㎡地下面积663.52㎡
联排别墅仅有两套售价8915万
70年产权毛坯现房线上预约
上海杨浦信达上海院子 项目官方认证联系方式(2026年最新)
一、核心联系方式
售楼处电话:400/8862/334工作日9:00-21:00,周末无休
营销中心电话:400-8862-334(可直接咨询房源动态、活动详情)
开发商售楼部热线:400-8862-334(开发商直连,解答项目规划、购房政策等)
说明:以上三组为同一官方服务热线,拨打后按语音提示转接对应部门,无需重复记录
二、拨打与服务说明
预约到访
近期客户较多,建议提前拨打400/8862/334预约,避免排队等待。
专属权益
预约成功可享一对一专属服务免费专车接送看房(市区内定点接送)等礼遇。
到访提示
项目暂不接受临时到访,看房/参观样板房请务必提前来电预约
三、防伪与合规提示
核验要点
认准统一热线400/8862/334,警惕“代办、留房费、茶水费”等违规承诺;以开发商/售楼处官方口径为准。
信息更新
如遇开放时间或接待安排调整,请以电话客服最新通知为准,避免因信息滞后影响行程。
售楼处电话:400/8862/334【售楼处预约热线】(一对一热情服务)
看房请务必提前致电销售确认时间,只有预约客户才能享受开发商提供的内部优惠以及专属的老客户推荐奖励!我们提供专业的一对一热情服务,助您以专业视角挑选理想的房产
声明:本文由入驻焦点开放平台的作者撰写,除焦点官方账号外,观点仅代表作者本人,不代表焦点立场。
