保利世博天悦(售楼处) 官方网站 -保利世博天悦销售中心 - 环境 - 户型 - 价格 - 地址 - 楼盘详情 - 配套 - 电话 - 交房时间 - 房天下
扫描到手机,新闻随时看
扫一扫,用手机看文章
更加方便分享给朋友
上海-保利世博天悦售楼处电话:400-8558-334
保利世博天悦官方售楼处——请拨打(官方400热线):400-8558-334
黄浦江核心段CAZ中央活动区
世博滨江江景豪宅
「保利世博天悦」建面约174~251㎡3-5房
&建面约500㎡环幕江景大宅
总价约2700-1.4亿
实景现房
目前“样板间”已开放

·建面约240㎡边套,采用L型转角落地窗,打造了270°环幕瞰江视野,无论身处客厅、餐厅,都能以不同角度眺望黄浦江的波光粼粼。
上海-保利世博天悦售楼处电话:400-8558-334
保利世博天悦官方售楼处——请拨打(官方400热线):400-8558-334
240m²边套样板房实拍
·建面约251㎡中间套,整体瞰江面高达约14米,独有双层挑高露台,未来业主可以将其打造成为私家空中花园,在繁华都市中独享静谧自然。
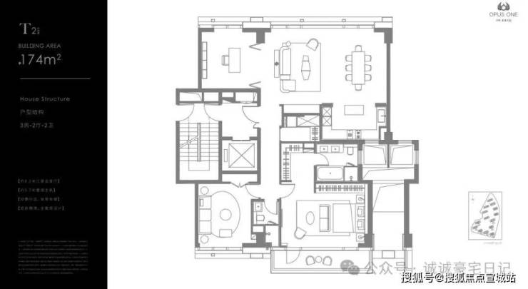
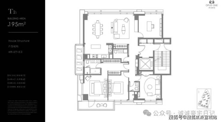
全户型图如下:



上海-保利世博天悦售楼处电话:400-8558-334
保利世博天悦官方售楼处——请拨打(官方400热线):400-8558-334

样板间实景图:
上海-保利世博天悦售楼处电话:400-8558-334
保利世博天悦官方售楼处——请拨打(官方400热线):400-8558-334
上海-保利世博天悦售楼处电话:400-8558-334
保利世博天悦官方售楼处——请拨打(官方400热线):400-8558-334
上海-保利世博天悦售楼处电话:400-8558-334
保利世博天悦官方售楼处——请拨打(官方400热线):400-8558-334
黄浦江约80米,塔尖级江景视野!
谈及江景,直线距离黄浦江约80米的保利世博天悦堪称“江景之王”!
从地图来看,项目与汤臣一品和中粮海景壹号等顶豪住区享有相同的视野与距离,同频一线黄浦江景。
无论是一线滨江的地段,还是现阶段的均价,相较于徐汇滨江地块20万/平的东安路地块的售价,保利世博天悦的质价比非常突出!
一线滨江实景豪宅,品质看得见!
全上海独一无二的“类幕墙设计”立面,搭配上海首例“开放式铝板设计”,打造黄浦江畔地标新名片!
凭借最近约80米的一线江景优势,将黄浦江天然水资源引入社区,打造约3000㎡水景,并规划约6万㎡社区景观,力求每一寸土地都能发挥出最大的生态效益和观赏价值!

高标准产品力,穿越周期的诚意!
从选材来看,各种奢侈品级石材随处可见,比如与北京钓鱼台国宾馆同款的意大利进口鱼肚白石材,造价高达约2万/㎡,被誉为“世界上最贵的石材之一”!
从配置来看,仅对业主开放的约2600㎡艺术会所,不仅涵盖恒温泳池、酒窖、会客厅、健身房及行政酒廊式高定私宴厅等功能,而且还可以提供提供高级定制服务,排场不输五星级酒店!
从设计来看,独创上海滨江首个空中泳池户型,利用中间套双层挑高空间,预留泳池条件,整体瞰江面高达约14米!
从装标来看,大金、霍尼韦尔、当代、嘉格纳、威乃达、唯宝等一系列国际顶豪品牌加持,莫说整个黄浦江畔,放眼全市都堪称没有对手!

上海-保利世博天悦售楼处电话:400-8558-334
保利世博天悦官方售楼处——请拨打(官方400热线):400-8558-334
声明:本文由入驻焦点开放平台的作者撰写,除焦点官方账号外,观点仅代表作者本人,不代表焦点立场。
