2025象屿天宸雅颂(售楼处)首页网站-2025象屿天宸雅颂营销中心(售楼处中心)小区欢迎您-周边环境-户型-价格-地址-楼盘详情-户型配套-售楼处电话-交房时间
扫描到手机,新闻随时看
扫一扫,用手机看文章
更加方便分享给朋友
小高层为89/102/107/128/139平(89-107为3房,128-139为4房);
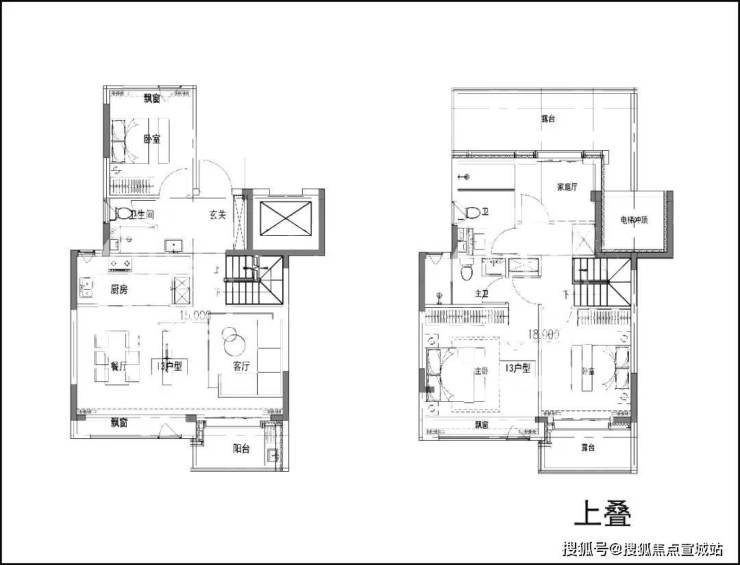
叠加预计145-156平,联排预计190-230平,
建面约89㎡ 3房2厅1卫▼
项目建面约139㎡4房则是集大成的终极改善户型。
该户型是独立电梯入户,保证了业主的私密性和尊崇感!
不止是四开间朝南,更是大宽厅设计,采光无敌。
飘窗数量来到了惊人的7个:4个房间、2个卫生间、还有厨房,仅飘窗带来的灵动空间就秒杀同面积段其他产品,要知道这个户型还配备了超大尺度的阳台!
项目高层户型硬核,装修更硬核!
据销售人员透露,大件方面,项目中央空调/地暖两联供、新风系统一应俱全。
厨房方面,除了灶具、吸油烟机等常规配置,还将加配蒸烤一体机、洗碗机、冰箱和厨房凉霸,全方位提升便捷性和品质感。
卫生间方面,项目洗脸盆、座便器、淋浴龙头或直接上豪宅专属唯宝品牌(或同等档次品牌)。
从选材、选牌到施工工艺,项目装修每个环节都非常考究,呈现的居住品质足以媲美其他市区千万级豪宅!
另外,项目使用了智能化系统,从社区到单元门和入户整体的无接触归家,单元门自动呼梯到户内装标配置的智能化系统,为业主带来全方位的科技便捷生活!

(过程稿仅供参考,最终以实际为准)
项目基本信息
项目产品信息
象屿天宸雅颂营销中心热线400-812-3224象屿天宸雅颂售楼处地址400-8123-224
产品力卷出天际,600万级预算越级享受千万级豪宅品质的机会!
项目实景呈现的硬核品质和超高颜值比起市区千万级的豪宅有过之而无不及!
项目恢弘大气的门头,项目设计师以浮岛为灵感,将几根立柱化作悬浮的雕塑,撑起一片轻盈的仪式感。
象屿天宸雅颂营销中心热线400-812-3224象屿天宸雅颂售楼处地址400-8123-224
门头顶部的500多片镂空透光铝板雕花花瓣,皆由项目LOGO精琢演化而来。当阳光倾泻,光与影在镂空间起舞,在地面织就一幅不断变幻的自然画作。这是3000万重金雕琢的细节,更是对品质的无声承诺。
它不仅是社区的入口,更是城市界面的艺术展馆 。当访客驻足,当业主归来,这道门,以当代美学重新定义归家即度假的奢适体验。
象屿天宸雅颂营销中心热线400-812-3224象屿天宸雅颂售楼处地址400-8123-224
进门之后,恍若走进一幅立体绽放的画卷。地面采用了石材拼花,纹理如行云流水般舒展,在光影交错间勾勒出 低调的奢华。
最令人屏息的设计,莫过于倒置的花园,与传统墙上挂画或桌上摆花不同,这种反重力美学让视线不由自主地上扬,创造出仰视仙境的震撼体验。
象屿天宸雅颂营销中心热线400-812-3224象屿天宸雅颂售楼处地址400-8123-224
穿过大堂可以走浪漫的旋转楼梯去到B1层的会所。从上往下看去,这个唯美的旋转楼梯像永生的花瓣,也像凝固的巴兰钦芭蕾。有一瞬间我仿佛感觉这不是楼梯,而是连接现实与诗意的时空隧道。
象屿天宸雅颂营销中心热线400-812-3224象屿天宸雅颂售楼处地址400-8123-224
虽然目前开放的公区只有这些,但项目展现的品质已足够惊艳,让客户对于象屿·天宸雅颂其他地方的兑现充满期待。
比如,项目打造的约2500㎡下沉式会所,预计包含等泳池、健身房、瑜伽室、水吧台、私宴厅等功能,满足业主全龄多元需求。

象屿天宸雅颂营销中心热线400-812-3224象屿天宸雅颂售楼处地址400-8123-224
另外,项目地上三分之二的楼栋有架空层,最高层高约4.5米,合计约3000㎡架空层作为泛会所,在室内外交叠过渡的空间中,以自然之景点缀,营造全龄共享的丰盛聚场。

象屿天宸雅颂营销中心热线400-812-3224象屿天宸雅颂售楼处地址400-8123-224
再比如项目的外立面。
当其他外环外新房还在纠结用涂料还是真石漆,象屿·天宸雅颂直接上了对标千万级豪宅的铝板。精致的铝板装饰+通透大窗的美学立面设计(局部涂料),打造弧面窄框艺术之镜,将来无疑又是一道靓丽的风景线!

象屿天宸雅颂营销中心热线400-812-3224象屿天宸雅颂售楼处地址400-8123-224
项目在园林景观方面结合郊野公园特色做的浮岛美学园林惊艳无比,层层递进的秩序之美,传递生活与归心的仪式感。让业主享受内外皆胜境的生态居住体验!
象屿天宸雅颂营销中心热线400-812-3224象屿天宸雅颂售楼处地址400-8123-224
而且项目3个地块全部都是人车分流设计,开车归家的业主在社区外就直接进入车库,保证地面行人安全以及安静绿色的居住体验。
象屿天宸雅颂营销中心热线400-812-3224象屿天宸雅颂售楼处地址400-8123-224
另外,项目用归家风雨连廊局部巧妙连接着高层核心景观节点和功能空间,让业主能重温“户外风雨连绵,廊下月华如水”的诗意瞬间。
全系神户型搭配魔鬼化细节装修!
象屿天宸雅颂营销中心热线400-812-3224象屿天宸雅颂售楼处地址400-8123-224
项目预计首开建面约89-139㎡3-4房,尤其值得一提的是,项目户型采用“一生之宅”的理念设计,高层户型均设置可拓展空间,保证不同年龄段都可以进行不同功能调整。
项目区位配套
象屿天宸雅颂营销中心热线400-812-3224象屿天宸雅颂售楼处地址400-8123-224
浦江恒流,上海恒新。上海迈向卓越全球城市的进程,始终沿着黄浦江展开。黄浦江作为上海重要功能轴,至2035年将黄浦江沿岸打造成为彰显上海城市核心竞争力的黄金水岸和具有国际影响力的世界级城市会客厅。
象屿天宸雅颂营销中心热线400-812-3224象屿天宸雅颂售楼处地址400-8123-224
作为上海中心城辐射区,闵行六大地区中心之一,前滩南门户,浦东四大城镇圈之一,浦江地区中心占据特有的平台区位优势。
新浦江中心沿袭闵东文创中心定位,以蓝绿环绕为基底,历史人文为内涵,产业更新为驱动,新浦江中心将衔接闵行与浦东新区,打造黄浦江沿岸崭新的生态交织、文化自信、产城融合能量聚集地。
新浦江新中心将围绕沈杜公路TOD打造创智总部湾、大型商业、艺术街区、文化展览、滨水码头、高端住宅等,以世界前沿Live-Work-PlayShop模式,为上海打造高度复合等职住平衡10分钟生活圈。
轨道交通方面:项目距离8号线沈杜公路站步行约350-600米左右,可快速直达前滩、陆家嘴等核心区域,也算是项目一大卖点;通过浦星公路可直接上南北高架,自驾出行也十分便捷!
商业配套方面:项目高层东侧规划约15万方的商业,该商业地块应于住宅一并打包出让,共同组成真正的TOD项目,但目前做了拆分!另外距离项目约3.3公里有浦江城市生活广场、绿地乐和城,约3.9公里有万达广场、4.4公里有浦江欢乐颂等商业!
教育资源方面:项目周边规划有一幅幼儿园用地,参考周边,未来项目对口浦江镇第二小学、第二中学的概率较大,教育资源一般;
另外在项目北侧规划有一所民办学校,该校舍建成后,将迁入上海市民办协和尚音学校(九年一贯制)、上海闵行协和海富幼儿园,由协和教育中心举办。
医疗资源方面:距离项目约4公里有仁济医院南院以及复旦大学附属眼耳鼻喉科医院。
生态资源方面:项目周边被浦江郊野公园环绕,低密宜居。
附:买房小攻略
1、没有完全封闭的阳台,在计算面积时只算一半,完全封闭的阳台算全部面积;另外,飘窗一般为赠送。
2、人防车位的产权归人防办,所以不要听信销售或者中介说车位产权归你。
3、签了购房合同以后,一定要尽快办理网签备案,这样能够好的避免开发商一房多卖的情况出现,避免自己被坑。
4、小区的绿化率并不单纯的指绿化面积,而是整个小区的绿地率,很多一楼房子的庭院其实也是在绿化率内的。
5、有些城市的商贷转公积金能省不少钱,所以如果后期换工作给交金的话可以转换一下房贷方式。
6、看房子不要只看小区的地理位置和房子大小,还要看房子的户型图、小区规划图、单元平面图。
7、如果买房预算有限,刚需买房的话,最好选89㎡的小三房;因为90平是契税的分界线,90平以下的首套房可以少交契税;另外89平的小三房刚好够一家三代人暂时过度居住的,以后想转手也很方便。
8、如果是想买改善型住房,最好是140㎡以上才行,这样住着才舒服,才能算是“改善”。
9、刚需买房不要等攒够很多钱,只要能凑够首付就可以买了。
10、买房要看性价比,不能只看价格。
11、买房就是买配套,有价值的配套是学区、商场、医院、地铁公交、行政服务中心,低价值的假配套不要考虑比如飞机场、高铁站、游乐园。
12、如果预算有限买不了靠市区的房子,最好优先选近郊新区的房子,而不是远郊新区的房子,哪怕远郊的房子更大也不建议。
13、买房前要先做购房资格审核、查一下自己的征信和流水,有些人冲动交了首付或者不可退的定金后发现自己没有买房资格,那就亏大了。
14、在售楼处买新房的话,一定要确认付款收款账号是否是监管账号,这样万一开发商有问题可以提前发现,预防自己踩雷。
15、银行贷款合同要自己看,尤其是调息,要看是次年生效还是次月生效;以及提前还款的期限、提前还款是否有违约金等。
16、买房子不管是自住还是投资,一定要考虑房子的“流通性”,老城区的低价格的房子最好不要碰,不好流通。
17、没有规划、没有政策的洼地及其附近的房子尽量别碰,洼地的发展很缓慢,甚至可能永远是洼地。
18、如果你长期是在一二线城市工作,就最好不要回到五六线甚至是十八线的小县城买房子,不管有多便宜都不要买,县城的房子流通性上会比较差,毕竟年轻人都是往外跑了,县城里的“接盘侠”少了,房子就没有价值了,想卖都卖不出去。
19、不要买小产权的房子比如公寓和商铺,以后不好转手,想卖掉换刚需的话很困难。
20、首套房买的时候不要把预算浪费在豪华装修上,最好连车位都不要买,把这些钱省下来买个更好的地段,将来不管是转手还是放着,都会更有价值。
象屿天宸雅颂
售楼处电话:4008123224【开发商售楼中心热线】象屿天宸雅颂营销中心热线400-812-3224象屿天宸雅颂售楼处地址400-8123-224,楼盘项目全面介绍,本电话为开发商提供线 上预约售楼电话,楼盘项目全面介绍(包含楼盘简介,均价,房价,现房,期房,别墅,叠墅,大平层,价格,楼盘地址,户型图,交通规划,备案价,备案名,项目配套,样板间,开盘时间,认筹时间,楼盘详情,售楼处电话,最新消息,最新详情,周边配套,一房一价,最新进展等详情咨询)楼盘详情丨价格丨更多优惠丨机不可失丨欢迎致电丨诚邀品鉴!售楼处位置丨特价房丨工抵房丨剩余房源丨户型图丨最新消息丨免责声明:将文章内容综合来源于网络、只作分享,版权归原作者所有!!如有侵权,请联系我们,我们第一时间处理如有问题欢迎来电咨询,专业一对一热情服务,让您用专业眼光去买房。如果您想了解更多楼盘详情,欢迎提前预约拨打象屿天宸雅颂售楼处电话☎400_812_3224✔✔✔
声明:本文由入驻焦点开放平台的作者撰写,除焦点官方账号外,观点仅代表作者本人,不代表焦点立场。
