中海姑苏第 (售楼处) 官方网站 - 中海姑苏第销售中心 - 环境 - 户型 - 价格 - 地址 - 楼盘详情 - 配套 - 电话 - 交房时间 - 配套 - 电话 - 交房时间
扫描到手机,新闻随时看
扫一扫,用手机看文章
更加方便分享给朋友
苏州-中海姑苏第售楼处电话☎:400-8558-334(预约热线)✔✔✔
如有问题欢迎来电咨询,专业一对一热情服务,让您用专业眼光去买房。
中海姑苏第售楼处电话☎:400-8558-334【售楼热线】✔✔✔中海姑苏第营销中心热线☎400-8558-334售楼处地址☎400-8558-334
基础信息:
开发商:苏州海嘉房地产有限公司(中海地产旗下),物业为中海物业(国家一级资质)
容积率:1.8,绿化率30%-33%,车位配比1:1.96
交付时间:预计2026年4月精装交付,装标≥3000元/㎡(含博世地暖、格力中央空调等)
户型与价格(2025年6月数据):
130㎡三居:总价550-635万元
155㎡四居:总价660-780万元
183㎡四居:总价860-975万元(部分房源赠送独立家政间)

苏州-中海姑苏第售楼处电话☎:400-8558-334(预约热线)✔✔✔
如有问题欢迎来电咨询,专业一对一热情服务,让您用专业眼光去买房。
核心亮点:
交通优势:
双地铁(2号线直达苏州站、山塘街;5号线连接金鸡湖、太湖风景区)
桐泾北延快速路直连西环/南环高架,2公里内接驳主干道
商业配套:
紧邻胥江龙湖天街(300+品牌),4-5公里可达石路、观前街商圈
生态与教育:
零距离劳动公园,步行至桐泾公园(20万㎡)
周边有胥江实验中学(施教区待定)
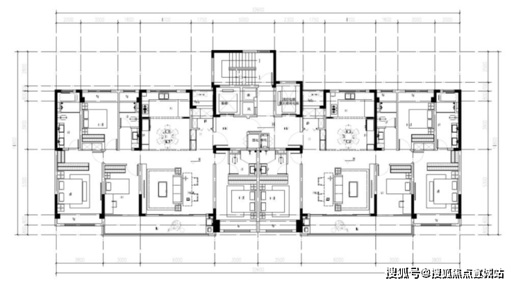
户型鉴赏:
155㎡户型标准层平面图
155户型也是2梯2户设计,做了4房2厅2卫.户型格局与183户型差别不大,相当于是缩小版.南向面宽14.9米,客厅开间5米,阳台宽8米.

苏州-中海姑苏第售楼处电话☎:400-8558-334(预约热线)✔✔✔
如有问题欢迎来电咨询,专业一对一热情服务,让您用专业眼光去买房。
183㎡户型标准层平面图
183户型为2梯2户设计,做了4房2厅3卫,含2个套房.户型方正,没有空间浪费;四开间朝南,南向面宽达16.3米,客厅开间6米,阳台宽9米;入户有玄关,预留了家政间空间;餐厨区南北向连,与客厅保持恰当的距离;主卧套房面积约32.6㎡,卫生间含双台盆、淋浴和浴缸;次卧套房面积也不小,但是为暗卫.

苏州-中海姑苏第售楼处电话☎:400-8558-334(预约热线)✔✔✔
如有问题欢迎来电咨询,专业一对一热情服务,让您用专业眼光去买房。
中海姑苏第售楼处电话☎:400-8558-334【售楼热线】✔✔✔中海姑苏第营销中心热线☎400-8558-334售楼处地址☎400-8558-334
声明:本文由入驻焦点开放平台的作者撰写,除焦点官方账号外,观点仅代表作者本人,不代表焦点立场。
