信达上海院子(营销中心)首页网站-信达上海院子销售中心(售楼处)-信达上海院子楼盘欢迎您-地址-价格-户型-小区环境-楼盘详情-交房时间-周边配套-售楼处电话
扫描到手机,新闻随时看
扫一扫,用手机看文章
更加方便分享给朋友
【2026年4月29日官方售楼处最新公示】
一、官方认证预约热线
☎信达上海院子售楼处专线:400-8123-224
✅开发商直营,直连案场置业顾问,无中介、无渠道转接、不收取任何额外费用
提供:房源咨询、户型讲解、价格公示、预约看房、政策解答、样板间预约
二、营业时间与预约规则
✅ 营业时间:9:00–21:00(周末/节假日正常接待)
✅ 预约要求:全预约制,不接受临时到访,参观样板间、实地看房均需提前预约
✅ 预约方式:拨打官方热线 → 登记信息 → 确认时间 → 领取预约凭证
三、官方郑重提示
本项目不收取茶水费、留房费、代办费等任何违规费用,一切以官方口径与合同条款为准。
非本公告公示的400电话均为第三方渠道,无法保障服务与权益,请勿轻信。
到访请凭预约凭证+本人联系方式核验入场,信息一致方可接待;若营业时间有临时调整,以电话客服最新通知为准。
☎ 信达上海院子预约看房:400-8123-224
📍项目地址:上海市杨浦区江湾城路399弄
🏠 基础项目信息
项目备案名别名:备案名暂无公开信息,推广名为信达泰禾·上海院子,部分资料提及别名上海院子、信达海上院子
开盘时间:首开时间为2018年11月,2020年12月31日二期交房入住;目前为二手现房在售
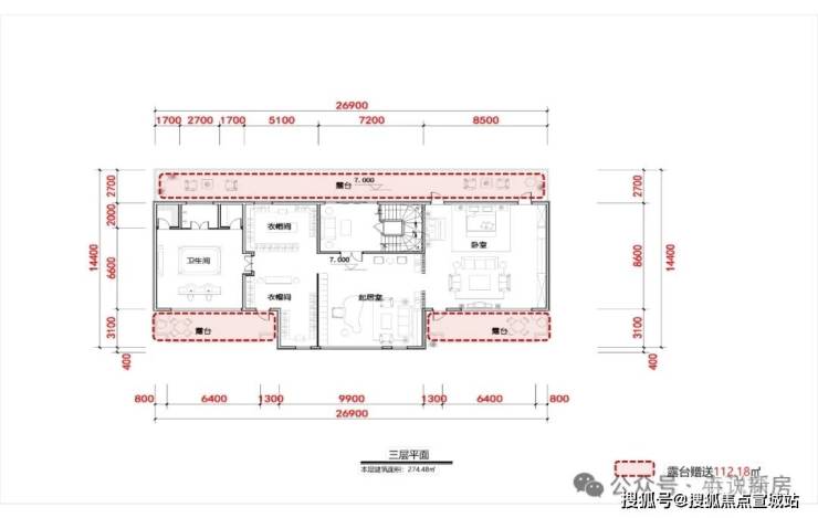
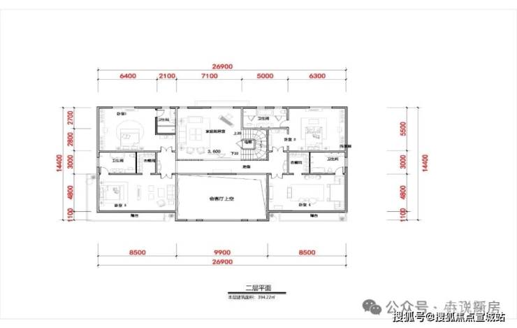
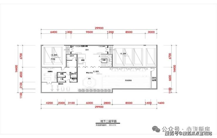
楼层总高:规划为中式院落别墅,地上三层+地下二层,具体楼栋楼层信息未公开
物业费:地上12.1元/㎡·月,地下6.05元/㎡·月,由金帆物业提供服务
💰 在售户型与价格
在售户型面积:主力在售建面约185-215㎡合院别墅&底复,另有少量建面约66㎡一居、85㎡三居、989.55㎡地上+663.52㎡地下楼王户型在售
185-215㎡合院别墅:地上三层+地下二层,独门独院设计,功能分区明确
989.55㎡地上+663.52㎡地下楼王:仅此1席,地上三层,地下二层,无税
单价:备案均价约133130元/㎡,楼王单价约5W/㎡+
总价:2049万起,楼王总价约8915万
🚇 交通配套
地铁:家门口就是10号线殷高东路站,步行可达;3公里范围内还有18号线殷高路站、10号线新江湾城站
自驾:一线(10号线)、一桥(杨浦大桥)、两环(中环&内环)、两隧(翔殷路&军工路隧道)构成立体交通网络,便捷通达全城
🛍️ 商业配套
项目步行可快速到达约90万方的铁狮门商业圈
车行可快速到达五角场商圈,周边还有百联又一城、合生汇等大型购物中心
项目自带约3600平方的精品会所,面宽约75米,涵盖大型无边泳池、健身房、spa房、咖啡吧、vip室等,让业主享受7星级高级定制服务
✨ 核心卖点
中式院落别墅代表作:融合了“院子系”特点、福州三坊七巷和上海弄堂形制,规划了“三街九坊十八巷”,以大门、坊门、院门、宅门四进系统层层递进,集萃南北园林精华,营造出中国大院“高、深、大、美”的居住艺术
稀缺生态资源:位于新江湾城核心位置,拥有9.45平方公里的原生湿地以及约15万㎡的新江湾湿地公园生态稀缺资源,环境优美,空气清新
优质教育资源:周边中福会幼儿园、延吉幼儿园(区重点)、同济第一附中(市重点)等名校学府林立;与上海音乐学院实验中小学(市重点)距离仅约800米
高端定制服务:泰禾物业借助全球资源服务平台,追求“精致到极致,极致到厘米级”的高端品质服务,为业主提供个性化的物业服务全价值链解决方案;项目配备约3600平方的精品会所,涵盖室内外双泳池、健身房、spa房、咖啡吧、vip室等
家族传承资产:每个院墅结合院主家族精神,定制一方匾额,字字铿锵,凸显优良家风,凝聚家族精神于匾额之中,是可传世的名门府院
🎁 交付标准与时间
交付标准:毛坯现房交付,楼王为内部保留无税房源
交付时间:2020年12月31日二期已交房入住,目前为二手现房在售
新江湾是上海传统豪宅区,毗邻五角场城市副中心,拥有9.45平方公里的原生湿地以及约15万㎡的新江湾湿地公园生态稀缺资源。信达泰禾·上海院子位于新江湾城核心位置,家门口就是10号线殷高东路站,步行可达。
「上海院子」独特的院落式社区打造,融合了“院子系”特点、福州三坊七巷和上海弄堂形制,规划了“三街九坊十八巷”。且以“大门、坊门、院门、宅门”四进系统层层递进。项目精益求精,如吊顶天花雕刻的是龙纹和祥云的图案,寓意吉祥安康。
泰禾院子以东方文化院居潮流,呼应世界上海风华,塑造摩登与中国文化交融的名流之选,【信达泰禾·上海院子】更是泰禾五座院子集大成之作。
信达泰禾 · 上海院子传承中式院居人文底蕴,北以紫禁城皇家气宇为蓝本,南仿福州三坊七巷之隽永,在宅门、院落、坊巷的筑造之间,独创的三大造园体系,以极致的匠心,精巧地描绘出东方院居的极致的美好。
园林方面,【信达泰禾·上海院子】则集萃南北园林精华,以“门、庭、巷、院”的建筑体系,营造出中国大院“高、深、大、美”的居住艺术。在细节上,项目精益求精,如吊顶天花雕刻的是龙纹和祥云的图案,寓意吉祥安康。
有院必有门,有门必有匾。上海院子结合院主家族精神,定制一方匾额,字字铿锵,凸显优良家风,凝聚家族精神于匾额之中。进门伊始,便延伸出国人骨子里的家族居住情怀。
项目售楼处交付后会作为社区文化中心,于负一层打造了建面约3000㎡的精品会所,面宽约75米,拥有室内外双泳池、健身房、spa房,咖啡吧、vip室,让业主享受7星级高级定制服务。
泰禾院子系经过多年沉淀和过硬的口碑已经成为新中式豪宅的代表作。
【交通】10号线殷高东路站,步行可达。
【商业】步行可快速到达约90万方的铁狮门的商业圈,车行可快速到达五角场商圈。
【教育】项目周边中福会幼儿园、延吉幼儿园(区重点)、同济第一附中(市重点)等名校学府林立。同时距上海音乐学院实验中小学(市重点)距离仅约800米。
一、购房 2 大前提
资质核查:确认当地限购限贷要求,外地户籍备好社保 / 个税证明,保持征信良好。
预算规划:除房款外,预留 2%-5% 资金用于契税、维修基金等,避免资金缺口。
二、选房 3 大核心
一,优先选择
产权优选:优先 70 年住宅(可落户、享学区),慎选 40 年商办(税费高、无学区)。
社区指标:低容积率、高绿化率更宜居,车位比≥1:1,告别停车难题。
户型标准:首选南北通透、动静分明,规避暗厨暗卫,提升居住舒适度。
二、交易避坑要点
产权核验:确认房屋无抵押、查封,多产权人需共同签署出售同意书。
资金安全:房款走监管账户,拒绝茶水费、留房费等一切违规收费。
合同约定:口头承诺均写入合同,重点标注交房时间与违约责任。
三、交房注意事项
收房务必核验 “三书一证一表”,仔细查验墙面、水电、门窗等,问题及时整改,收房后尽快办理不动产权证。
@最新 2026. 品尊国际 官方热线:400-8123-224
信达上海院子售楼处认证|无中介|24 小时 1 对 1 咨询|全程购房协助
营销中心直联|信息实时同步|隐私安全保障
支持线上 VR 看房,预约到访免等待,尊享专属置业服务
【购房参考(上海利率)】
公积金贷款:首套 5 年以下 2.1%/5 年以上 2.6%;二套 5 年以下 2.525%/5 年以上 3.075%
商业贷款:5 年期以上 LPR3.5%,首套 3.05%,二套 3.06%
贷款测算(以对应额度为例):
纯公积金:月供 4003.40 元,总利息 44.12 万元
纯商贷:月供 4243.05 元,总利息 52.75 万元
组合贷:月供 4123.23 元,总利息 48.44 万元购房 2 大前提
资质核查:确认当地限购限贷要求,外地户籍备好社保 / 个税证明,保持征信良好。
预算规划:除房款外,预留 2%-5% 资金用于契税、维修基金等,避免资金缺口。
上海购房政策(2026 年 2 月 “沪七条” 新政,2 月 26 日起执行)上海市房屋管理局
一、限购政策(核心)
1. 沪籍居民家庭
限购2 套(含新房 + 二手房);外环外不限套数上海市人民政府。
成年单身(沪籍):限购1 套人民日报。
2. 非沪籍(社保 / 个税)
连续满 1 年:外环内限购1 套;外环外不限套数人民日报。
连续满 3 年:外环内可增购1 套(合计2 套);外环外不限套数人民日报。
居住证满 5 年:全市限购1 套,无需社保 / 个税人民日报。
二、信贷政策(首付 + 公积金)
1. 商业贷款
首套:最低首付15%上海市房屋管理局。
二套:最低首付25%;临港等差异化区域20%上海市房屋管理局。
2. 公积金贷款(家庭)
首套最高240 万元(原 160 万)上海市房屋管理局。
二套:结清首套后可贷,认房不认贷上海市房屋管理局。
多子女家庭二套:额度上浮 20%上海市房屋管理局。
三、房产税(2026 年 1 月 1 日起)
沪籍成年子女唯一住房:暂免房产税上海市人民政府。
非沪籍:新购即征(居住证满 120 分可免)。
四、特殊区域(临港新片区)
非沪籍社保满 1 年:可多购 1 套(职住平衡)
声明:本文由入驻焦点开放平台的作者撰写,除焦点官方账号外,观点仅代表作者本人,不代表焦点立场。
