杭州德信御临云峰售楼处电话(德信御临云峰)官方网站-2026德信御临云峰最新房价/详情
扫描到手机,新闻随时看
扫一扫,用手机看文章
更加方便分享给朋友
杭州德信御临云峰
售楼处电话☎:400-8862-334【售楼处预约热线】(一对一热情服务)
楼盘项目全面介绍,本电话为开发商提供线上售楼电话400-8862-334,楼盘项目全面介绍(包含楼盘简介,房价,价格,楼盘地址,户型图,交通规划,备案价,项目配套,楼盘详情,售楼处电话,最新消息,最新详情,周边配套,最新进展等详情咨询)
看房请务必提前致电销售确认时间,只有预约客户才能享受开发商提供的内部优惠以及专属的老客户推荐奖励!
德信集团2022年时代创新标杆典范
绿建科技商业新品
距离杭州国际金融中心(杭州IFC)1.5km
【开发商】:德信集团
【拿地时间】:2021年年底
【交付时间】:24年年底
【区域板块】:钱江新城·江河汇核芯区
【物业】:德信物业
【物业费】:9.5块含能耗
【建筑面积】:约7.12万方
【绿地率】:25%
【容积率】:4.0
【户型面积】:
❶首开3号楼,东边套336㎡四房、西边套340㎡四房,顶楼430㎡,户户带12平阳台
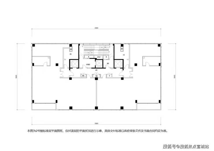
❷2号楼标准层全部为4房户型,面积336㎡,顶楼430㎡,户户带12平阳台
【总价】:1400-1600万
【层高】:3.8米
【总层高】:19楼
【梯户比】:3梯2户
【总户数】:66套
户型图
【项目区位】
钱江新城作为杭州最国际化的名片,板块内汇聚当前杭州顶级豪宅集群,板块二手房及新房均价已跃居7-14万,当之无愧的第一富人区。
德信江河汇项目傲居上城区钱江新城核芯板块—江河汇。得益于世界非遗京杭大运河、举世闻名的钱塘江奔腾在此双流齐汇,超85万方江河汇城市封面,将作为钱江新城延伸区的重要组成部分,打造世界未来滨水活力区,共铸杭州下一个十年黄金焦点。
【项目地段】
本项目距离钱江新城CBD核心区约3km
超85万方新鸿基江河汇综合体(在建)约1.5km
江河汇流区作为连接钱江新城核心区和钱江新城二期的重要纽带。板块内规划有80万方的钱江金融城以及15万方的渔人码头、12万方的城市公园,以及万众瞩目的杭州首个地标摩天轮“杭州眼”。整个项目涵盖IFC高奢购物街区、滨水休闲区、运河景观桥、5A甲级商务区、五星级酒店等,是多功能为一体的城市封面综合体,未来将成为杭州城市国际化标杆。杭州眼和日月同辉、大小莲花碗也将代表杭州形成三大闪耀地标。
杭州国际金融中心(IFC)效果图
【项目配套】
项目周边黄金3km范围内,汇集【4个4】全顶级配套,坐享钱江新城1.0发展20年积淀成果。
4大城市地标:国际会议中心|大剧院|市民中心|城市阳台;
4大商业巨无霸:万象城|来福士|庆春商圈|火车东站商圈;
4大超五星酒店:柏悦酒店|康莱德酒店|钓鱼台|卓美亚酒店;
4大5A甲级写字楼:华润大厦|平安金融中心|来福士|德信中心。
【3+3医疗及教育资源】:
3大顶级医院:邵逸夫医院|浙一医院|浙二医院,全三甲阵容;
3大教育资源:采荷一二小学校|钱江外国语实验学校|钱江贝赛斯国际学校
【项目交通】
---地铁环绕:6号线昙花庵路站(<10m),与地铁1、4、5等多条线路以及杭富线实现换乘,堪称“换乘之王”,畅达全城及萧山机场;
---高铁出行:3公里直达杭州东站(亚洲最大的交通枢纽),1小时直达长三角;
---自驾出行:近项目2公里接轨杭甬高速,自驾可便捷抵达上海、宁波等地;
---飞机出行:当前可通过庆春路隧道、博奥隧道转机场高速,25分钟直达机场。
【项目规划】
钱塘江与运河交汇所在是杭州当前打造高端豪宅必争之地,德信将巅峰的产品力带到了这一豪宅分布带,打造300㎡起步商业新品。采用绿色建筑的营造模式,运用大量高科技系统,进一步提升产品舒适度。例如外遮阳幕帘的设计,是高科技对光影的掌控,无论节能减排还是光影线条,创造绝佳的产品体验。除科技的运用外,项目更是在建筑“碳中和”的领域向前迈进,所选用的空气源热泵系统、毛细科技系统以及更大的玻璃分隔面等,都代表了德信在用更大的成本投入构建更高的市场标准体系。
杭州德信御临云峰
售楼处电话☎:400-8862-334【售楼处预约热线】(一对一热情服务)
楼盘项目全面介绍,本电话为开发商提供线上售楼电话400-8862-334,楼盘项目全面介绍(包含楼盘简介,房价,价格,楼盘地址,户型图,交通规划,备案价,项目配套,楼盘详情,售楼处电话,最新消息,最新详情,周边配套,最新进展等详情咨询)
看房请务必提前致电销售确认时间,只有预约客户才能享受开发商提供的内部优惠以及专属的老客户推荐奖励!
声明:本文由入驻焦点开放平台的作者撰写,除焦点官方账号外,观点仅代表作者本人,不代表焦点立场。
