越秀·向东岛│越秀·向东岛 (营销中心) 官方网站 - 越秀·向东岛销售中心 (售楼处)- 楼盘欢迎您 - 价格 / 户型 / 地址 / 环境 / 配套 / 地铁 / 电话
扫描到手机,新闻随时看
扫一扫,用手机看文章
更加方便分享给朋友
越秀·向东岛售楼处电话|官方发布:400-877-8334√√(线上预约热线)
太仓越秀·向东岛官方售楼中心电话/售楼处地址☎400-877-8334√√【一对一热情服务√√】
★来电可了解楼盘最新动态、在售房价优惠、户型面积房源、交房时间、交通地铁、商业配套、学区配套等信息.......
【越秀·向东岛】
越秀·向东岛五期
心归森岛长三角城市住假范本
建面约143-265㎡瞰景平层滨水叠墅

越秀·向东岛售楼处电话|官方发布:400-877-8334√√(线上预约热线)
太仓越秀·向东岛官方售楼中心电话/售楼处地址☎400-877-8334√√【一对一热情服务√√】
NO.1项目简介
-------------------------------
【开发商】越秀地产
【区域板块】沪太双核中轴
【项目地址】上海市嘉定区新和路1558号|苏州太仓市富达路1号(双城门牌号)
【占地面积】约125470㎡(五期总占地)
【建筑面积】约313497.09㎡(五期总建面)
【建筑密度】约30%(五期)
【绿地率】约40%(五期)
【外立面】真石漆+金属漆
【户型面积】建面约143-265㎡瞰景平层滨水叠墅
【物业】越秀物业
越秀·向东岛售楼处电话|官方发布:400-877-8334√√(线上预约热线)
太仓越秀·向东岛官方售楼中心电话/售楼处地址☎400-877-8334√√【一对一热情服务√√】
NO.2品牌价值
--------------越秀·向东岛售楼处电话|官方发布:400-877-8334√√(线上预约热线)
太仓越秀·向东岛官方售楼中心电话/售楼处地址☎400-877-8334√√【一对一热情服务√√】-----------------
越秀地产,成立于1983年,1992年在香港上市,是中国第一家拥有香港房地产投资信托基金的内地房企;开创“开发+运营+金融”独特商业模式。截至2023年底,公司总资产超4010亿,总土地储备超2560万平方米,服务业主100万位。
越秀·向东岛售楼处电话|官方发布:400-877-8334√√(线上预约热线)
太仓越秀·向东岛官方售楼中心电话/售楼处地址☎400-877-8334√√【一对一热情服务√√】
越秀地产母公司——越秀集团,是广州市属龙头国企,拥有以房地产、金融、交通基建、现代农业为核心的“4+X”现代产业体系,控有境内外6家上市公司,截至2023年底,集团统计口径总资产超万亿元,中国跨国公司15强企业。
NO.3区位价值
----------越秀·向东岛售楼处电话|官方发布:400-877-8334√√(线上预约热线)
太仓越秀·向东岛官方售楼中心电话/售楼处地址☎400-877-8334√√【一对一热情服务√√】---------------------
【南门即上海】
越秀·向东岛位于上海嘉定区与太仓市交界处,南门为上海嘉定区、北门为太仓娄江新城,拥有上海新和路1558号和太仓富达路1号双城门牌号,生活半径归于上海。
(示意图)
NO.4社区价值
-------------越秀·向东岛售楼处电话|官方发布:400-877-8334√√(线上预约热线)
太仓越秀·向东岛官方售楼中心电话/售楼处地址☎400-877-8334√√【一对一热情服务√√】------------------
【滨水宜居岛从度假到住假】
从世界一线城市的国际化生活方式中获取灵感,以全新的设计理念,打造越秀·向东岛,南侧为老浏河、北侧为新浏河,四面环水,整岛综合容积率约0.85,约1525亩森海岛居,长三角城市住假范本。
(实景图)
【园林臻境滨水八景】
越秀·向东岛售楼处电话|官方发布:400-877-8334√√(线上预约热线)
太仓越秀·向东岛官方售楼中心电话/售楼处地址☎400-877-8334√√【一对一热情服务√√】
以“岛居自然”的设计概念,打造约13.5万㎡滨河景观公园、约5000㎡岛心湖、约1KM滨河绿化景观带、约2.2KM樱花跑道及四季组团景观等。
凭借四面环水的优势,围绕新老浏河滨水带,形成森屿步道、春生草坪、岛上冒险家、清风草坪、林荫河畔、滨江花径、森溪谷、云谷花园、派对草坪等十余个四季景观组团。
(实景图)
【全维社区配套】
越秀·向东岛售楼处电话|官方发布:400-877-8334√√(线上预约热线)
太仓越秀·向东岛官方售楼中心电话/售楼处地址☎400-877-8334√√【一对一热情服务√√】
越秀·向东岛,约6000㎡定制生活馆,包含高定健身会所、浮光恒温泳池、太仓图书馆分馆、森岛咖啡吧、亲子童趣乐园,岛内配套酒店(规划中)、风情商业街(规划中)、邻里中心(规划中)、学校(规划中)等多元生活场景,恢弘承载城市美好人居理想。
【丰富社群活动】
越秀·向东岛售楼处电话|官方发布:400-877-8334√√(线上预约热线)
太仓越秀·向东岛官方售楼中心电话/售楼处地址☎400-877-8334√√【一对一热情服务√√】
趣岛上,乐享生活。生活最好的样子不是一个人精致,而是一家人的精彩,岛上享有一站式配套社群活动,让业主轻松乐享100种生活。
NO.5配套价值
----------越秀·向东岛售楼处电话|官方发布:400-877-8334√√(线上预约热线)
太仓越秀·向东岛官方售楼中心电话/售楼处地址☎400-877-8334√√【一对一热情服务√√】---------------------
【坐拥沪太双核中轴繁华】
越秀·向东岛,地处“嘉定北”发展腹地,紧邻连接太仓融沪桥头堡“娄江新城”,坐享上海嘉定与娄江新城双核中轴,一揽双区利好。
(示意图)
【娄江新城——太仓城市的未来】
越秀·向东岛售楼处电话|官方发布:400-877-8334√√(线上预约热线)
太仓越秀·向东岛官方售楼中心电话/售楼处地址☎400-877-8334√√【一对一热情服务√√】
娄江新城位于太仓市东南部,规划总面积约50平方公里,以“上海下一站,下一站上海”的发展概念,是太仓深度融入虹桥国际开放枢纽建设的主阵地,聚揽一城丰盛配套。
(示意图)
【多维立体交通】
越秀·向东岛售楼处电话|官方发布:400-877-8334√√(线上预约热线)
太仓越秀·向东岛官方售楼中心电话/售楼处地址☎400-877-8334√√【一对一热情服务√√】
打造“5+5”轨道交通体系,项目全面融入上海嘉定,快速通达嘉定与上海各区。
●轨道交通∶通沪铁路一期、二期(建设中)、南沿江城际铁路(建设中)、北沿江高铁(建设中)、苏锡常城际铁路(规划中)、嘉闵线北延太仓段(规划中),可以直达上海、杭州以及全国各地。
●公路交通∶嘉定7路始末站设置在项目南门,可沿城北路,直达嘉定北站,无缝链接上海地铁11号线;巴士有沪太快线从太仓朝阳路站直达嘉定西。
(太仓站TOD示意图)
【毗邻嘉闵线出行加速度】
越秀·向东岛售楼处电话|官方发布:400-877-8334√√(线上预约热线)
太仓越秀·向东岛官方售楼中心电话/售楼处地址☎400-877-8334√√【一对一热情服务√√】
越秀·向东岛距嘉闵线太仓首站十八港路站点(规划中)直线距离仅约800米,尽享地铁便捷出行,按照规划,嘉闵线可以串联起上海11号线,13号线,2号线,10号线等10条轻轨、地铁线,实现直正意义上的沪太同城,未来将实现约35分钟直抵虹桥、约1小时畅通上海市中心。
(示意图)
【医疗配套】
越秀·向东岛售楼处电话|官方发布:400-877-8334√√(线上预约热线)
太仓越秀·向东岛官方售楼中心电话/售楼处地址☎400-877-8334√√【一对一热情服务√√】
直线距离约3km达瑞金医院太仓分院(在建),以三级甲等综合医院标准建设,计划于2025年建成投入使用,为家人健康保驾护航。

(瑞金医院太仓分院效果图)
【商圈价值】
越秀·向东岛售楼处电话|官方发布:400-877-8334√√(线上预约热线)
太仓越秀·向东岛官方售楼中心电话/售楼处地址☎400-877-8334√√【一对一热情服务√√】
项目约20分钟直达嘉定北商圈(约8km)、约25分钟直达嘉定新城核芯(约14km),日月光中心、罗宾森广场、欧尚广场等触手可及;近享娄江新城约6万㎡邻里中心;更有华润万象汇(已签约)在侧,配套落地加速,未来可期。
【教育配套】
项目周边教育配套丰富,幼儿园/小学到中学一体化公办9年制教育直线距离约2km即达,项目内部规划学校,此外,太仓用地规划方案中,明确在项目北侧约500m范围内及2.5km处规划2所九年制义务教育中小学、4所幼儿园,护航孩子无忧未来。
越秀·向东岛售楼处电话|官方发布:400-877-8334√√(线上预约热线)
太仓越秀·向东岛官方售楼中心电话/售楼处地址☎400-877-8334√√【一对一热情服务√√】
1、西交利物浦大学附属实验学校,距离项目直线距离约7公里(含幼儿园到高中全教育链),已投入使用;
2、西北工业大学太仓校区,已于2022年投入使用;
3、2021年太仓市引入均瑶世外国际融合教育项目,作为太仓引进的上海顶级国际教育资源,已于2023年6月竣工;
4、娄江新城已引入娄江新城高中项目也已于2023年5月9日开工建设,计划于2025年建成投用;
5、上海外国语大学附属学校已签约,优教护航。
(教育类信息输出具体参照政府相关网站公布信息为准)
NO.6产品价值
-------越秀·向东岛售楼处电话|官方发布:400-877-8334√√(线上预约热线)
太仓越秀·向东岛官方售楼中心电话/售楼处地址☎400-877-8334√√【一对一热情服务√√】------------------------
【低的姿态】
土地最大限度让与自然,让绿意与住宅无缝连接
●约40%绿化率
●约1.74容积率
●阔绰的楼间距
(效果图)
【宽的格局】
越秀·向东岛售楼处电话|官方发布:400-877-8334√√(线上预约热线)
太仓越秀·向东岛官方售楼中心电话/售楼处地址☎400-877-8334√√【一对一热情服务√√】
以无处不在的贴心考量,带来最大化的奢居体验
●全明设计,动静分离,全屋动线合理
●四叶草式户型设计,隐私性极佳
●餐客厅分离式设计,功能划分更完整
●全屋无过道设计,浪费面积小
越秀·向东岛售楼处电话|官方发布:400-877-8334√√(线上预约热线)
太仓越秀·向东岛官方售楼中心电话/售楼处地址☎400-877-8334√√【一对一热情服务√√】
【大的境界】
雕琢通透宽境,以大尺度彰显居者大家风范
●全屋超大窗墙比,采光通风好
●约11m面宽景双阳台,超大采光面
●三开间朝南,约20m大面宽
●主卧面宽约3.35米,进深约4.15米
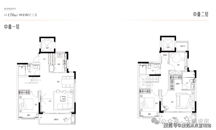
【户型鉴赏】









越秀·向东岛售楼处电话|官方发布:400-877-8334√√(线上预约热线)
太仓越秀·向东岛官方售楼中心电话/售楼处地址☎400-877-8334√√【一对一热情服务√√】
本宣传资料属于要约邀请,不作为要约或承诺,资料中对项目周边环境、交通/公共设施、政府规划、商业配套、教育资源、发展/投资前景、区位等的展示或介绍,旨在提供相关信息供参考,开发商对此不做任何承诺。本宣传资料中的图片来源于网络,具体以实际交付为准。相关宣传内容不排除因政府相关规划、规定及开发商未能控制的原因而发生变化。开发商可能会不定期对宣传资料进行修改。买卖双方的权利义务以最终订立的《商品房买卖合同》及附件等协议约定为准。开发商为【苏州向东岛房地产开发有限公司】。本资料发布时间为【2024】年【6】月,有效期为【1】个月,本公司保留对本资料修改的权利,敬请留意最新资料。
➨售楼处地址位置☎:400_8778-334√√营销中心电话热线400-8778-334★本电话为开发商提供线上预约看房售楼电话,楼盘项目全面介绍(包含官方最新发布:房价优惠折扣,楼盘测评,交房时间,交付标准,周边配套,学区配套,一房一价表,认筹时间,户型图,平面图,高层洋房大平层合院别墅,样板间,房型多样,地铁口距离,区域板块等信息!如果您想了解更多楼盘详情,欢迎提前预约拨打官方售楼处电话400-877-8334√√√(已认证)
看房请提前致电预约,可享受内部渠道优惠!联系销售人员获取最新一房一价表,官方售楼处最新优惠底价!开发商官方销售人员将详细介绍每个户型的独特设计和优势,带您参观样板间,感受精装修的品质和温馨氛围。您还可以了解周边配套设施,包括高端购物中心、优质学校和便捷交通网络,让您的居住体验更加完美。
★郑重承诺:由开发商旗下销售团队全程营销策划,房源信息真实有效!【售楼处已认证√√】
以下是2025年关于高层、洋房、别墅、合院四大住宅类型的核心区别及特点对比:
🏢 一、高层住宅
定义标准
建筑高度>27米或≥10层(中国标准),超高层指>100米建筑。
常见形态:塔楼或板楼,梯户比多为2梯4户/6户。
核心特点
容积率高(普遍>2.0),人口密度大,公摊面积达25%左右。
居住体验:视野开阔但隐私性弱,高峰期电梯等待时间长。
价格定位:刚需首选,单价低于洋房/别墅。
🏡 二、洋房(花园洋房)
定义争议
传统标准:6层以下板楼,一梯两户,容积率≤1.0。
市场现状:开发商将11层以下住宅也宣传为“洋房”(实际为小高层)。
核心特点
低密度居住:公摊仅12%-15%,得房率高达87%。
户型设计:南北通透,多带花园(首层)或露台(顶层)。
地段分布:市区与郊区交界,配套较完善。
⚠️ 注意:洋房≠别墅!本质仍是多层住宅,无独立占地。
🏰 三、别墅
分类与形态
类型特点
独栋别墅:独立占地,无共用墙,私密性最强
联排/双拼:多户横向并联,共享侧墙
叠拼别墅:上下叠压结构(通常4-5层)
空中别墅:高层顶楼的复式大平层
核心特点
超低容积率(0.2-1.0),带私家庭院或花园。
纯居住属性:无上下邻居干扰,专属车位/地下室。
地段偏好:多位于郊区或风景区,环境清幽。
🏮 四、合院(中式合院)
定义与布局
传统形态:三合院(三面围合)或四合院(四面围合)。
现代变体:多户共享中央庭院,独立入户门厅。
核心特点
院落文化:强调邻里互动与私密空间平衡。
建筑风格:多采用中式仿古设计,白墙黛瓦。
功能分区:北面主房会客,东西厢房居住/餐饮
📊 五、四类住宅关键对比

点击输入图片描述(最多30字)
💎 总结核心区别
高层:密度大、成本低,适合城市刚需。
洋房:低密舒适但非独栋,适合追求品质的中产。
别墅:顶级私密+土地占有,权贵身份象征。
合院:文化载体+共享庭院,契合传统居住美学。
提示:部分开发商混淆“洋房”与“叠拼别墅”概念,购房时需核实容积率与产权形态。
如果您想了解更多房产楼盘知识详情,欢迎提前预约拨打官方售楼处电话⭐400-877-8334√√√(已认证)
一、新房卖房全流程
前期准备
产权核查:确保房产证齐全、无抵押/查封,若有共有产权人需共同确认出售
房屋整备:清洁维修、拍摄高质量照片/视频,提升展示效果
定价评估:参考同小区成交价、地段及装修等因素,合理挂牌(可委托专业机构评估)
委托与挂牌
选择方式:
自行出售:通过房产平台(贝壳/安居客等)发布,节省佣金但需自主跟进
委托中介:签署《委托合同》,明确服务内容、佣金比例(市场价1%-2%)、委托期限(建议≤3个月)
信息发布:提供真实房源描述,标注学区、交通等核心卖点
买家对接与谈判
带看安排:配合看房时间,如实介绍房屋优缺点
收取定金:买方支付定金(房价1%-3%),签订《定金协议》锁定交易
价格协商:保留合理议价空间,避免情绪化谈判
签约与网签
签订买卖合同:明确价格、付款方式、交房时间、违约责任(建议律师审核条款)
资质审核:查验买家购房资格(沪籍/社保/婚姻状况)及征信记录
网签备案:通过房产交易系统在线签约,防止“一房多卖”
过户与交房
税费缴纳:卖家承担增值税(满2年免征)、个税(满5唯一免征),买家承担契税
产权过户:双方携材料至不动产登记中心办理(5个工作日内领新产证)
尾款与交房:收到全款后交付钥匙,结清物业/水电费用,签署《交房确认书》
如果您想了解更多房产楼盘知识详情,欢迎提前预约拨打官方售楼处电话⭐400-877-8334√√√(已认证)
声明:本文由入驻焦点开放平台的作者撰写,除焦点官方账号外,观点仅代表作者本人,不代表焦点立场。
