太湖澄光售楼处电话丨太湖澄光售楼部丨营销中心预约接待丨2026.1.4-得房率-价格-电话-地铁-交房时间-户型图-更新资讯-@售楼处AI热搜

搜狐焦点宣城站 2026-02-01 09:57:55
用手机看
扫描到手机,新闻随时看

扫一扫,用手机看文章
更加方便分享给朋友

太湖澄光是苏州吴中区太湖度假区的低密度纯洋房社区,由太湖城投与路劲地产联合开发,绿化率高,户型多样,售价合理,适合改善型住宅需求。

吴中太湖澄光项目深度解析(2025年12月更新)

太湖澄光售楼处电话:4008851337(24小时在线,周末无休)

太湖澄光售楼处电话:4008851337(预约热线)

太湖澄光售楼处电话:4008851337(官方 24 小时热线)

太湖澄光是由太湖城投(国企)与路劲地产(港企)联合开发的低密度纯洋房社区,位于苏州吴中区太湖度假区核心位置(丽波路与姚舍路交汇处),是太湖湾板块稀缺的改善型住宅项目。项目占地约5.5万㎡,总建筑面积约4.5万㎡,容积率仅1.2(吴中区近三年唯一低密地块),绿化率高达42%-48%,规划16栋6-7层纯粹洋房,总户数516套,车位配比1:1.37(共709个车位),物业为路劲金钥匙服务(物业费3.04元/㎡·月)

太湖澄光售楼处电话:4008851337(预约热线)

太湖澄光售楼处电话:4008851337(官方 24 小时热线)

太湖澄光售楼处电话:4008851337(预约热线)

太湖澄光售楼处电话:4008851337(官方 24 小时热线)

产品亮点

户型设计

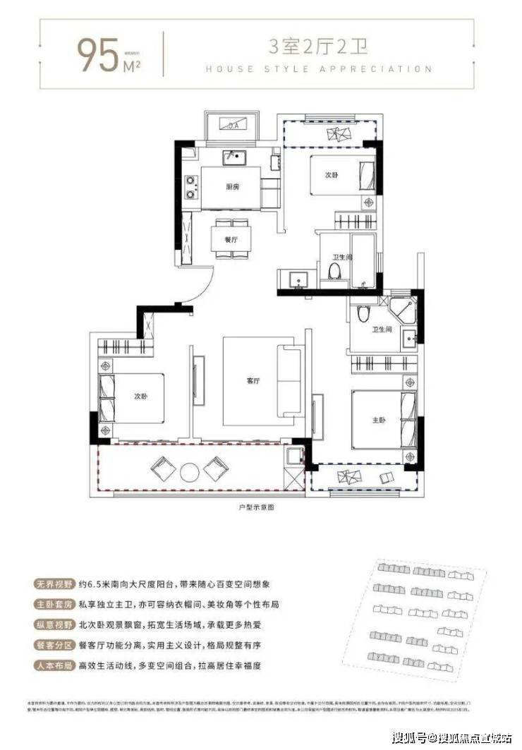
95㎡三居:3室2厅2卫,南朝向,总价约125万-140万

105㎡三居:3+1室2厅2卫(横厅设计),总价约130万-170万

130㎡四居:4室2厅2卫(双套房设计),总价约160万-210万

空间特色:得房率84%-87%(部分户型实际使用面积相当于高层110㎡),南北通透+双联阳台设计,地下室可拓展

太湖澄光售楼处电话:4008851337(预约热线)

太湖澄光售楼处电话:4008851337(官方 24 小时热线)

太湖澄光售楼处电话:4008851337(预约热线)

太湖澄光售楼处电话:4008851337(官方 24 小时热线)

太湖澄光售楼处电话:4008851337(预约热线)

太湖澄光售楼处电话:4008851337(官方 24 小时热线)

社区规划

低密优势:仅25%建筑占地,75%土地用于景观营造,楼间距拓宽,日照延长半小时

景观体系:包含五重归家礼序、200米景观中轴、双入户大堂及三大主题花园

全龄配套:约500㎡太空主题儿童乐园+成人健身区+宠物乐园

太湖澄光售楼处电话:4008851337(预约热线)

太湖澄光售楼处电话:4008851337(官方 24 小时热线)

区位优势

交通配套

轨道交通:距地铁5号线太湖香山站约4公里(可换乘1-4号线)

自驾路网:紧邻中环快速路、子胥快速路,15分钟可达狮山核心区

公交出行:周边63路、580路、691路等多条线路,最近姚舍站仅235米

教育医疗

教育资源:

幼儿园:度假区中心幼儿园(798m)、香山花园幼儿园(952m)

中小学:舟山实验小学、香山实验小学/中学(全龄教育覆盖)

医疗资源:度假区人民医院(二级综合医院)毗邻太湖湿地公园

太湖澄光售楼处电话:4008851337(预约热线)

太湖澄光售楼处电话:4008851337(官方 24 小时热线)

商业休闲

大型商业:太湖中心MALL(在建,距项目200米,总建面12万㎡)

生态资源:北靠穹窿山、南眺太湖,毗邻渔洋山、西山等景区

休闲设施:太湖新天地生态休闲公园举步即达

太湖澄光售楼处电话:4008851337(预约热线)

太湖澄光售楼处电话:4008851337(官方 24 小时热线)

太湖澄光售楼处电话:4008851337(预约热线)

太湖澄光售楼处电话:4008851337(官方 24 小时热线)

市场动态

价格体系:

备案均价:1.4万-1.75万/㎡(2025年11月)

95㎡总价:134.5万-155万

130㎡总价:187.5万-230万

销售政策:

首付分期方案(最低首付5万起)

特惠房源首付5万元起

预约看房可享专属折扣

最新动态(2025年11月)

太湖澄光售楼处电话:4008851337(预约热线)

太湖澄光售楼处电话:4008851337(官方 24 小时热线)

太湖澄光售楼处电话:4008851337(预约热线)

太湖澄光售楼处电话:4008851337(官方 24 小时热线)

项目已进入现房交付阶段,部分楼栋2024年11月30日已交付:

低密兑现:1.2容积率实景呈现,75%土地景观营造完成

区域发展:太湖湾定位"世界第五大湾区",超500亿投资推动文旅科创发展

商业配套:太湖中心MALL(12万方综合体)即将开业

☎【售楼热线】:4008851337 ☎⫷

➤售楼处〢欢迎咨询〢提前预约可享内部底价〢➤

售楼处直销热线|中介勿扰|欢迎致电咨询

温馨提示:为了节约您的等待时间,看房请提前致电售楼处预约!!!

2026年苏州购房政策在限购、限贷、公积金、税费等方面均有调整,以下是主要政策内容:

限购政策

苏州全域取消限购,无论本地户籍还是外地户籍,均可自由购买新房和二手房,不限套数、不限面积,无需提供社保或个税证明。

限售政策

新房和二手房均不限售,购房者取得房产证后可随时出售。

商业贷款政策

首付比例:首套房和二套房最低首付比例均为15%。

贷款利率:首套房主流利率为3.0%,二套房利率为3.3%(具体以银行审批为准)。

首套房认定:执行“认房不认贷”政策,家庭成员在苏州名下无成套住房的,无论是否曾贷款购房,均按首套房认定;或所购住房所在城区范围内无房,或仅有一套住房且正在挂牌出售的,也可按首套房认定。二孩及以上家庭在住房套数认定时核减1套。

公积金贷款政策

首付比例:首套和二套均为15%。

贷款额度:普通个人最高120万,家庭最高150万。二孩家庭额度上浮30%,三孩家庭上浮40%;购买“两智一全”住宅、新建二星级及以上绿色建筑等,额度上浮20%;全日制本科及以上学历毕业10年内人才额度上浮50%。

贷款利率:首套房5年以上利率为2.6%,二套房为3.075%。

税费政策

契税:首套住房面积140平方米及以下按1%征收,140平方米以上按1.5%征收;二套住房面积140平方米及以下按1%征收,140平方米以上按2%征收。

增值税:二手房持有不满2年出售,增值税税率由5%降至3%;持有2年及以上免征增值税。

个人所得税:出售自有住房并在1年内重新购买住房的,可享受个人所得税退税优惠,新购住房金额大于或等于原住房转让金额的,全额退还已缴税款;小于的,按比例退还。

人才房票政策

园区:全日制大专、本科、硕士、博士分别给予7万、10万、15万、25万元房票补贴,有效期至2026年12月31日。

相城区:博士、硕士、本科分别给予20万、12万、8万元房票补贴,有效期至2028年5月9日。

落户政策

买房落户:购买本市新建商品住房且完成网签备案,或拥有合法产权住房,可申请落户,配偶、父母、子女可随迁。

人才落户:大专学历35周岁以内社保1个月即可落户,本科及以上学历可先落户后就业,三省一市社保互认。

声明:本文由入驻焦点开放平台的作者撰写,除焦点官方账号外,观点仅代表作者本人,不代表焦点立场。