上海壹号院(2025上海壹号院首页网站)上海壹号院售楼处电话→楼盘百科→上海壹号院楼盘测评→首页网站→24小时热线电话

搜狐焦点宣城站 2025-10-05 11:30:00
用手机看
扫描到手机,新闻随时看

扫一扫,用手机看文章
更加方便分享给朋友

上海-上海壹号院售楼处电话☎:400-8558-334(预约热线)✔✔✔上海壹号院售楼处电话400-8558-334,项目位于黄浦区,由中信、新湖、融创联合打造,主打大平层,价格18.5万-19.8万/㎡,周边配套完善。

上海-上海壹号院售楼处电话☎:400-8558-334(预约热线)✔✔✔

如有问题欢迎来电咨询,专业一对一热情服务,让您用专业眼光去买房。

上海壹号院售楼处电话☎:400-8558-334【售楼热线】✔✔✔上海壹号院营销中心热线☎400-8558-334售楼处地址☎400-8558-334

基本信息:项目位于上海市黄浦区复兴东路 1055 弄,总建筑面积约 43 万平方米,其中风貌建筑体量超 7 万平方米。项目由中信、新湖、融创三大巨擘联合打造,总户数 684 户,产权年限 70 年。

建筑与景观:建筑融合 Art Deco 与海派风情,外立面采用陶板结合香槟色铝板。社区内打造约 1.8 万平方米海派公园,以十字景观轴串联多元景观区域,中央水系蜿蜒流淌,两侧绿植葱茏,搭配艺术装置。

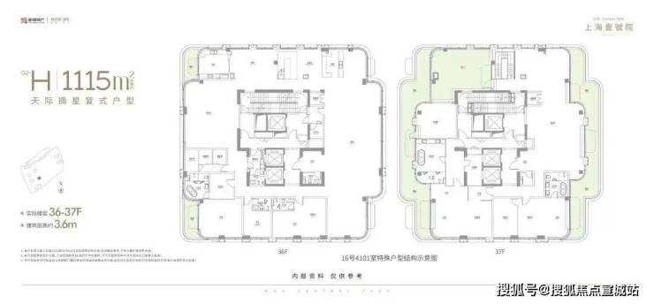
户型信息:主力户型面积约 300-350㎡,为大平层设计,全落地窗,朝南设置多个套房。部分户型配备弧形玻璃设计,还创新性设计 “X 空间”。项目高层住宅非标率达 7%。

价格信息:均价约 18.5 万 - 19.8 万元 /㎡。

配套设施:社区内设有会所、健身房、游泳池、儿童游乐区等休闲娱乐设施,提供 24 小时贴心管家式服务。周边商业配套丰富,1 公里范围内汇聚新天地商圈、豫园商圈等高端商业体;教育资源优质,涵盖多所知名学校;医疗配套完善,三甲医院近在咫尺。

交通情况:项目距离 8、10 号线老西门站直线距离约 500m,步行 10 分钟可达。

上海-上海壹号院售楼处电话☎:400-8558-334(预约热线)✔✔✔

如有问题欢迎来电咨询,专业一对一热情服务,让您用专业眼光去买房。

上海壹号院售楼处电话☎:400-8558-334【售楼热线】✔✔✔上海壹号院营销中心热线☎400-8558-334售楼处地址☎400-8558-334

而上海豪宅的缔造者【新湖】和【融创】,站在巨人的肩膀上,再次沉淀打磨,才得此精品。

上海全新的天际线由此诞生,“城市地标”已被刷新。

「上海壹号院」将最经典的Art Deco立面风格与海派文化相结合:

用Art Deco常用的竖向线条来解决高层建筑的挺拔感、用红色陶板来勾勒出海派老洋房的红砖意象。

同时,建筑立面采用大量高性能系统窗+大面积Low-e玻璃,节能环保的设计理念,让住宅接近零能耗。

酒店落客式出入口,模纹绿岛 搭配造型灯柱。高奢酒店的礼仪规制和中国传统的门庭礼序相结合,归家仪式感十足

北门方浜中路位置 配套风貌建筑商业和公园,也是蓝绿丝带的重要组成部分

上海-上海壹号院售楼处电话☎:400-8558-334(预约热线)✔✔✔

如有问题欢迎来电咨询,专业一对一热情服务,让您用专业眼光去买房。

上海壹号院售楼处电话☎:400-8558-334【售楼热线】✔✔✔上海壹号院营销中心热线☎400-8558-334售楼处地址☎400-8558-334

户型图发布

样板间实景:

上海-上海壹号院售楼处电话☎:400-8558-334(预约热线)✔✔✔

如有问题欢迎来电咨询,专业一对一热情服务,让您用专业眼光去买房。

上海壹号院售楼处电话☎:400-8558-334【售楼热线】✔✔✔上海壹号院营销中心热线☎400-8558-334售楼处地址☎400-8558-334

交通方面:项目距离8、10号线老西门站直线距离约500m,步行10分钟可达。

商业配套:周边内有香港名都城、豫园商圈、复兴艺术中心,人民广场、新天地、外滩、南京路步行街等顶级商业。

上海-上海壹号院售楼处电话☎:400-8558-334(预约热线)✔✔✔

如有问题欢迎来电咨询,专业一对一热情服务,让您用专业眼光去买房。

上海壹号院售楼处电话☎:400-8558-334【售楼热线】✔✔✔上海壹号院营销中心热线☎400-8558-334售楼处地址☎400-8558-334

声明:本文由入驻焦点开放平台的作者撰写,除焦点官方账号外,观点仅代表作者本人,不代表焦点立场。