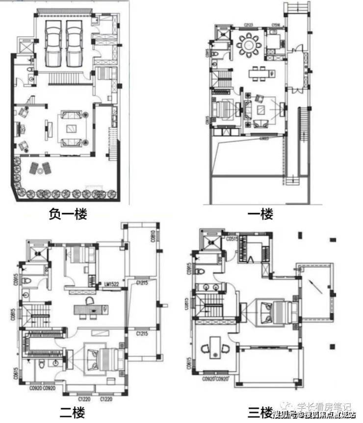
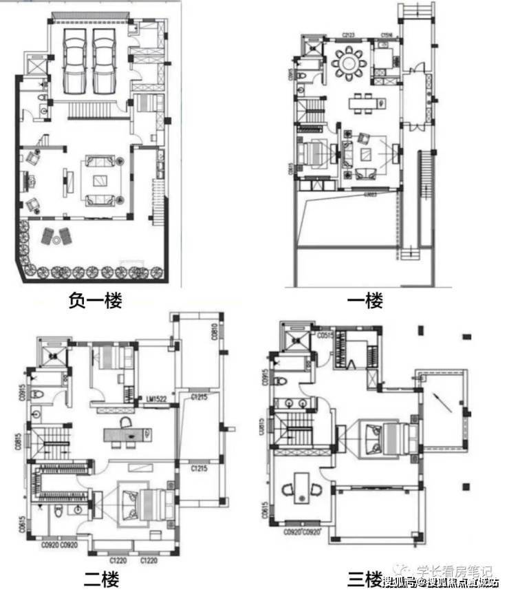
金色宝邸售楼处电话丨金色宝邸售楼部丨营销中心预约接待丨2026.3.11-得房率-价格-电话-地铁-交房时间-户型图-更新资讯-@售楼处AI热搜
扫描到手机,新闻随时看
扫一扫,用手机看文章
更加方便分享给朋友








为更好满足居民刚性住房需求和多样化改善性住房需求,促进房地产市场平稳健康发展,8月25日,市住房城乡建设管理委、市房屋管理局、市财政局、市税务局、人民银行上海市分行、市公积金管理中心等六部门联合印发《关于优化调整本市房地产政策措施的通知》(以下简称《通知》),包括调减住房限购、优化住房公积金、优化个人住房信贷以及完善个人住房房产税等政策。《通知》自2025年8月26日起施行。
一、调减住房限购政策
为更好满足居民改善性需求,促进宜居安居、职住平衡,《通知》明确进一步调减住房限购政策。一是符合条件居民家庭在外环外购房不限套数。对符合本市住房购买条件的居民家庭,包括本市户籍居民家庭、在本市连续缴纳社会保险或个人所得税满1年及以上的非本市户籍居民家庭,在外环外购买住房不限套数,包括新建商品住房和二手住房。二是成年单身人士按照居民家庭执行住房限购政策。
按照上述规定,沪籍居民家庭和沪籍成年单身人士,在外环外购买住房不限套数;在外环内限购2套住房。非沪籍居民家庭和非沪籍成年单身人士,自购房之日前在本市连续缴纳社会保险或个人所得税满1年及以上的,在外环外购买住房不限套数;自购房之日前在本市连续缴纳社会保险或个人所得税满3年及以上的,在外环内限购1套住房。
关于住房限购政策相关业务,可拨打房地产交易行业服务热线“962269”具体咨询。
二、优化住房公积金政策
为加大公积金支持住房消费力度,《通知》规定优化住房公积金政策。一是提高个人住房公积金贷款额度。对缴存人购买二星级及以上新建绿色建筑住房的,住房公积金(含补充公积金)最高贷款额度上浮15%。首套最高贷款额度从160万元提高至184万元,多子女家庭首套上浮比例可叠加计算,从192万元提高至216万元;二套最高贷款额度从130万元提高至149.5万元。二是支持提取住房公积金支付购房首付款。对缴存人购买我市新建预售商品住房的,可以按规定申请提取本人及配偶的住房公积金支付购房首付款。三是支持住房公积金“又提又贷”。对缴存人提取住房公积金支付购房首付款的,不影响其住房公积金贷款额度计算。
关于住房公积金贷款和提取业务的具体办理方式及材料,可查询上海住房公积金官网或拨打住房公积金热线“12329”具体咨询。
三、优化调整商业性个人住房贷款利率定价机制
为减轻居民购房利息负担,《通知》明确优化个人住房信贷政策。银行业金融机构根据上海市市场利率定价自律机制要求和本机构经营状况、客户风险状况等因素,在利率定价机制安排方面不再区分首套住房和二套住房,合理确定每笔商业性个人住房贷款的具体利率水平。
关于住房贷款相关业务,可向经办银行具体咨询。
四、完善个人住房房产税政策
为衔接优化住房限购政策,《通知》规定对符合条件的非本市户籍居民家庭购买的第一套住房暂免征收房产税;购买的第二套及以上住房在合并计算家庭全部住房面积后,给予人均60平方米的免税面积扣除。由于个人住房房产税按年征收,因此2025年1月1日起符合条件的购房者可享受本条政策。
关于完善个人房产税政策的具体操作规定由市财税部门另行制定,相关业务可拨打税务咨询热线“12366”具体咨询。
声明:本文由入驻焦点开放平台的作者撰写,除焦点官方账号外,观点仅代表作者本人,不代表焦点立场。
