越秀外滩樾官方售楼处-(2025越秀外滩樾最新)越秀外滩樾房价-户型-越秀外滩樾图文介绍
扫描到手机,新闻随时看
扫一扫,用手机看文章
更加方便分享给朋友
越秀外滩樾
售楼处电话☎:400-8862-334【售楼处预约热线】(一对一热情服务)
楼盘项目全面介绍,本电话为开发商提供线上售楼电话400-8862-334,楼盘项目全面介绍(包含楼盘简介,房价,价格,楼盘地址,户型图,交通规划,备案价,项目配套,楼盘详情,售楼处电话,最新消息,最新详情,周边配套,最新进展等详情咨询)
看房请务必提前致电销售确认时间,只有预约客户才能享受开发商提供的内部优惠以及专属的老客户推荐奖励!
仅49套低密风貌别墅
建面约238-305-318-338㎡
预计总价4000-8000万
越秀外滩樾售楼处电话:400--8862-334【开发商已认证】越秀外滩樾官方售楼处电话:400--8862-334【售楼处电话/地址】越秀外滩樾售楼处电话:400--8862-334【官方认证】售楼中心24小时热线电话
在浩瀚的城市天际线中,上海越秀外滩樾傲然挺立,不仅是地产界的一颗璀璨明珠,更是时代风华与现代奢华完美融合的典范。这不仅仅是一座建筑群的崛起,而是一次对经典与未来深刻致敬的壮举,它以无可挑剔的姿态,向世界宣告着上海这座国际大都市新的居住高度与品质标准。
【尊享地脉,独步外滩】
上海越秀外滩樾,坐落于黄浦江畔,紧邻外滩这一历史与繁华交织的黄金地段。这里,每一砖一瓦都浸透着历史的深邃与文化的底蕴,每一道风景都是对过往辉煌的致敬,同时又以现代建筑的笔触,续写着属于未来的传奇。居于此,您不仅拥有的是一处居所,更是对上海这座城市无限可能的独家占有。
虹口北外滩【越秀·外滩樾】风貌别墅!即将开放展厅!推238-338㎡ 4000万~8000万
【匠心独运,精筑典范】
项目由国际顶尖设计团队操刀,每一处细节都经过精心雕琢,力求将艺术与居住完美融合。从建筑设计到园林景观,从室内空间布局到材质选择,无一不彰显着对品质生活的极致追求。在这里,自然光与空间艺术巧妙结合,既保留了外滩的古典韵味,又融入了现代生活的舒适与便捷,让每一位业主都能感受到前所未有的居住体验。
【尊享配套,悦享生活】
越秀外滩樾周边配套设施一应俱全,从国际一流的购物中心、五星级酒店,到顶级医疗机构、教育资源,一应俱全,构建起一个全方位、高品质的生活圈。无论是日常购物、休闲娱乐,还是健康管理、子女教育,都能在这里找到最优质的解决方案,让您的生活更加从容不迫,尽享尊贵与便利。
【稀缺资源,投资价值】
在寸土寸金的上海外滩,越秀外滩樾的稀缺性不言而喻。它不仅是居住的理想之选,更是资产保值增值的明智投资。随着上海城市的不断发展和外滩区域的持续升温,该项目的价值潜力将不可估量,为业主带来丰厚的回报与长远的财富保障。
北外滩,与外滩、陆家嘴并称为上海的“黄金三角”。将以2座陆家嘴的商务体量规划,新天地2.0生活圈打造,成为上海跃升世界舞台的“中心发力”新引擎
区域能级:总开发面积约840万方,40栋甲级写字楼
城市地标:480米浦西第一高楼,19栋摩天大楼集群
金融产业:2100+家金融企业赋能,资产管理规模超8万亿元,位居全市第一
航运格局:4500+家航运企业集聚(上港集团、中远海运等),打造国际航运中心
全球贸易:2500+家贸易企业入驻(摩亚方舟、银联商务等)
新兴产业:129家新增高新技术企业,113家市区科技小巨人企业(数据来源:上海市规划局《北外滩地区控制性详细规划》)
交通及配套
交通方面:项目三轨交汇,距离12号线国际客运中心站约600米,距离4/10号线海伦路站约850m(直线距离),3站南京东路,6站新天地。
自驾上,约360米新建路隧道(直线距离),快速直达陆家嘴CBD;约670米外滩隧道(直线距离),直达外滩金融商业街以及老码头;约150米北横通道(直线距离)贯通全城,快速通达虹桥机场/虹桥火车站;约2.4公里大连路隧道(直线距离),直达浦东东方路、世纪大道、八百伴商业圈。
商业方面:项目约2公里内多元繁华构筑封面商业圈,北外滩商圈直线距离约500米;外滩商圈直线距离约1000米;陆家嘴商圈直线距离约1500米;瑞虹商圈直线距离约900米。
医疗方面:三公里内四所三甲医院,全生命周期护航,新华医院(儿科专长);复旦大学附属妇产医院;上海市第一人民医院;上海东方医院(血管外科专长)。
教育方面:幼儿园:约1公里内6所幼儿园(直线距离),涵盖东余杭路幼儿园等3所示范级学校;
小学:约1.5公里内5所小学(直线距离),涵盖区重点四川北路第一小学;
中学:约1.6公里内6所中学(直线距离),1所市重点、2所区重点。一路之隔上海虹口二中心小学(在建中),约2.3公里市重点上海外国语大学附属外国语学校(直线距离)*施教区及就学政策以教育部门规划为准
生态休闲:2.5公里北外滩滨江绿地(约800m直达),四川北路公园、和平公园、鲁迅公园3大公园环伺,于滨江和城市低密绿芯之间,肇启当代诗意生活传序。
【项目名称】越秀北外滩项目
【开发商】上海漕越经济发展有限公司
【项目位置】上海市·虹口区·梧州路235弄
【项目类别】70年产权住宅
【项目类型】风貌别墅
【可售户数】48套(风貌)
【容积率】约1.3
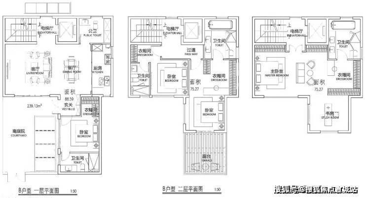
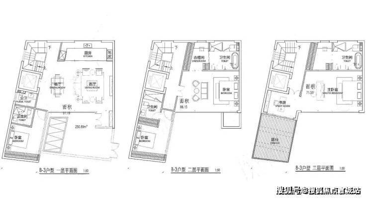
户型图解析:
236.25㎡A户型:
239.13㎡B户型:
250.89㎡B-3户型:
C户型:
291.42㎡D户型
越秀外滩樾售楼处电话:400--8862-334【开发商已认证】越秀外滩樾官方售楼处电话:400--8862-334【售楼处电话/地址】越秀外滩樾售楼处电话:400--8862-334【官方认证】售楼中心24小时热线电话
综上所述,上海越秀外滩樾以其无可比拟的地段优势、匠心独运的建筑设计、尊享完善的配套设施以及稀缺的投资价值,成为了众多高端置业者竞相追逐的焦点。选择越秀外滩樾,即是选择了一种尊贵、优雅且充满无限可能的生活方式。在这里,您将开启一段全新的生活篇章,领略上海这座城市独有的魅力与风采。
越秀外滩樾
售楼处电话☎:400-8862-334【售楼处预约热线】(一对一热情服务)
楼盘项目全面介绍,本电话为开发商提供线上售楼电话400-8862-334,楼盘项目全面介绍(包含楼盘简介,房价,价格,楼盘地址,户型图,交通规划,备案价,项目配套,楼盘详情,售楼处电话,最新消息,最新详情,周边配套,最新进展等详情咨询)
看房请务必提前致电销售确认时间,只有预约客户才能享受开发商提供的内部优惠以及专属的老客户推荐奖励!
声明:本文由入驻焦点开放平台的作者撰写,除焦点官方账号外,观点仅代表作者本人,不代表焦点立场。
