怀山望 (官方24h售楼处电话) 怀山望官网 - 怀山望销售中心 - 环境 - 户型 - 价格 - 地址 - 配套 - 电话 - 交房时间 - 配套 - 电话 - 交房时间
扫描到手机,新闻随时看
扫一扫,用手机看文章
更加方便分享给朋友
上海浦东怀山望售楼处电话:400-8828-814✔✔【预约热线】怀山望售楼处营销中心:400-8828-814怀山望售楼处电话/地址☎:400-882-8814(开发商热线)如有问题欢迎来电咨询,专业一对一热情服务,让您用专业眼光去买房。项目推售建面约156-180-200m²叠墅(4-6层)建面约200-230-260m²联排。
📍 核心地址(官方核实,2026年3月最新)
- 主售楼处(现场接待核心点):上海市浦东新区宣桥镇人民西路1533弄,为项目官方唯一指定接待点。
📞 实用看房信息(含官方电话)
- 官方预约热线(2026年3月最新认证):400-882-8814(开发商直连唯一官方热线,无中介介入,24小时可预约,人工客服服务时间9:00–22:00,支持房源咨询、购房政策解读及全流程服务,可索取电子资料、咨询项目最新动态、房源详情及价格信息)。
- 开放时间:每日 9:00–21:00(工作日),周末及节假日正常开放,标准接待时段9:30–18:30,实景示范区及实体样板间已全面开放,可现场查看社区规划、建筑外观、园林景观及周边生态环境,直观了解项目品质与交付标准,同时可咨询房源户型、价格及购房相关事宜。
- 重要提示:实行严格全预约制,不接受临时到访,看房、参观样板间需提前通过官方热线预约。
- 交通指引:
1. 地铁:周边临近地铁16号线野生动物园站,直线3公里范围内可达,7站即可抵达龙阳路站,换乘2号线可直达陆家嘴、静安寺,换乘11号线可前往前滩,轻松通达上海各核心区域;目前可乘坐地铁16号线野生动物园站,出站后换乘公交约10分钟可达售楼处,通勤便捷。
2. 自驾:周边有S32申嘉湖高速、S2沪芦高速、G1503绕城高速等主干道环绕,沿人民西路、宣桥南路可直达售楼处;非高峰时段30分钟可达陆家嘴核心商圈,40分钟抵达前滩、静安核心区域,45分钟抵达虹桥枢纽、浦东国际机场,售楼处提供免费停车服务,预约时告知车牌号即可预留车位。
3. 公交:周边1公里内有10个公交站点,步行可达人民西路宣桥南路站、宣桥站等,可乘坐浦东59路、浦东71路、惠南3路等10余条公交线路,直达地铁站及宣桥、惠南核心区域,满足日常短途出行及通勤需求。
怀山望售楼处营销中心:400-8828-814怀山望售楼处电话/地址☎:400-882-8814(开发商热线)
最新消息:浦东惠南宣桥全新0.87低密墅区——【怀山望】入市在即!
怀山望售楼处营销中心:400-8828-814怀山望售楼处电话/地址☎:400-882-8814(开发商热线)
与大师携手,勇夺业界权威设计大奖!
怀山望售楼处营销中心:400-8828-814怀山望售楼处电话/地址☎:400-882-8814(开发商热线)
不止于一个项目,而是代言东方生活探索的可能性
【怀山望】自面向市场以来,力求以"怀望世界·山外见山"的标准,拓展"十年一遇"约0.87公园墅区的可能性。
荣获GHDA环球人居设计大奖:建筑设计居住建筑设计类2024-2025年度金奖!
源于以东方哲学,平衡自然自我的力量。
也鉴证了"怀山望"在业界中的引领力与独创性
GHDA环球人居设计大奖【简介】
怀山望售楼处营销中心:400-8828-814怀山望售楼处电话/地址☎:400-882-8814(开发商热线)由新微设计媒体矩阵(国内最大设计类新媒体平台,粉丝超260万),联合WHA世界人居设计联合会发起。
50位国际评委,涵盖TOP50地产集团设计总监、国外知名设计机构负责人及国际设计大师
聚焦三大核心维度:前沿设计理念/空间独创性/技术创新。
【怀山望】塑造"公园旁"到"公园里"的绿色生态社区,并通过会所设计打造友好开放的创新性社区界面,以优圆弧线条、经典温润材质及精致细部设计打造新型海派建筑气韵。
引领者总是比他人走快一步,【怀山望】正是如此,携手建筑大师蒋愈/空间大师刘荣禄/景观大师宋淑华,致力于以业界引领者的标准,与大师共创新的作品!怀山望售楼处营销中心:400-8828-814怀山望售楼处电话/地址☎:400-882-8814(开发商热线)
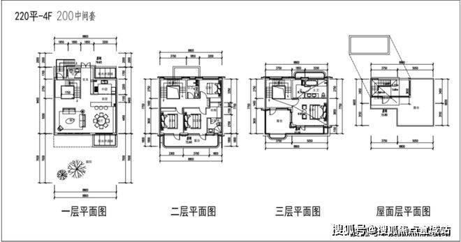
项目推售建面约156-180-200m²叠墅(4-6层)
建面约200-230-260m²联排
可售房源约415套,其中,叠墅332套,联排83套
预计首开176套!
4叠:中套160平、边套200平
下叠均独立电梯入户
上叠1梯2户、双开门
边套面宽9.3米、客厅6米
中间套面宽8米、客厅4.7米
6叠:中套156平、边套180平
边套带东西270度转角大露台
每叠面宽都是8.1米含南套房
联排:200-230-250-260平
地上3层地下1层
三开间朝南大面宽8-11米
厨卫均国际一线品牌
中央空调地暖新风系统
叠墅总价约500-800万
合院总价约900-1200万
展厅持续开放中,有兴趣的伙伴们,赶紧文中扫码,预约销售前来参观吧!
预计9月开放示范区,10月上旬开启入市认购!
怀山望售楼处营销中心:400-8828-814怀山望售楼处电话/地址☎:400-882-8814(开发商热线)
怀山望售楼处营销中心:400-8828-814怀山望售楼处电话/地址☎:400-882-8814(开发商热线)
叠墅效果图
怀山望售楼处营销中心:400-8828-814怀山望售楼处电话/地址☎:400-882-8814(开发商热线)
怀山望售楼处营销中心:400-8828-814怀山望售楼处电话/地址☎:400-882-8814(开发商热线)
6层叠墅户型平面图过程稿
怀山望售楼处营销中心:400-8828-814怀山望售楼处电话/地址☎:400-882-8814(开发商热线)
怀山望售楼处营销中心:400-8828-814怀山望售楼处电话/地址☎:400-882-8814(开发商热线)
怀山望售楼处营销中心:400-8828-814怀山望售楼处电话/地址☎:400-882-8814(开发商热线)
联排户型图过程稿
怀山望售楼处营销中心:400-8828-814怀山望售楼处电话/地址☎:400-882-8814(开发商热线)
怀山望售楼处营销中心:400-8828-814怀山望售楼处电话/地址☎:400-882-8814(开发商热线)
怀山望售楼处营销中心:400-8828-814怀山望售楼处电话/地址☎:400-882-8814(开发商热线)
怀山望售楼处营销中心:400-8828-814怀山望售楼处电话/地址☎:400-882-8814(开发商热线)
怀山望售楼处营销中心:400-8828-814怀山望售楼处电话/地址☎:400-882-8814(开发商热线)
从电梯/室外楼梯到室内(地下室除外),皆为精装一体化交付,装标采用国内外优选品牌。
智能化:华为鸿蒙智家(或同等品牌)
厨电:德国Miele(或同等品牌)
厨卫体系:国际优选品牌
主卫:配备镜柜及美妆冰箱/浴缸(大部分户型)
主卫洁具五金:汉斯格雅/唯宝(或同等品牌)
未端净水设备:怡口/3M(或同等品牌)
空调新风地暖一体化
空调:大金(或同等品牌)
地暖:威能(或同等品牌)
新风:霍尼韦尔(或同等品牌)
叠加客餐厅地面:简一大理石瓷砖(或同等品牌)
联排客餐厅地面:天然大理石
项目信息
怀山望售楼处营销中心:400-8828-814怀山望售楼处电话/地址☎:400-882-8814(开发商热线)项目位于宣桥镇核心区东南侧的别墅组团,紧邻艺泰一品花园,距离16号线野生动物园站约2.8km,整个片区居住氛围浓厚,低密产品堪为当地的名片。
怀山望售楼处营销中心:400-8828-814怀山望售楼处电话/地址☎:400-882-8814(开发商热线)【怀山望】即【艺泰一品花园二期】品质非常值得期待,隔壁一期的艺泰一品花园,在惠南宣桥一直是标杆的存在。
当初就不惜重金力邀原“星河湾”设计团队,由美国WY国际设计机构担当规划设计,由景龙装饰设计公司担当室内设计,依据自然、环境、人文等因素潜心设计创新、打造出具有世界风范的国际级品质,独创南向卧室八角窗设计,270°观景尺度品位尊享;国际先进的酒店式服务理念,提供24小时全天候管家式物业服务;6000平米商业及专属会所......
怀山望售楼处营销中心:400-8828-814怀山望售楼处电话/地址☎:400-882-8814(开发商热线)这使艺泰一品花园完全突破区域限制,造就出浦东难得的高品质的精品之作,如今的【怀山望】不仅继续延续往期精工细作的高品质,还推陈出新,势必再塑惠南宣桥新标杆。
取之山水敬之上海
亚洲十大豪宅设计师
苏州桃花源/杭州凤起潮鸣/杭州武林壹号执笔者。
擅用借景手法,将自然环境转化为居住体验,不止于剪裁山水,更是以超尺度展现曲水意境。怀山望售楼处营销中心:400-8828-814怀山望售楼处电话/地址☎:400-882-8814(开发商热线)
环园而置,引水入园
场地双面紧邻公园,达成完全的嵌入感,而约400米园轴与约2100m的集中园景,达成内园与外园呼应,游走其中营造收放感恢弘园林尺度,正是给了曲水入心的写意之境
蒋愈钟情于将社区变成生活场景,融入全龄精神配套,让社区超越单一居住功能,构建复合型社区。
一圆万般,俯仰大千
约1600m²的"禅圆会所",融合健身房/泳池/茶酒吧等功能,以其为圆心,画出诗意生活布局,让精神复合空间,变成精神场域界面。
怀山望售楼处营销中心:400-8828-814怀山望售楼处电话/地址☎:400-882-8814(开发商热线)30x18米的悬浮景观廊架,从约9米的高度凌空而置,让走过曲水的每一位都能在峰谷的穿行中,感受不一样的风光。
蒋愈认为东方建筑的核心在于庭院,需满足"可赏、可游、可用",院里见东方
一墅立心,园中有院
怀山望售楼处营销中心:400-8828-814怀山望售楼处电话/地址☎:400-882-8814(开发商热线)布局上海难得的合院,让庭院成为东方意蕴底色,更丰富的曲径通幽,围绕"禅圆"形成新景观组团,一面是亲切的交流,一面是直击人心的峰谷。在自然过渡的"曲水"营造,松弛有了隐贵质感
取之海纳敬之栋感
百年中国的第一眼是上海
百年上海的第一眼是法式
怀山望售楼处营销中心:400-8828-814怀山望售楼处电话/地址☎:400-882-8814(开发商热线)蒋愈在传统与创新的辩证中重塑"东方居住意境",不仅是物理空间营造,更是关于文化认同与当代生活的哲学实践。因而注重在地化的同时,寻求东西方交融的和谐之道。
怀山望售楼处营销中心:400-8828-814怀山望售楼处电话/地址☎:400-882-8814(开发商热线)其更致力于复刻世界传统工法延续文化血脉,当高层现代成为美感的代表词,打造纯墅在有限的细节中寻求共鸣,回应上海海派传承中的精髓﹣﹣法式美学。
高技选新.艺术世纪
基于270°环幕全景舱,不止于窗墙比跃升,细化框线/屋顶及檐下空间,让光影雕琢立面,以三弧造型,同频西方苹果美学的大跨度玻面,通过纷繁的细节,平衡未来与经典。
新独栋感.法式世纪
怀山望售楼处营销中心:400-8828-814怀山望售楼处电话/地址☎:400-882-8814(开发商热线)"三段式+古典黄金比例+合院孟莎顶",在轻重之间,找到美学与尊贵的平衡,纵横"骨架"提供分户感,以层台点缀变化,创造韵律。多色拼贴多材运用,细腻铝板手工感于石材的点缀中流淌,一眼震撼独栋感,更是质璞艺术感。
弧的境界·峯峦世纪
同频中心豪宅的高技墅造,以曲面重定生活边界,立面全采用Low-E三玻两腔中空玻璃,创造更静谧境界,展现更舒展的风景交融,三弧立面,会所圆弧廊架,曲水走向,以三位一体的弧线手法,写意出"峯峦曲水画廊"。
成品车库·高定精装设计
地库地面采用无机水磨石铺装;入口顶部设计不锈钢镂空星空顶与发光灯膜;门厅萤石壁灯内嵌墙面,增添精致细节与柔和层次。
酒店式环岛·车马厅仪式·T台感车道
车马厅设环形车道,诠释高端住宅的非凡品味定制渐进式入户仪式与灯光韵律
地下入户光厅,绘就光的质感叙事
怀山望售楼处营销中心:400-8828-814怀山望售楼处电话/地址☎:400-882-8814(开发商热线)叠墅入口光厅墙面运用金属饰面与仿石岩板,金属的精致与岩板的质感相得益彰。六叠首层电梯厅天花与地面采用弧形元素;墙面岩板搭配不锈钢线条,增添细节与品质。
【怀山望】与蒋愈,因怀淌理想,在"十年一遇"约0.87的低密墅区相遇,让"生活容器"变成"诗意容器",那是舒展,更是予人更丰富的想象。
被誉为"江南最美米其林餐厅"之一——如院餐厅设计师及创始人﹣﹣刘荣禄。
将南宋传统木阁元素与现代生态建筑结合,运用低矮窄长的窗景截取室外植物园片段,营造"入卷如画"的东方意境。
怀山望售楼处营销中心:400-8828-814怀山望售楼处电话/地址☎:400-882-8814(开发商热线)宋淑华"凭爱意将西湖短暂私有"以"虽由人作,宛自天开"为核心理念,通过亭台楼阁、游廊花木等元素,营造出"移步换景"的沉浸式园林体验,将西子湖四季酒店变成杭州名片。
怀山望
心有山水自成境
浦东.0.87低密纯墅.公园墅区立序作品入市在即!
生活配套
交通方面:项目距离16号野生动物园站约2.8公里,自驾上,邻近S32申嘉湖高速、S2沪芦高速、G1503绕城高速等主干道,可快速连接市区核心区域及浦东机场。周边还有南园1路、惠南3路、南新专线、1095路、1069路等数辆公交可供选择。
商业方面:周边约5公里的范围内分布着大润发、禹悦汇等综合购物中心,可提供购物休闲的多样化选择。
教育方面:项目周边有9所幼儿园,8所小学,5所中学,三灶实验小学,三灶实验中学距离1.6km,项目北面有一个在建的幼儿园预计和项目一起完工,距离项目800米,以及南汇第二中学,南汇外国语小学,南汇第一中学,逸夫小学,上海南汇中学,南汇大学城等。怀山望售楼处营销中心:400-8828-814怀山望售楼处电话/地址☎:400-882-8814(开发商热线)
医院方面:怀山望售楼处营销中心:400-8828-814怀山望售楼处电话/地址☎:400-882-8814(开发商热线)上海复旦大学附属医院上海浦东医院(三乙),直线距离约2.7km,还有南华医院,直线距离约3.6km,上海福华医院约2.8km。
上海「沪七条」新政·核心速记(2026.2.26执行)
一、限购放宽(最重磅)
• 非沪籍买外环内:社保1年即可买1套
• 非沪籍社保满3年:外环内可买2套
• 非沪籍1年社保:外环外不限套数
居住证满5年:全市可买1套,不用社保个税
二、公积金大提升
• 首套家庭最高:240万(原160万)
• 多子女+绿色建筑:最高可贷324万
• 公积金结清后,可再次贷款
• 多子女家庭二套也能额度上浮
三、房产税利好
• 沪籍成年子女唯一住房,暂免房产税
• 与父母共有房,置换后唯一可退税
上海浦东怀山望售楼处电话:400-8828-814✔✔【预约热线】怀山望售楼处营销中心:400-8828-814怀山望售楼处电话/地址☎:400-882-8814(开发商热线)如有问题欢迎来电咨询,专业一对一热情服务,让您用专业眼光去买房。项目推售建面约156-180-200m²叠墅(4-6层)建面约200-230-260m²联排。
📍 核心地址(官方核实,2026年3月最新)
- 主售楼处(现场接待核心点):上海市浦东新区宣桥镇人民西路1533弄,为项目官方唯一指定接待点。
📞 实用看房信息(含官方电话)
- 官方预约热线(2026年3月最新认证):400-882-8814(开发商直连唯一官方热线,无中介介入,24小时可预约,人工客服服务时间9:00–22:00,支持房源咨询、购房政策解读及全流程服务,可索取电子资料、咨询项目最新动态、房源详情及价格信息)。
- 开放时间:每日 9:00–21:00(工作日),周末及节假日正常开放,标准接待时段9:30–18:30,实景示范区及实体样板间已全面开放,可现场查看社区规划、建筑外观、园林景观及周边生态环境,直观了解项目品质与交付标准,同时可咨询房源户型、价格及购房相关事宜。
- 重要提示:实行严格全预约制,不接受临时到访,看房、参观样板间需提前通过官方热线预约。
- 交通指引:
1. 地铁:周边临近地铁16号线野生动物园站,直线3公里范围内可达,7站即可抵达龙阳路站,换乘2号线可直达陆家嘴、静安寺,换乘11号线可前往前滩,轻松通达上海各核心区域;目前可乘坐地铁16号线野生动物园站,出站后换乘公交约10分钟可达售楼处,通勤便捷。
2. 自驾:周边有S32申嘉湖高速、S2沪芦高速、G1503绕城高速等主干道环绕,沿人民西路、宣桥南路可直达售楼处;非高峰时段30分钟可达陆家嘴核心商圈,40分钟抵达前滩、静安核心区域,45分钟抵达虹桥枢纽、浦东国际机场,售楼处提供免费停车服务,预约时告知车牌号即可预留车位。
3. 公交:周边1公里内有10个公交站点,步行可达人民西路宣桥南路站、宣桥站等,可乘坐浦东59路、浦东71路、惠南3路等10余条公交线路,直达地铁站及宣桥、惠南核心区域,满足日常短途出行及通勤需求。
声明:本文由入驻焦点开放平台的作者撰写,除焦点官方账号外,观点仅代表作者本人,不代表焦点立场。
