滨江一品苑(售楼处)官方电话→滨江一品苑售楼中心前台电话→2026滨江一品苑楼盘百科→楼盘官方网站→楼盘测评→滨江一品苑售楼中心电话→来电预约看房
扫描到手机,新闻随时看
扫一扫,用手机看文章
更加方便分享给朋友
上海-滨江一品苑售楼处电话:400-8558-334
滨江一品苑官方售楼处——请拨打(官方400热线):400-8558-334
陆家嘴滨江大平层
4号线塘桥站500米
「滨江一品苑」
主力户型建面约137-234㎡3-4房
均价11万+/㎡
约230-350㎡花园底墅
约450-710㎡天际大平层
配置有2000㎡双会所
目前“样板间”已开放
上海-滨江一品苑售楼处电话:400-8558-334
滨江一品苑官方售楼处——请拨打(官方400热线):400-8558-334
【户型图/样板间】
非标准层3-9层户型:
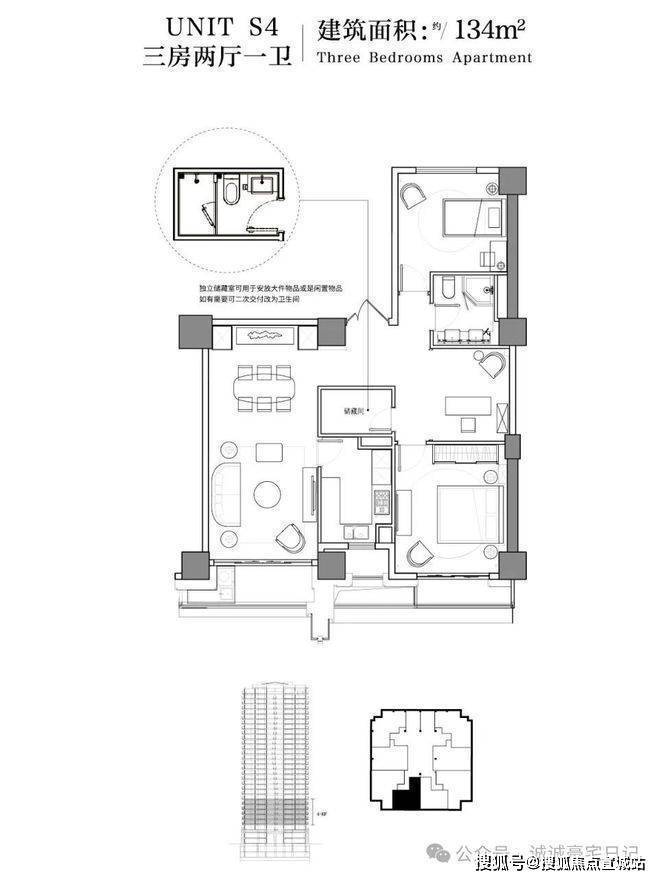
134㎡2+1户型(一梯两户)⬇⬇
160㎡3房东北朝向或西北朝向(一梯两户)⬇⬇
173㎡3房东西朝向或西东朝向(一梯两户)⬇⬇
190㎡3房东南朝向或西南朝向(一梯两户)⬇⬇
以下为主力户型:
标准层10-32层10层带露台
137㎡2+1户型南北朝向(一梯两户)⬇⬇
199㎡~3+1户型(一梯两户)⬇⬇
东南朝向或西南朝向西南边套18楼以上西面看江
上海-滨江一品苑售楼处电话:400-8558-334
滨江一品苑官方售楼处——请拨打(官方400热线):400-8558-334
234㎡4房2厅3卫(一梯一户)⬇⬇
上海-滨江一品苑售楼处电话:400-8558-334
滨江一品苑官方售楼处——请拨打(官方400热线):400-8558-334
上海-滨江一品苑售楼处电话:400-8558-334
滨江一品苑官方售楼处——请拨打(官方400热线):400-8558-334
声明:本文由入驻焦点开放平台的作者撰写,除焦点官方账号外,观点仅代表作者本人,不代表焦点立场。
